Mieszkanie na sprzedaż
330 000 zł
84 m2


















1 / 18
Szczegóły ogłoszenia
- Symbol oferty NXTH-MS-1271
- Typ oferty mieszkanie na sprzedaż
- Cena 330 000 zł
- Charakterystyka mieszkania 83.8 m2, 3 pokoje
- Budynek budynek wielorodzinny; rok budowy: 1930
- Rozkład mieszkania 1p piętro
- Media Ogrzewanie: gazowe; Woda: tak; Gaz: jest
- Dojazd asfalt
- Garaż miejsce parkingowe przy budynku
- Ilość sypialni 3
- Instalacje wymienione
- Okna PCV
- Otoczenie zabudowa wielorodzinna
- Stan lokalu bardzo dobry
- Technologia budowlana cegła
Lokalizacja
- Adres dolnośląskie, Jelenia Góra
Opis nieruchomości
Biuro nieruchomości nextHome przedstawia Państwu na sprzedaż lokal mieszkalny położony w malowniczej Jeleniej Górze. To idealna propozycja dla osób poszukujących komfortowego lokum w dogodnej lokalizacji.
Lokalizacja
Nieruchomość zlokalizowana jest niedaleko centrum Jeleniej Góry. Dzięki temu, przyszli właściciele będą mogli cieszyć się zarówno spokojem, jak i bliskością do miejskich atrakcji.
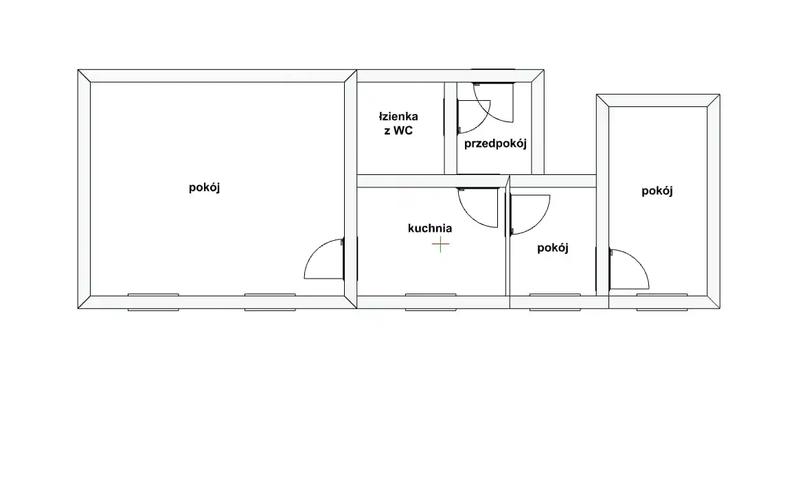
Rozkład pomieszczeń
Prezentowany lokal to wyjątkowe, trzypokojowe mieszkanie znajdujące się na I piętrze, co czyni je idealnym wyborem dla rodzin, par, a także osób ceniących sobie wygodę.
Powierzchnia użytkowa to 79,60m2 i składają się na nią :
- przestronny salon,
- 2 sypialnie,
- oddzielna kuchnia,
- łazienka,
- przedpokój.
Wszystkie pomieszczenia są jasne, wysokie, dające przestrzeń.
Mieszkanie bezczynszowe !
Mieszkanie jest w bardzo dobrym stanie technicznym, gotowe do zamieszkania.
Ogrzewanie dwufunkcyjne piec gazowy.
Sprzedaż bez wyposażenia (zostaje jedynie wyposażenie kuchni i łazienki).
Dodatkowe informacje:
W pobliżu mieszkania znajduje się przystanek autobusowy, co zapewnia szybki i łatwy dostęp do różnych części miasta.
Mieszkanie jest bezczynszowe, co oznacza brak dodatkowych opłat związanych z czynszem. To doskonała okazja do zaoszczędzenia na miesięcznych wydatkach.
Do mieszkania przynależy piwnica.
Miejsca parkingowe przy budynku.
Nie przegap okazji na zakup tego wyjątkowego mieszkania!
Zapraszam na prezentację ! Klucze w biurze !
Lokalizacja
Nieruchomość zlokalizowana jest niedaleko centrum Jeleniej Góry. Dzięki temu, przyszli właściciele będą mogli cieszyć się zarówno spokojem, jak i bliskością do miejskich atrakcji.
Rozkład pomieszczeń
Prezentowany lokal to wyjątkowe, trzypokojowe mieszkanie znajdujące się na I piętrze, co czyni je idealnym wyborem dla rodzin, par, a także osób ceniących sobie wygodę.
Powierzchnia użytkowa to 79,60m2 i składają się na nią :
- przestronny salon,
- 2 sypialnie,
- oddzielna kuchnia,
- łazienka,
- przedpokój.
Wszystkie pomieszczenia są jasne, wysokie, dające przestrzeń.
Mieszkanie bezczynszowe !
Mieszkanie jest w bardzo dobrym stanie technicznym, gotowe do zamieszkania.
Ogrzewanie dwufunkcyjne piec gazowy.
Sprzedaż bez wyposażenia (zostaje jedynie wyposażenie kuchni i łazienki).
Dodatkowe informacje:
W pobliżu mieszkania znajduje się przystanek autobusowy, co zapewnia szybki i łatwy dostęp do różnych części miasta.
Mieszkanie jest bezczynszowe, co oznacza brak dodatkowych opłat związanych z czynszem. To doskonała okazja do zaoszczędzenia na miesięcznych wydatkach.
Do mieszkania przynależy piwnica.
Miejsca parkingowe przy budynku.
Nie przegap okazji na zakup tego wyjątkowego mieszkania!
Zapraszam na prezentację ! Klucze w biurze !
Nota prawna
Opis oferty zawarty na stronie internetowej sporządzany jest na podstawie oględzin nieruchomości oraz informacji uzyskanych od właściciela, może podlegać aktualizacji i nie stanowi oferty określonej w art. 66 i następnych K.C.
Kalkulator kredytowy
Formularz kontaktowy