Dom na sprzedaż
650 000 zł
193 m2
















1 / 16
Szczegóły ogłoszenia
- Symbol oferty PRF-DS-6479
- Typ oferty dom na sprzedaż
- Cena 650 000 zł
- Charakterystyka mieszkania 192.96 m2, 4 pokoje, developerski
- Budynek rok budowy: 2022
- Media Woda: w ulicy; Kanalizacja: w ulicy; Prąd: w ulicy; Gaz: w ulicy
- Dojazd asfalt
- Działka prostokąt
- Garaż w bryle
- Ilość sypialni 3
- Material konstrukcyjny ytong
- Otoczenie jezioro i las
- Pokrycie dachu dachówka ceramiczna
- Rodzaj domu wolnostojący
- Stan prawny Własność
- Taras taras duży
Lokalizacja
- Adres wielkopolskie, szamotulski, Kaźmierz
Opis nieruchomości
Rezydencja parterowa w trakcie budowy na rogatkach Pierska w stanie surowym otwartym, malowniczo położona nad Jeziorem Bytyńskim, 100 m od osiedlowej plaży. Sąsiedztwo stanowią zamieszkałe rezydencje.
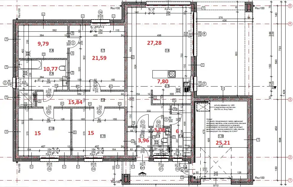
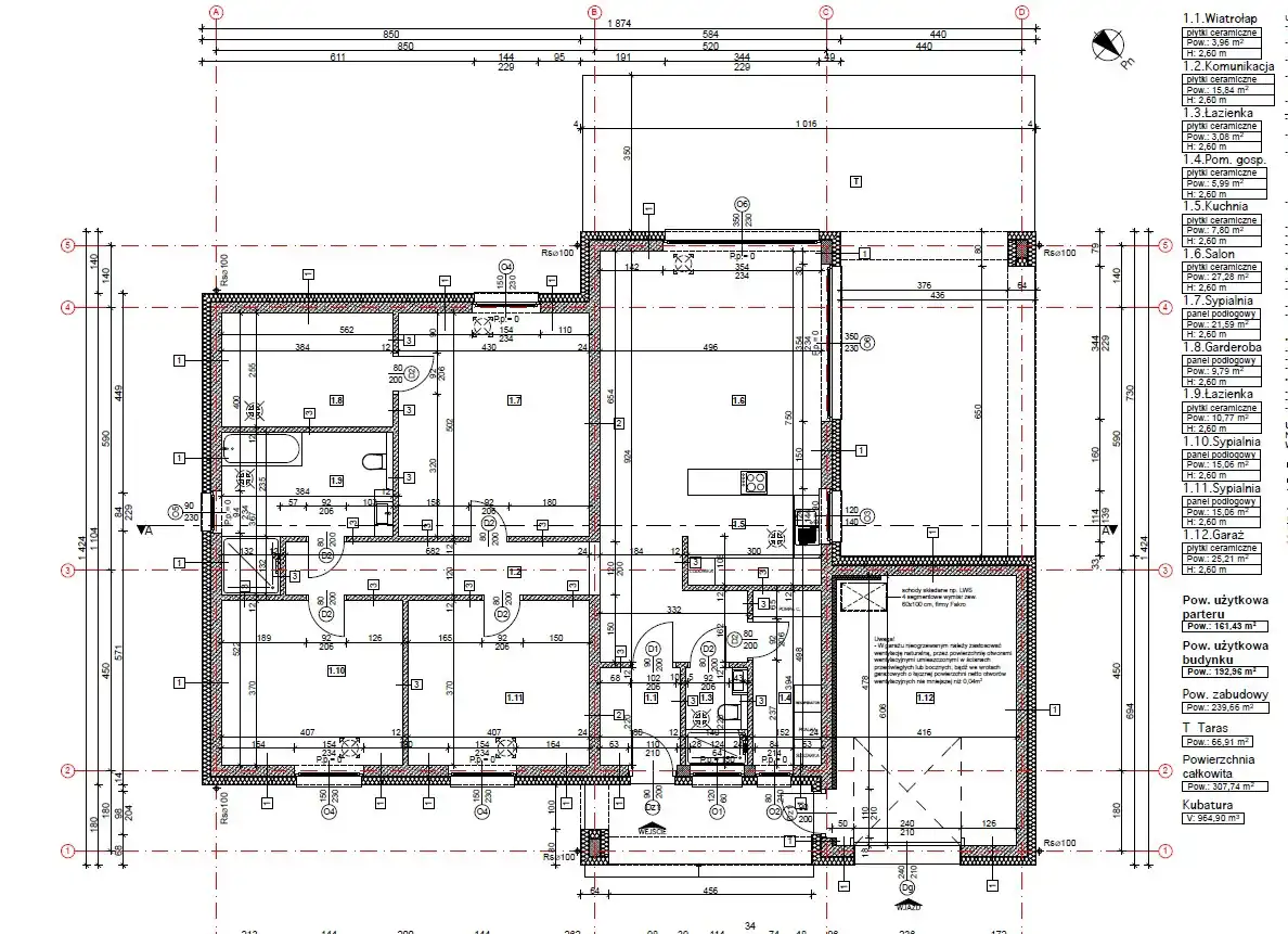
Na parterze znajdują się:
wiatrołap - 4m2
komunikacja - 15,84m2
łazienka - 3,08m2
łazienka - 11m2
pom. gospodarcze - 6m2
kuchnia otwarta na salon - 7,8m2
salon - 27m2
sypialnia - 21,59m2
sypialnia - 15m2
sypialnia - 15m2
garderoba - 8m2
garaż - 25m2
taras na ogrodzie - 67m2
W drodze przy działce prąd, wodociąg, kanalizacja, gaz.
Na parterze znajdują się:
wiatrołap - 4m2
komunikacja - 15,84m2
łazienka - 3,08m2
łazienka - 11m2
pom. gospodarcze - 6m2
kuchnia otwarta na salon - 7,8m2
salon - 27m2
sypialnia - 21,59m2
sypialnia - 15m2
sypialnia - 15m2
garderoba - 8m2
garaż - 25m2
taras na ogrodzie - 67m2
W drodze przy działce prąd, wodociąg, kanalizacja, gaz.
Nota prawna
Opis oferty zawarty na stronie internetowej sporządzany jest na podstawie oględzin nieruchomości oraz informacji uzyskanych od właściciela, może podlegać aktualizacji i nie stanowi oferty określonej w art. 66 i następnych K.C.
Kalkulator kredytowy
Formularz kontaktowy