Dom na sprzedaż






















Szczegóły ogłoszenia
- Symbol oferty GRS-DS-2729
- Typ oferty dom na sprzedaż
- Cena 449 000 zł
- Charakterystyka mieszkania 147.9 m2, 5 pokoi, do zamieszkania
- Media Ogrzewanie: piec; Woda: piecyk gazowy; Kanalizacja: miejska; Prąd: jest; Gaz: własna butla
- Bezpieczeństwo ogrodzenie działki: frontowe kute
- Balkon jest
- Dojazd asfalt
- Działka Zagospodarowana, płaska, nieregularny
- Instalacje dobre
- Okna PCV
- Otoczenie las
- Podpiwniczenie Częściowe
- Pokrycie dachu dachówka
- Rodzaj domu wolnostojący
- Taras taras duży
- Technologia budowlana cegła
- Umeblowanie do uzgodnienia
Lokalizacja
- Adres pomorskie, Kępice (gw), Korzybie
Opis nieruchomości
Na sprzedaż wyjątkowa nieruchomość z dużym potencjałem inwestycyjnym - dom mieszkalny z barem oraz budynkami gospodarczymi na dużej zagospodarowanej działce w otoczeniu przyrody w miejscowości Korzybie, gmina Kępice
Na sprzedaż wyjątkowa nieruchomość położona w malowniczym Korzybiu, w gminie Kępice, w otoczeniu lasów i jezior. Ta przestronna działka o powierzchni 2082 m², otoczona przyrodą i pięknym lasem, stanowi doskonałą okazję zarówno dla osób poszukujących komfortowego miejsca do życia, jak i tych, którzy chcieliby rozwijać działalność gospodarczą w spokojnej, ale malowniczej okolicy. To idealne miejsce dla osób ceniących spokój, prywatność oraz możliwości obcowania z naturą, jednocześnie mając w zasięgu ręki infrastrukturę niezbędną do komfortowego życia i rozwoju biznesu.
Opis działki
Nieruchomość składa się z zagospodarowanej działki, na której rośnie wiele drzew, krzewów oraz roślin ozdobnych. Teren ten daje nie tylko poczucie intymności i odizolowania od codziennego zgiełku, ale też możliwość aranżacji zielonej przestrzeni zgodnie z indywidualnymi upodobaniami. Działka jest w całości ogrodzona, co zapewnia prywatność i bezpieczeństwo. Od frontu znajduje się estetyczne ogrodzenie betonowe, a także dwie solidne, kute, dwuskrzydłowe bramy, które otwierane są ręcznie. Pozostałe boki działki są zabezpieczone ogrodzeniem z siatki.
Dom mieszkalny o dużym metrażu
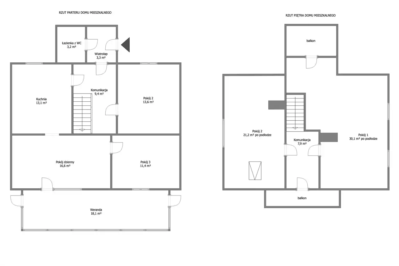
Na działce posadowiony jest dwukondygnacyjny dom wolnostojący o powierzchni całkowitej 147,9 m², który oferuje dużą ilość przestrzeni zarówno do wypoczynku, jak i codziennego funkcjonowania. Parter budynku składa się z wiatrołapu (3,3 m²), który prowadzi do wnętrza domu, łazienki z WC (3,2 m²), komunikacji (9,4 m²) z kotłownią, kuchni (13,1 m²) oraz trzech pokoi o zróżnicowanej powierzchni: pokoju dziennego (16,6 m²), pokoju 2 (13,6 m²) oraz pokoju 3 - sypialnianego (11,4 m²). Dodatkowo na parterze znajduje się przeszklona weranda (18,1 m²), która jest idealnym miejscem na relaks, spotkania z rodziną i przyjaciółmi lub podziwianie otaczającej przyrody.
Piętro domu to przestrzeń zapewniająca wypoczynek. Znajduje się tu komunikacja (7,9 m²) prowadząca do dwóch przestronnych pokoi. Pierwszy z nich, o powierzchni 30,1 m², posiada wyjście na balkon, z którego można podziwiać zieleń i krajobraz okolicy. Drugi pokój o powierzchni 21,2 m² również jest przestronny i ustawny, co daje wiele możliwości jego aranżacji. Łączna powierzchnia mieszkalna domu pozwala na komfortowe życie, a układ pomieszczeń jest funkcjonalny i wygodny.
Budynek przygotowany pod działalność gospodarczą
Niewątpliwym atutem tej nieruchomości jest dodatkowy budynek o powierzchni 54,9 m², który został przygotowany pod działalność gastronomiczną. Budynek ten składa się z komunikacji z barem (15 m²), WC (1,6 m²) oraz dwóch sal o powierzchniach 19,2 m² oraz 19,1 m². Całość stwarza doskonałe warunki do prowadzenia małego lokalu gastronomicznego, baru lub miejsca spotkań.
Bezpośrednio przy budynku znajduje się dodatkowa sala o powierzchni 41 m², która może pełnić rolę przestrzeni do organizacji imprez, zabaw czy tanecznych spotkań. Może też być idealnym miejscem na różnego rodzaju warsztaty czy zajęcia grupowe. Takie rozwiązanie to świetna opcja dla osób, które planują rozwój działalności związanej z gastronomią, rekreacją czy organizacją wydarzeń.
Budynki gospodarcze
Na działce znajdują się również dwa solidne, murowane budynki gospodarcze o powierzchni 127 m² i 43 m². Te dodatkowe przestrzenie mogą być wykorzystane na wiele sposobów, w zależności od potrzeb nowego właściciela. Budynki te mogą posłużyć jako magazyn, warsztat, garaż lub przestrzeń do przechowywania narzędzi i sprzętu ogrodniczego.
Okolica i lokalizacja
Korzybie to malownicza wieś położona w województwie pomorskim, w gminie Kępice, zaledwie kilka kilometrów od Słupska. Miejscowość jest otoczona pięknymi lasami, które stanowią doskonałą przestrzeń do spacerów, wycieczek rowerowych i odpoczynku na łonie natury. Korzybie słynie z przyjaznej atmosfery i spokojnego tempa życia, co sprawia, że jest to idealne miejsce dla osób pragnących uciec od miejskiego zgiełku. W pobliżu znajdują się również jeziora, które są idealne dla miłośników wędkowania, sportów wodnych czy letnich pikników. Okolica jest doskonale skomunikowana z pobliskimi miejscowościami, co ułatwia codzienny dojazd do pracy, szkoły czy na zakupy.
NIERUCHOMOŚĆ z potencjałem inwestycyjnym
Ta wyjątkowa nieruchomość oferuje duży potencjał inwestycyjny. Może służyć zarówno jako przestronny dom rodzinny, jak i jako obiekt o charakterze rekreacyjnym lub usługowym. Dzięki obecności licznych pomieszczeń gospodarczych oraz przestrzeni barowej, można tu rozwijać różne formy działalności, dostosowując nieruchomość do swoich potrzeb i pomysłów.
DODATKOWE INFORMACJE:
- stan prawny – pełna własność,
- media – sieć energetyczna, kanalizacyjna, wodociągowa, telekomunikacyjna,
- podstawa centralnego ogrzewania i ciepłej wody – piec na paliwo stałe,
- ciepła woda w okresie letnim – bojler 150l z grzałką elektryczną,
- wszystkie okna PCV,
- drzwi wejściowe antywłamaniowe,
- pokrycie dachu – dachówka,
- docieplenie budynku – styropian,
- instalacja elektryczna – miedziana.
CENA: 449 000 PLN
Strona Kupująca pokrywa wynagrodzenie prowizyjne dla biura.
Więcej informacji uzyskasz kontaktując się z nami:
799 799 313 – Marta Rutkowska (opiekun oferty), licencja 23697
728 202 030 – Marta Patyna
669 647 067 – Karolina Jakuczun
503 901 101 – Adrianna Iwanicka, licencja 23687
728 111 007 – Przemek Pryzwan
799 799 397 – Dominika Szramiak
Serdecznie zapraszam Państwa na prezentację nieruchomości, z przyjemnością odpowiem na wszelkie pytania oraz udzielę dodatkowych informacji.
Zamierzasz kupić nieruchomość i skorzystać z finansowania banku? Pomożemy dokonać Ci dobrego wyboru najlepszej oferty spośród wielu banków. Nasz doradca dostosuje ofertę kredytu hipotecznego do Twoich potrzeb i oczekiwań oraz będzie do Twojej dyspozycji na każdym etapie procesu kredytowego.
Niniejsza oferta nie stanowi oferty w rozumieniu Kodeksu Cywilnego, a dane w niej zawarte mają jedynie charakter informacyjny i mogą ulec zmianie.