Dom na sprzedaż



Szczegóły ogłoszenia
- Symbol oferty AHO-DS-232
- Typ oferty dom na sprzedaż
- Cena 735 000 zł
- Charakterystyka mieszkania 147.59 m2, 4 pokoje, do wykończenia
- Budynek rok budowy: 2026
- Media Ogrzewanie: C.O. GAZOWE; Woda: ciepła - miejska; Kanalizacja: miejska; Prąd: jest; Gaz: jest
- Bezpieczeństwo ogrodzenie działki: brak
- Dojazd asfalt
- Działka Niezagospodarowana, płaska, prostokąt
- Garaż w bryle
- Ilość sypialni 3
- Instalacje ELEKTRYCZNA, WODNA, GAZOWA
- Okna PCV
- Otoczenie działki zabudowane
- Pokrycie dachu dachówka
- Rodzaj domu szeregowiec
- Stan prawny Własność
- Taras taras
- Technologia budowlana beton, gazobeton
- Umeblowanie brak
Lokalizacja
- Adres zachodniopomorskie, Kobylanka, Zieleniewo
Opis nieruchomości
Jeśli zależy Ci na:
-
Jasnych, dobrze doświetlonych wnętrzach
-
Własnym ogrodzie idealnym do odpoczynku
-
Spokojnej lokalizacji blisko jeziora
-
Szybkim dojeździe do Stargardu i Szczecina
to ta oferta jest właśnie dla Ciebie!
Nieruchomość budowana w nowoczesnej technologii z dbałością o jakość i energooszczędność. W standardzie okna trzyszybowe oraz ogrzewanie gazowe z możliwością montażu pompy ciepła.
Dom zostanie oddany w stanie deweloperskim, co pozwala Ci na wykończenie wnętrza według własnego projektu i gustu.
Dom składa się z dwóch kondygnacji:
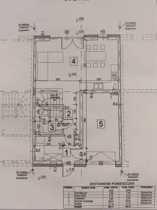
Parter to przestronny salon z aneksem kuchennym i wyjściem do ogrodu, wiatrołap, toaleta dla gości oraz garaż w bryle budynku.
Piętro mieści trzy wygodne i ustawne sypialnie, garderobę, dużą łazienkę oraz korytarz.
Dodatkowym atutem jest prywatny ogródek oraz miejsce postojowe przed budynkiem. Działki mają powierzchnię od 215 m² do 460 m², dzięki czemu każdy znajdzie wariant dopasowany do swoich potrzeb.
Okolica to prawdziwy atut tej nieruchomości — kameralna, spokojna, a jednocześnie tylko 300 metrów od jeziora Miedwie, idealnego na spacery, sporty wodne czy codzienną rekreację.
To naprawdę wyjątkowe miejsce, które z pewnością Cię zachwyci.
Zapraszam na prezentację!