Dom na sprzedaż





















Szczegóły ogłoszenia
- Symbol oferty GRS-DS-2570
- Typ oferty dom na sprzedaż
- Cena 969 000 zł
- Charakterystyka mieszkania 108.7 m2, 4 pokoje, do zamieszkania
- Budynek rok budowy: 2020
- Media Ogrzewanie: C.O. GAZOWE; Woda: ciepła - piecyk gazowy; Kanalizacja: miejska; Prąd: jest; Gaz: tak - miejski
- Bezpieczeństwo ogrodzenie działki: brak
- Działka Zagospodarowana, lekko nachylona, prostokąt
- Okna PCV
- Pokrycie dachu dachówka cementowa
- Rodzaj domu wolnostojący
Lokalizacja
- Adres pomorskie, Kobylnica
Opis nieruchomości
PREZENTUJEMY NA SPRZEDAŻ DOM WOLNOSTOJĄCY W KOBYLNICY przy ul. GŁOWACKIEGO O POWIERZCHNI 108,70M2 POSADOWIONY NA DZIAŁCE 721M2.
Proponujemy do sprzedaży w pełni urządzony dom o powierzchni 108,70m2 posadowiony na zagospodarowanej działce o powierzchni 721m2.
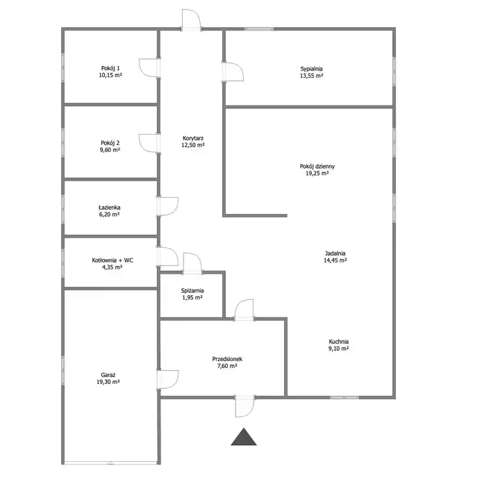
Parter domu to komfortowa strefa dzienna. Salon zachwyca swoją przestronnością. W salonie wygospodarowano miejsce na część jadalnianą – stół z krzesłami. Z salonem sąsiaduje kuchnia, w której idealne warunki do pracy umożliwia duża ilość blatów roboczych oraz wysokiej klasy sprzęt kuchenny AGD. Na parterze oprócz wygodnej strefy dziennej zaprojektowano również wiatrołap, WC z kotłownią, garaż jednostanowiskowy (19,30m2), łazienka z WC oraz sypialnia i 2 pokoje.
Poddasze jest to duża przestrzeń do własnej adaptacji. Pomieszczenie idealnie sprawdzi się na dodatkowy pokój np. gościnny czy pokój odpoczynku i relaksu.
Ze względu na różnorodne walory, Kobylnica dynamicznie się rozwijają. Istnieje dogodny dojazd do licznych punktów handlowo – usługowych oraz placówek oświatowych. Bardzo dobra dostępność do środków komunikacji miejskiej. Łatwy dojazd, nieskomplikowany, w pobliżu głównych ulic. Liczne atuty w połączeniu z urokliwym usytuowaniem sprawiają, że chce się tam zamieszkać na całe życie. Okolica obfita jest w przepiękne obszary naturalne.
DODATKOWE INFORMACJE:
- stan prawny – pełna własność, brak obciążeń w Księdze Wieczystej,
- rok budowy – 2020 r.,
- technologia murowana,
- pokrycie dachu – dachówka cementowa,
- wszystkie okna PCV trzyszybowe,
- drzwi wejściowe przeszklone,
- brama garażowa elektryczna,
- podstawa centralnego ogrzewania – piec dwufunkcyjny gazowy oraz kominkowe,
- ogrzewanie podłogowe (łazienka z WC)
- kuchnia wyposażona sprzętem AGD tj.: lodówko – zamrażarka, zmywarka, piekarnik elektryczna, płyta indukcyjna,
CENA: 969 000 PLN Strona Kupująca pokrywa wynagrodzenie prowizyjne dla biura.
Więcej informacji uzyskasz kontaktując się z nami:
728 202 030 – Marta Patyna (opiekun oferty), licencja 31772
799 333 633 - Dominika Wójcik
669 647 067 - Karolina Jakuczun
728 111 007 - Przemek Pryzwan, licencja 31771
503 901 101 - Adrianna Iwanicka, licencja 23687
799 799 397 - Dominika Szramiak
799 077 000 - Wiktoria Gołębiewska
Serdecznie zapraszam Państwa na prezentację nieruchomości, z przyjemnością odpowiem na wszelkie pytania oraz udzielę dodatkowych informacji.
Niniejsza oferta nie stanowi oferty w rozumieniu Kodeksu Cywilnego, a dane w niej zawarte mają jedynie charakter informacyjny i mogą ulec zmianie.