Dom na sprzedaż
639 000 zł
130 m2








































1 / 40
Szczegóły ogłoszenia
- Symbol oferty BS4-DS-312883
- Typ oferty dom na sprzedaż
- Cena 639 000 zł
- Charakterystyka mieszkania 130 m2, 4 pokoje, do wykończenia
- Budynek rok budowy: 2025
- Media Ogrzewanie: gazowe; Woda: ciepła - piecyk gazowy; Kanalizacja: szambo; Prąd: na działce; Gaz: na działce
- Bezpieczeństwo ogrodzenie działki: brak
- Balkon jest
- Dojazd droga utwardzona
- Działka Niezagospodarowana, lekko nachylona, prostokąt
- Garaż brak
- Ilość sypialni 3
- Instalacje brak
- Material konstrukcyjny cegła, pustak ceramiczny poroterm
- Otoczenie panorama
- Pokrycie dachu dachówka
- Pozwolenie na użytkowanie Brak
- Rodzaj domu wolnostojący
- Stan prawny Własność
- Taras taras duży
Lokalizacja
- Adres małopolskie, Kocmyrzów-Luborzyca, Dojazdów
Opis nieruchomości
*zdjęcia należą do właściciela oferty
Oferujemy do sprzedaży dwa domy wolnostojące na granicy Krakowa i Dojazdowa, gmina Kocmyrzów-Luborzyca.
Dom budowany według projektu Lilia Extradom z dołożonym jednym pustakiem na ściance kolankowej, co zwiększyło powierzchnię użytkową do 111,14 m2
Druga zmiana w projekcie to likwidacja ściany miedzy kuchnią a salonem.
Nieruchomość parterowa z użytkowym poddaszem, na działce 582 m2, wymiary działki 28mx20m.
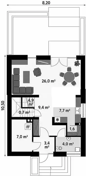
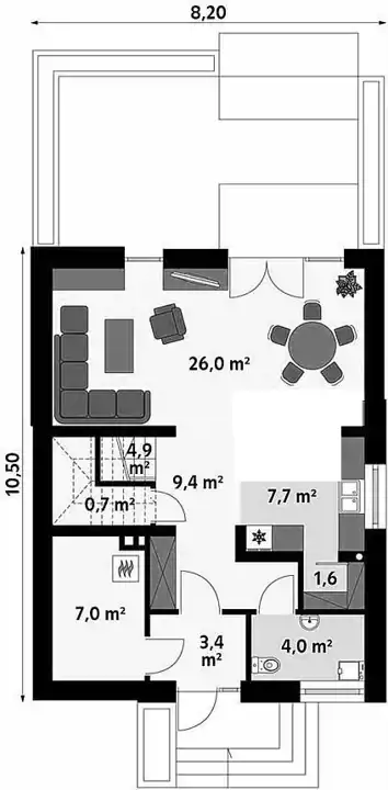
Parter składa się z pokoju dziennego z jadalnią 26m2, kuchni 7,7m2, łazienki 4m2, wiatrołapu 3,4m2, korytarza 9,4m2, kotłowni 7m2, klatki schodowej 4,9m2 i schowka 1m2.
Piętro domu składa się z 3 niezależnych pokoi (11,1m2, 8,8m2, 8m2), komunikacja 4,5m2, łazienka 3,6m2, garderoby 3,7m2.
Domy sprzedawane w stanie surowym otwartym.
Na działce prąd i woda, gaz w drodze. - przyłącza we własnym zakresie (ceny są stałe gaz ok. 2200 zł, prąd ok. 850 zł, woda ok. 2000 zł). Szamba w zakresie klienta.
Dojazd do działki drogą utwardzoną.
Osiedle w dobrej lokalizacji, z pięknymi widokowymi działkami.
Do autobusu miejskiego lub busa 1km. Autobusy MPK 202,212,232,222. Busy co 10 min na trasie Kraków - Proszowice - Busko-Zdrój. W pobliżu stacja kolejowa Baranówka oraz Zastów gdzie można zostawić samochód i w 15 min dojechać pociągiem do Dworca w Krakowie.
W pobliżu sklepy spożywcze, Biedronka, Market Point, dwie szkoły podstawowe, przychodnia, apteki, poczta, galeria Kocmyrzów, Centrum Kultury, Kościół, pizzeria, piekarnia, tor gokartowy, składy budowlane, Urząd Gminy.
Kontakt:
Michał +48 518 810 080
Nota prawna
Opis oferty zawarty na stronie internetowej sporządzany jest na podstawie oględzin nieruchomości oraz informacji uzyskanych od właściciela, może podlegać aktualizacji i nie stanowi oferty określonej w art. 66 i następnych K.C.
Kalkulator kredytowy
Formularz kontaktowy