Dom na sprzedaż























Szczegóły ogłoszenia
- Symbol oferty BS4-DS-312268
- Typ oferty dom na sprzedaż
- Cena 849 000 zł
- Charakterystyka mieszkania 123 m2, 4 pokoje, do wykończenia
- Budynek rok budowy: 2025
- Media Ogrzewanie: gazowe; Woda: piec gazowy dwufunkcyjny; Kanalizacja: szambo; Prąd: jest; Gaz: tak - miejski
- Bezpieczeństwo ogrodzenie działki: częściowo ogrodzona
- Balkon średni
- Dojazd ASFALTOWA
- Działka Niezagospodarowana, płaska, prostokąt
- Garaż brak
- Ilość sypialni 3
- Instalacje dobre
- Material konstrukcyjny cegła, pustak ceramiczny poroterm
- Okna PCV 3 szyby, ciepły montaż
- Otoczenie działki zabudowane
- Pokrycie dachu dachówka
- Pozwolenie na użytkowanie Tak
- Rodzaj domu bliźniak
- Stan prawny Własność
- Taras taras duży
Lokalizacja
- Adres małopolskie, Kraków, Nowa Huta
Opis nieruchomości
Zdjęcia należą do właściciela oferty.
Na sprzedaż połowę bliźniaka 98m2 okolica ulicy Igołomskiej w Krakowie.
Oferowana nieruchomość jest sprzedawana w stanie developerskim po odbiorze. Kupujący nie płaci podatku Pcc.
Zostały dwa lokale z działką 440m2 cenna 949.000 zł i jeden z działką 250m2 w cenie 849.000 zł.
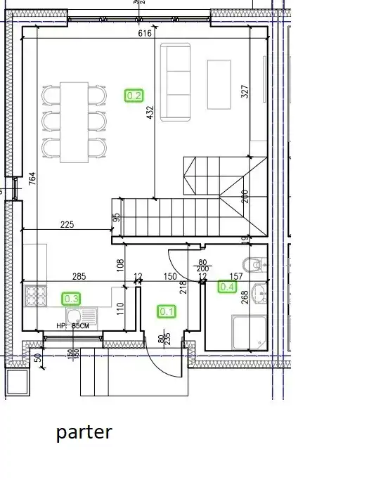
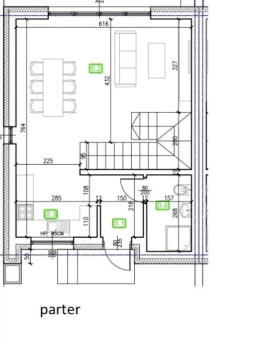
Rozkład domu:
1. Parter
-salon + jadalnia 30,5m2
-otwarta kuchnia 5,5m2
-łazienka 3,9m2
-komunikacja 4m2
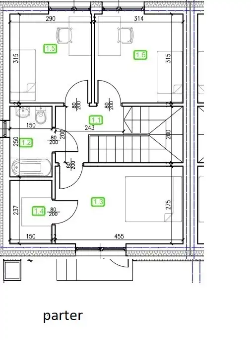
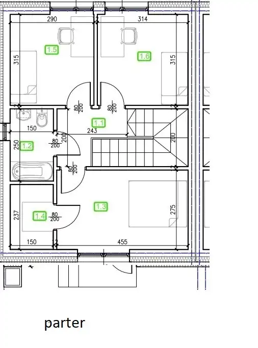
2. Piętro
-3 pokoje 11m2, 9m2, 8,3m2
-garderoba 2,9m2
-łazienki 3,6m2
-komunikacja 8m2
Media i dodatki
- Ogrzewanie podłogowe na dwóch kondygnacjach wraz piecem Viessman Vitodens z zasobnikiem ładowanym warstwowo
- Prąd 3-fazowy pod płytę indukcyjną
- Szambo o pojemności 9,6 m3
- Rekuperacja wraz z rekuperatorem marki Samsung
- Przygotowane okablowanie pod instalacje alarmową
- Przygotowana zasilanie przy oknach pod rolety zewnętrzne
Wykorzystane materiały
- Fundamenty z bloczków fundamentowych
- Ściany zewnętrzne – pustak Porotherm 25 P+W
- Ocieplenie zewnętrzne – styropian 20cm Austrotherm/wełna elewacyjna, tynk silikonowy
- Dach – dachówka Roben Monzaplus antracyt wraz z odgromieniem
- Poddasze ocieplone piana PUR
- Tynki wewnętrzne cementowo-wapienne Baumit MPI 25
- Okna trzyszybowe
- Drzwi antywłamaniowe
Otoczenie
- Dwa Miejsca parkingowe,
- Taras wyłożony kostką
- Ogrodzenie panelowe
- Droga utwardzona
Kontakt:
Michał Dzięcioł
michal@sadurscy.pl
+ 48 518 810 080