Dom na sprzedaż
529 000 zł
173 m2














1 / 14
Szczegóły ogłoszenia
- Symbol oferty NMN-DS-862
- Typ oferty dom na sprzedaż
- Cena 529 000 zł
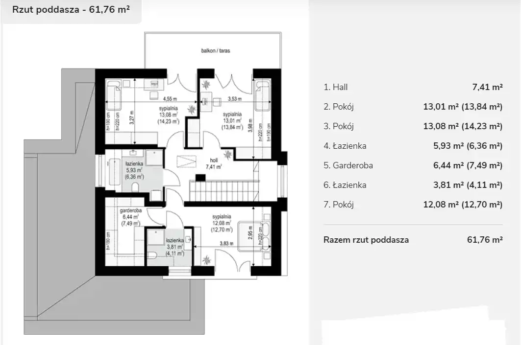
- Charakterystyka mieszkania 173 m2, 5 pokoi, do wykończenia
- Budynek rok budowy: 2022
- Media Woda: jest; Kanalizacja: w ulicy; Prąd: w ulicy; Gaz: brak
- Bezpieczeństwo ogrodzenie działki: częściowo ogrodzona
- Dojazd asfalt
- Działka Niezagospodarowana, płaska, prostokąt
- Garaż blaszak
- Material konstrukcyjny gazobeton, suporeks
- Otoczenie zabudowa jednorodzinna
- Pokrycie dachu papa termozgrzewalna
- Pozwolenie na użytkowanie Brak
- Rodzaj domu wolnostojący
- Stan prawny Własność
Lokalizacja
- Adres łódzkie, kutnowski, Kutno (gw)
Opis nieruchomości
Sprzedam dom w stanie surowym otwartym w Bielawkach pod Kutnem. Budynek w stanie surowym otwartym. Powierzchnia domu 173 mkw. 5 pokoi, 2 łazienki, kuchnia, garaż na 2 auta. Brak okien, drzwi i instalacji. Powierzchnia działki 1900 mkw. Woda wprowadzona do budynku. Prąd w granicy działki. Kanalizacja w ulicy. Działka z trzech stron ogrodzona płytami betonowymi. Na terenie garaż blaszak.
Projekt domu z wizualizacją tutaj:
https://www.extradom.pl/projekt-domu-oszust-WAH1878
Nieruchomość zlokalizowana w bardzo spokojnym miejscu, z dobrym dojazdem do centrum Kutna.
Projekt domu z wizualizacją tutaj:
https://www.extradom.pl/projekt-domu-oszust-WAH1878
Nieruchomość zlokalizowana w bardzo spokojnym miejscu, z dobrym dojazdem do centrum Kutna.
Nota prawna
Opis oferty zawarty na stronie internetowej sporządzany jest na podstawie oględzin nieruchomości oraz informacji uzyskanych od właściciela, może podlegać aktualizacji i nie stanowi oferty określonej w art. 66 i następnych K.C.
Kalkulator kredytowy
Formularz kontaktowy