Dom na sprzedaż



















Szczegóły ogłoszenia
- Symbol oferty BAJ-DS-6375
- Typ oferty dom na sprzedaż
- Cena 849 000 zł
- Charakterystyka mieszkania 152.6 m2, 5 pokoi, do zamieszkania
- Budynek rok budowy: 1890
- Media Ogrzewanie: C.O. GAZOWE; Woda: jest; Kanalizacja: miejska; Prąd: jest; Gaz: jest
- Bezpieczeństwo ogrodzenie działki: ogrodzona
- Dojazd ASFALTOWA
- Działka Zagospodarowana, pochyła, prostokąt
- Garaż brak
- Ilość sypialni 4
- Instalacje wymienione
- Okna PCV
- Otoczenie działki zabudowane
- Pokrycie dachu blachodachówka
- Pozwolenie na użytkowanie Tak
- Rodzaj domu szeregowiec
- Stan prawny Własność
- Taras taras duży
Lokalizacja
- Adres kujawsko-pomorskie, grudziądzki, Łasin
Opis nieruchomości
Niższa cena!
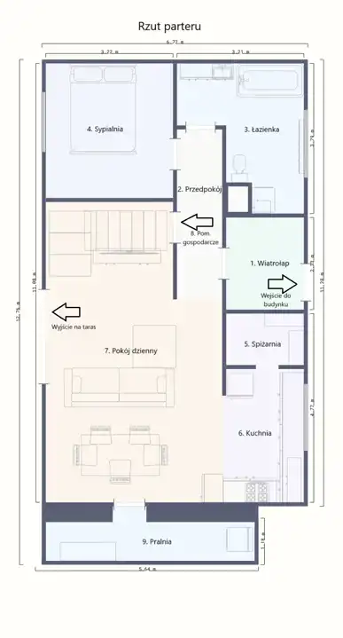
Biuro nieruchomości BAJ HOME przedstawia Państwu wyremontowany, funkcjonalny dom z poddaszem użytkowym. Znajduje się on w szeregu budynków przy ulicy Tadeusza Kościuszki w Łasinie koło Grudziądza, na działce o powierzchni 531 m2. Parter składa się z wyremontowanej kuchni, dwóch spiżarni, widnego pokoju dziennego, sypialni, łazienki z WC oraz pralni. Poddasze budynku zostało przystosowane do zamieszkania. Składa się ono z trzech sypialni, przedpokoju łazienki oraz dwóch garderób.
Budynek przeszedł w 2022 roku gruntowny remont, podczas którego wymieniono instalacje, wymieniono okna (trzyszybowe) oraz wyposażono i wykończono większość pomieszczeń - wstawiono schody z konglomeratu wraz z oświetleniem uruchamianym na czujkę ruchu, wyposażono łazienkę w nowy, dwufunkcyjny kocioł gazowy marki Viessmann, służący do zasilania ogrzewania podłogowego na parterze. Podłogi i ściany łazienki zostały pokryte płytkami, w pozostałych pomieszczeniach na podłodze położono panele podłogowe Rosario, zamontowano drzwi wewnętrzne w kolorze dębu Delano, zamontowano aluminiowe rolety zewnętrzne w kuchni oraz łazience. Okna pokoju dziennego zdobią dodatkowo żaluzje zewnętrzne, sterowanie wygodnie za pomocą pilota. W widnej kuchni zamontowano meble kuchenne ze sprzętem w zabudowie, w tym m.in. zmywarkę i piekarnik Samsung, płytę gazową, pochłaniacz i lodówko-zamrażarkę Amica. Elewacja budynku została również odnowiona i pokryta tynkiem mineralnym typu baranek, a dach pokryto nową blachodachówką w kolorze antracytu.
Całość budynku mieszkalnego (zarówno w jego wnętrzu jak i na zewnątrz) została wykończona w neutralnych, stonowanych barwach, co w połączeniu z meblami wykorzystanymi przy wykańczaniu pomieszczeń zapewnia poczucie estetyki. Na uwagę zasługuje również duża ilość sypialni oraz dodatkowych pomieszczeń, pełniących role m.in. spiżarni lub pralni.
Dojazd do budynku zapewnia droga asfaltowa, natomiast przed nieruchomością znajdują się ogólnodostępne miejsca postojowe. Dodatkowo istnieje możliwość wjazdu na teren działki przez bramę od ulicy Podmurnej.
Zestawienie powierzchni użytkowej poszczególnych pomieszczeń:
Parter:
1. wiatrołap - 5,02 m2;
2. przedpokój - 6,44 m2;
3. łazienka - 9,35 m2;
4. sypialnia - 9,70 m2;
5. spiżarnia - 3,10 m2;
6. kuchnia - 7,11 m2;
7. pokój dzienny - 25,13 m2;
8. pomieszczenie gospodarcze - 2,01 m2;
9. pomieszczenie gospodarcze (pralnia) - 6,37 m2.
Łącznia powierzchnia użytkowa parteru - 74,23 m2.
Poddasze użytkowe:
10. przedpokój - 8,75 m2;
11. sypialnia - 7,50 m2;
12. sypialnia - 9,86 m2;
13. sypialnia - 7,28 m2;
14. łazienka - 5,72 m2;
15. garderoba - 2,20 m2;
16. pomieszczenie gospodarcze - 4,14 m2.
Łączna powierzchnia użytkowa poddasza - 45,45 m2.
Łączna powierzchnia całkowita budynku - 152,60 m2.
Najważniejsze cechy oferowanej nieruchomości:
- przestronny dom z poddaszem użytkowym, zlokalizowany przy ulicy Tadeusza Kościuszki w Łasinie;
- nieruchomość po gruntownym remoncie;
- trzyszybowe okna PCV wraz z roletami i żaluzjami zewnętrznymi;
- kuchnia w zabudowie ze sprzętem AGD (zmywarką i piekarnikiem Samsung, płytą gazową, pochłaniaczem i lodówko-zamrażarką Amica);
- liczne pomieszczenia gospodarcze wykorzystywane jako spiżarnie, pralnie lub garderoby, zapewniające większą funkcjonalność nieruchomości;
- możliwość wjazdu na teren nieruchomości przez bramę;
- ogólnodostępne miejsca postojowe przed budynkiem;
- cicha okolica zapewniająca spokój;
- dobrze rozwinięta infrastruktura, tj. asfaltowa droga dojazdowa, chodnik, oświetlenie;
- duży taras od strony ogrodu;
- gotowy projekt szafy w zabudowie w wiatrołapie.
W okolicy nieruchomości znajdują się:
- cukiernia;
- przedszkole;
- punkty małej gastronomi;
- poczta;
- szpital;
- rynek;
- Urząd Miasta i Gminy Łasin;
- apteka.
Usługa pośrednictwa w obrocie nieruchomościami jest usługą płatną.
Warunkiem wprowadzenia na teren nieruchomości celem dokonania jej prezentacji jest uzyskanie statusu klienta Poszukującego poprzez podpisanie Karty Zamawiającego - dokumentu potwierdzającego prezentację nieruchomości przez pośrednika oraz określającego wysokość wynagrodzenia prowizyjnego wyłącznie w przypadku zakupu prezentowanej nieruchomości. Podanie danych jest dobrowolne, lecz niezbędne do realizacji usługi.
Zainteresowane osoby zapraszamy do zapoznania się z ofertą pod nr tel. 666 955 978.
Najwięcej zdjęć oferty oraz rzutów widoczne jest na stronie biura. www.baj-home.pl
BIURO NIERUCHOMOŚCI BAJ HOME POMAGA RÓWNIEŻ W UZYSKANIU NAJKORZYSTNIEJSZEJ OFERTY KREDYTOWEJ!
Bezpieczeństwo i ułatwienia przy załatwianiu formalności podczas zakupu nieruchomości oparte są na precyzyjnej umowie, profesjonalnej obsłudze, naszym doświadczeniu i prostocie w otrzymaniu ewentualnego kredytu. Dołożymy wszelkich starań, aby podjęta przez Państwa decyzja o wyborze partnera biznesowego, czyli banku, była najlepsza i najkorzystniejsza, a zapisy w umowie kredytowej nie były dla Państwa zaskakujące i niejasne. Doradcy bankowi pomogą Państwu zgromadzić niezbędne dokumenty, podpisać wniosek kredytowy i wynegocjować najlepsze warunki kredytowe. Nawet po wypłaceniu środków przez bank, jak również na każdym innym etapie spłacania zobowiązania, mogą Państwo zwrócić się do nas o bezpłatną poradę.
Zapraszamy na prezentację, oferując rzetelną i profesjonalną opiekę nad całością transakcji przeprowadzonej w bezpieczny sposób przez licencjonowanego Pośrednika. Nr licencji zawodowej 22219. Posiadamy ubezpieczenie OC pośrednika nieruchomości.