Mieszkanie na sprzedaż
650 000 zł
64 m2



1 / 3
Szczegóły ogłoszenia
- Symbol oferty WAW-MS-12555
- Typ oferty mieszkanie na sprzedaż
- Cena 650 000 zł
- Charakterystyka mieszkania 64 m2, 5 pokoi
- Budynek rok budowy: 2026
- Media Ogrzewanie: gazowe; Woda: ciepła - miejska; Gaz: brak
- Dojazd asfalt
- Działka Niezagospodarowana, prostokąt
- Ilość sypialni 3
- Instalacje nowe
- Okna drewniane
- Otoczenie działki zabudowane
Lokalizacja
- Adres mazowieckie, Legionowo
Opis nieruchomości
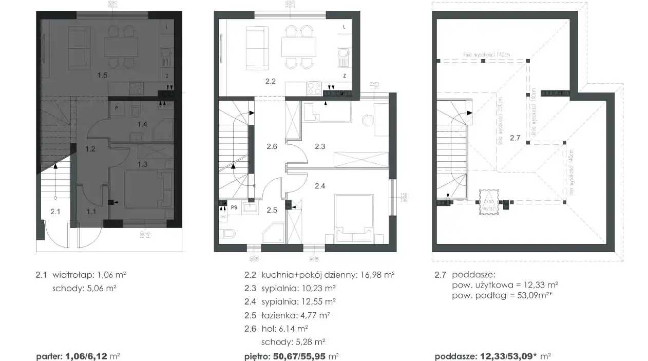
Mieszkanie 64m2 w nowo powstającej kameralnej inwestycji budynków w zabudowie bliźniaczej.
Na parterze odnajdziemy mały hol, by następnie udać się schodami na 1 piętro, gdzie odnajdziemy salon z aneksem kuchennym o powierzchni łącznej 17m2. Poziom ten uzupełniają dwie sypialnie 13m2 i 11m2 przedpokój oraz łazienka. Do dyspozycji mamy również strych, gdzie odnajdziemy przestrzeń, gdzie możemy zaaranżować kolejne pomieszczenia.
W najbliższym otoczeniu mamy żłobek, przedszkole, szkołę, sklepy, tereny zielone i rekreacyjne.
Dojście do stacji SKMki zajmie nam około 10min.
Teren osiedla będzie ogrodzony.
Zakup bezpośredni, brak podatku PCC.
Więcej informacji 516 447 798
Na parterze odnajdziemy mały hol, by następnie udać się schodami na 1 piętro, gdzie odnajdziemy salon z aneksem kuchennym o powierzchni łącznej 17m2. Poziom ten uzupełniają dwie sypialnie 13m2 i 11m2 przedpokój oraz łazienka. Do dyspozycji mamy również strych, gdzie odnajdziemy przestrzeń, gdzie możemy zaaranżować kolejne pomieszczenia.
W najbliższym otoczeniu mamy żłobek, przedszkole, szkołę, sklepy, tereny zielone i rekreacyjne.
Dojście do stacji SKMki zajmie nam około 10min.
Teren osiedla będzie ogrodzony.
Zakup bezpośredni, brak podatku PCC.
Więcej informacji 516 447 798
Nota prawna
Opis oferty zawarty na stronie internetowej sporządzany jest na podstawie oględzin nieruchomości oraz informacji uzyskanych od właściciela, może podlegać aktualizacji i nie stanowi oferty określonej w art. 66 i następnych K.C.
Kalkulator kredytowy
Formularz kontaktowy