Mieszkanie na sprzedaż
950 000 zł
86 m2



1 / 3
Szczegóły ogłoszenia
- Symbol oferty WAW-MS-12520
- Typ oferty mieszkanie na sprzedaż
- Cena 950 000 zł
- Charakterystyka mieszkania 86 m2, 5 pokoi
- Budynek rok budowy: 2026
- Media Ogrzewanie: gazowe; Woda: ciepła - miejska; Gaz: brak
- Dojazd asfalt
- Działka Niezagospodarowana, prostokąt
- Ilość sypialni 3
- Instalacje nowe
- Okna drewniane
- Otoczenie działki zabudowane
Lokalizacja
- Adres mazowieckie, Legionowo
Opis nieruchomości
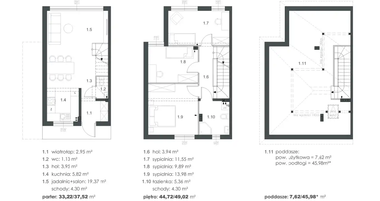
Mieszkanie 86m2 + 30m2 ogródka w nowo powstającej kameralnej inwestycji budynków w zabudowie bliźniaczej.
Parter budynku to przestronny salon z aneksem kuchennym o powierzchni łącznej 26m2. Poziom ten uzupełniają przedpokój oraz wc. Na drugim poziomie odnajdziemy trzy sypialnie 14m2;12m2 i 9m2 oraz dużą 6m2 łazienkę. Do dyspozycji mamy również strych, gdzie odnajdziemy przestrzeń, gdzie możemy zaaranżować kolejne pomieszczenia.
Na całym parterze budynku będziemy mieli położone ogrzewanie podłogowe, a dzięki zastosowaniu dużych okien pomieszczenia będę bardzo dobrze doświetlone.
Dużym atutem jest ogródek idealne miejsce na odpoczynek.
W najbliższym otoczeniu mamy żłobek, przedszkole, szkołę, sklepy, tereny zielone i rekreacyjne.
Dojście do stacji SKMki zajmie nam około 10min.
Teren osiedla będzie ogrodzony.
Zakup bezpośredni, brak podatku PCC.
Więcej informacji 516 447 798
Parter budynku to przestronny salon z aneksem kuchennym o powierzchni łącznej 26m2. Poziom ten uzupełniają przedpokój oraz wc. Na drugim poziomie odnajdziemy trzy sypialnie 14m2;12m2 i 9m2 oraz dużą 6m2 łazienkę. Do dyspozycji mamy również strych, gdzie odnajdziemy przestrzeń, gdzie możemy zaaranżować kolejne pomieszczenia.
Na całym parterze budynku będziemy mieli położone ogrzewanie podłogowe, a dzięki zastosowaniu dużych okien pomieszczenia będę bardzo dobrze doświetlone.
Dużym atutem jest ogródek idealne miejsce na odpoczynek.
W najbliższym otoczeniu mamy żłobek, przedszkole, szkołę, sklepy, tereny zielone i rekreacyjne.
Dojście do stacji SKMki zajmie nam około 10min.
Teren osiedla będzie ogrodzony.
Zakup bezpośredni, brak podatku PCC.
Więcej informacji 516 447 798
Nota prawna
Opis oferty zawarty na stronie internetowej sporządzany jest na podstawie oględzin nieruchomości oraz informacji uzyskanych od właściciela, może podlegać aktualizacji i nie stanowi oferty określonej w art. 66 i następnych K.C.
Kalkulator kredytowy
Formularz kontaktowy