Mieszkanie na sprzedaż
















 Szczegóły ogłoszenia 
- Symbol oferty ARTD-MS-824
 - Typ oferty mieszkanie na sprzedaż
 - Cena 339 000 zł
 - Charakterystyka mieszkania 91.2 m2, 3 pokoje
 - Budynek kamienica; rok budowy: 1930
 - Rozkład mieszkania 3p piętro
 - Media Ogrzewanie: piec kaflowy; Woda: ciepła - terma; Gaz: jest
 - Bezpieczeństwo Rolety antywłamaniowe
 - Dojazd asfalt
 - Instalacje częściowo wymienione
 - Okna PCV
 - Otoczenie centrum miasta
 - Stan lokalu do remontu
 - Technologia budowlana cegła
 - Umeblowanie do uzgodnienia
 
 Lokalizacja 
- Adres dolnośląskie, Legnica m., Legnica
 
 Opis nieruchomości 
Proponujemy Państwu przestronne 3 pokojowe mieszkanie o powierzchni użytkowej 91,20 m2 ulokowane na trzecim piętrze kamienicy w otoczeniu zabytkowej zabudowy. Dostęp do pełnej infrastruktury, ścisłe Centrum, duże możliwości aranżacyjne wpływają na atrakcyjność oferty.
Mieszkanie z przeznaczeniem do remontu.
Ogrzewania – piece kaflowe (możliwość zrobienia ogrzewania gazowego), okna PCV z ekspozycją południowy-zachód, północny-wschód + rolety antywłamaniowe od podwórka, na podłogach płytki, panele lub wykładzina PCV (w pokojach deski+płyta pilśniowa) na ścianach farba, oryginalna stolarka drzwiowa. Instalacja elektryczna częściowo wymieniona, nowe piony wodne.
Budynek czteropiętrowy zarządzany przez Wspólnotę, dach po wymianie, zadbana klatka schodowa (nowe okna) zrobiona elewacja od podwórka. W kamienicy tylko 7 mieszkań, dostęp do internetu światłowodowego, możliwość korzystania z części strychowej i parkowania z tyłu budynku.
Niski czynsz – tylko 300 zł (w tym fundusz remontowy i opłaty eksploatacyjne)
Tylko 1 pokój od ulicy, 2 pokoje od podwórka.
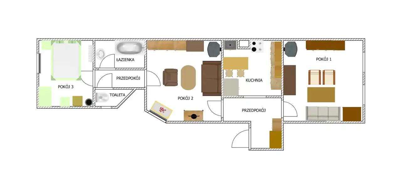
Rozkład pomieszczeń:
Pokój 1 - ok. 26 m2
Pokój 2 - ok. 25,5 m2
Pokój 3 - ok. 13 m2
Kuchnia - ok. 11 m2
Łazienka ok. 4,5 m2
Toaleta ok. 1 m2
Przedpokój ok. 10 m2
Do mieszkania przynależy piwnica 6 m2
Mieszkanie nie posiada balkonu
Biorąc pod uwagę metraż i liczne udogodnienia mieszkanie może stanowić świetne rozwiązanie dla dużych rodzin lub jako lokata kapitału – mieszkanie pod wynajem.
Po więcej szczegółów zapraszam do kontaktu telefonicznego lub mailowego
Artdom Nieruchomości
ul. Fabryczna 22
59-220 Legnica
Współpracujemy z doradcami kredytowymi z dużym doświadczeniem w zakresie kredytów hipotecznych na zakup domu, lokalu, działki, budowę domu lub remont nieruchomości.
Zapewniamy pomoc przy obsłudze notarialnej i kompletowaniu wszystkich niezbędnych dokumentów do umowy kupna-sprzedaży.
Przedstawiona oferta ma charakter informacyjny, nie stanowi oferty handlowej w rozumieniu Art. 66 par. 1 Kodeksu Cywilnego, może podlegać aktualizacji dlatego zalecana jest osobista weryfikacja.
Zabrania się kopiowania i rozpowszechniania zamieszczonych na stronie internetowej fotografii, grafiki, opisów nieruchomości, tekstów, banerów, znaków, formularzy itp. pod groźbą sankcji prawnych ponieważ wszystkie teksty, opisy nieruchomości, zdjęcia oraz inne informacje opublikowane na niniejszej stronie oraz na stronach firmowych związanych z Artdom Mariola Serenda są chronione prawem autorskim.