Mieszkanie na sprzedaż















Szczegóły ogłoszenia
- Symbol oferty ARTD-MS-901
- Typ oferty mieszkanie na sprzedaż
- Cena 539 000 zł
- Charakterystyka mieszkania 95.6 m2, 3 pokoje
- Budynek kamienica; rok budowy: 1960
- Rozkład mieszkania 2p piętro
- Media Ogrzewanie: C.O. GAZOWE; Woda: piec gazowy dwufunkcyjny; Gaz: jest
- Bezpieczeństwo Rolety antywłamaniowe
- Dojazd droga utwardzona
- Garaż garaż murowany
- Instalacje wymienione
- Okna PCV
- Otoczenie park
- Stan lokalu po generalnym remoncie
- Technologia budowlana beton, cegła
- Umeblowanie tylko kuchnia
Lokalizacja
- Adres dolnośląskie, Legnica, Stare Miasto
Opis nieruchomości
Na sprzedaż przestronne mieszkanie o powierzchni 95,6 m², położone tuż przy Parku Miejskim w Legnicy przy ul. Żeglarskiej.
Lokal znajduje się na 2. piętrze kamienicy i przeszedł generalny remont w 2021 r.
Oferta idealna dla inwestora. Mieszkanie sprzedawane jest z obecnym, solidnym najemcą, który terminowo reguluje wszystkie opłaty. Obowiązuje aktualna umowa najmu (od 2022 r), zapewniająca stały, pewny dochód od pierwszego dnia po zakupie.
Najemca deklaruje chęć dalszego zamieszkiwania.
Wnętrze zostało zaprojektowane z myślą o komforcie i funkcjonalności.
- duże, ustawne i świetnie doświetlone pokoje
- osobna garderoba
- nowoczesna łazienka wykończona w wysokiej jakości płytkach, wyposażona w przestronny prysznic
- kuchnia w zabudowie meblowej z pełnym sprzętem AGD
- okna PCV z roletami antywłamaniowymi zapewniające bezpieczeństwo i izolację
Atuty lokalizacji: Bezpośrednie sąsiedztwo Parku Miejskiego to idealne miejsce dla osób ceniących zieleń, spacery i rekreację. Dostęp do pełnej infrastruktury oraz Centrum to kolejny atut.
Duża piwnica: Do mieszkania należy piwnica o powierzchni aż 53,6 m² - idealna na przechowywanie, warsztat, rowery lub dodatkową przestrzeń gospodarczą.
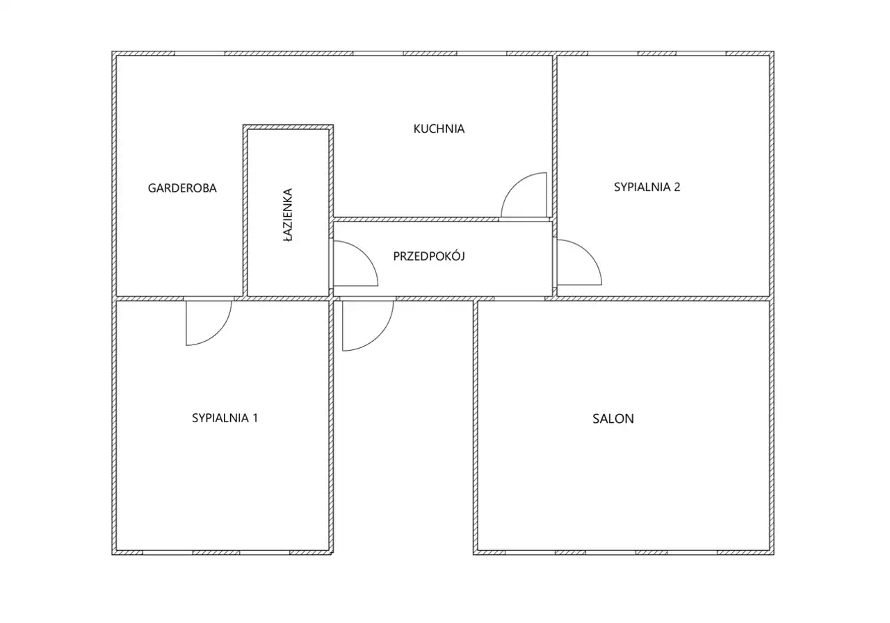
Lokal składa się z salonu, 2 sypialni, kuchni, garderoby oraz przedpokoju.
Mieszkanie nie posiada balkonu.
Rozkład pomieszczeń (widoczny na rzucie w galerii):
- Salon 27,07 m2
- Sypialnia 1 16,87 m2
- Sypialnia 2 18,32 m2
- Garderoba 12,35 m2
- Kuchnia 11,18 m2
- Łazienka z WC 4,72 m2
- Przedpokój 5,09 m2
Ogrzewanie gazowe – energooszczędny piec dwufunkcyjny firmy Saunier Duval
Budynek dwupiętrowy zarządzany przez Wspólnotę, wyremontowana klatka schodowa, w planach rewitalizacja kamienicy.
Po więcej szczegółów zapraszam do kontaktu telefonicznego lub mailowego.
Artdom Nieruchomości
ul. Fabryczna 22
59-220 Legnica
Pomagamy w uzyskaniu najlepszych warunków finansowania zakupu, współpracujemy z doradcami kredytowymi z dużym doświadczeniem w zakresie kredytów hipotecznych na zakup domu, lokalu, działki, budowę domu lub remont nieruchomości.
Zapewniamy pomoc przy obsłudze notarialnej i kompletowaniu wszystkich niezbędnych dokumentów do umowy kupna-sprzedaży.
Przedstawiona oferta ma charakter informacyjny, nie stanowi oferty handlowej w rozumieniu Art. 66 par. 1 Kodeksu Cywilnego, może podlegać aktualizacji dlatego zalecana jest osobista weryfikacja.
Zabrania się kopiowania i rozpowszechniania zamieszczonych na stronie internetowej fotografii, grafiki, opisów nieruchomości, tekstów, banerów, znaków, formularzy itp. pod groźbą sankcji prawnych ponieważ wszystkie teksty, opisy nieruchomości, zdjęcia oraz inne informacje opublikowane na niniejszej stronie oraz na stronach firmowych związanych z Artdom Mariola Serenda są chronione prawem autorskim.