Dom na sprzedaż











Szczegóły ogłoszenia
- Symbol oferty BS2-DS-312824
- Typ oferty dom na sprzedaż
- Cena 970 000 zł
- Charakterystyka mieszkania 104.24 m2, 4 pokoje, do wykończenia
- Budynek rok budowy: 2025
- Media Ogrzewanie: podłogowe; Woda: jest; Prąd: jest; Gaz: jest
- Bezpieczeństwo ogrodzenie działki: ogrodzona
- Balkon jest
- Dojazd ASFALTOWA
- Działka częściowo zagospodarowana, płaska, prostokąt
- Garaż miejsce postojowe
- Ilość sypialni 3
- Instalacje ELEKTRYCZNA, GAZOWA
- Okna PCV 3 komorowe
- Otoczenie zabudowa jednorodzinna
- Pokrycie dachu dachówka ceramiczna
- Rodzaj domu wolnostojący
- Stan prawny Własność
- Taras taras
Lokalizacja
- Adres małopolskie, krakowski, Liszki
Opis nieruchomości
Osiedle 7 domów jednorodzinnych w Rącznej (Kaszów) – komfort, spokój i zieleń!
Na sprzedaż oferujemy domy w nowo powstającym kameralnym osiedlu 7 domów jednorodzinnych o powierzchni ok. 104 m² każdy, położonych na działkach o powierzchni od 3,1 do 5,55 arów.
Każdy budynek to dom parterowy z użytkowym poddaszem, wykonany w technologii tradycyjnej, z wysokiej jakości materiałów.
Osiedle będzie całkowicie ogrodzone, z wykonanymi podjazdami i tarasami z kostki brukowej, co zapewni mieszkańcom bezpieczeństwo, prywatność i komfort.
Podstawowe informacje o ofercie:
• Powierzchnia działki: od 310 m² do 550 m²
• Cena (brutto): od 970 000 zł do 1 040 000 zł
• Stan: w trakcie realizacji
• Typ budynku: wolnostojący
• Powierzchnia użytkowa: ok. 104 m²
• Piętra: parter + poddasze użytkowe
Rozkład domu:
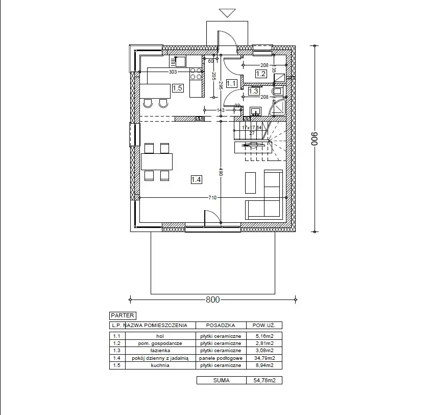
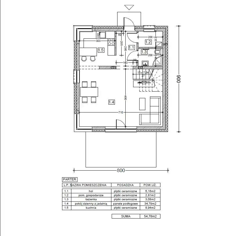
Parter
1. Hol - 5,16 m2
2. Pomieszczenie gospodarcze - 2, 81 m2
3. Łazienka - 3,08 m2
4. Pokój dzienny z jadalnią - 34,79 m2
5. Kuchnia - 8,94
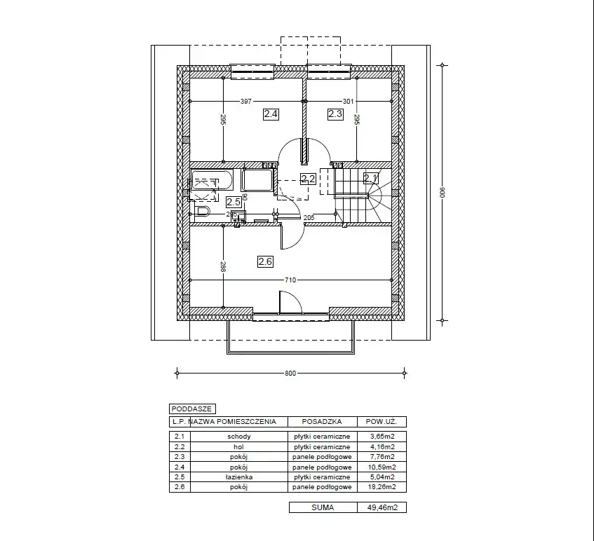
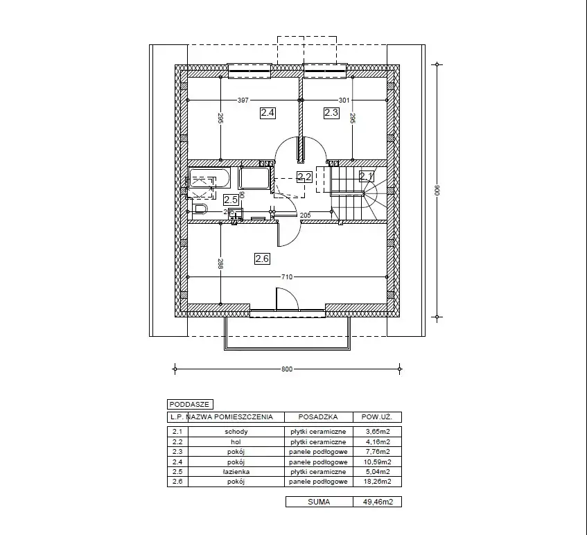
Poddasze
1. Schody - 3,65 m2
2. Hol - 4,16 m2
3. Pokój - 7,76 m2
4. Pokój - 10,59 m2
5. Pokój - 18,26 m2
6. Łazienka - 5,04 m2
Termin zakończenia budowy w stanie deweloperskim marzec 2026r.
Standard deweloperski
Konstrukcja:
• technologia tradycyjna (POROTHERM 25 cm + ocieplenie 20 cm)
• dachówka ceramiczna, okna dachowe FAKRO
• tynki maszynowo-gipsowe, wylewki i izolacje
• ogrzewanie podłogowe w całym domu
• kocioł z zamkniętą komorą spalania i zasobnikiem
• wentylacja mechaniczna (z urządzeniami), instalacja klimatyzacji (bez urządzeń)
• instalacje: prąd, woda, gaz, kanalizacja (szambo), zbiornik na deszczówkę
• alarm z powiadomieniem jednostki interwencyjnej
Dodatkowe walory:
• kostka brukowa wokół budynku i na podjeździe
• ogrodzenie działki z bramą i furtką
• taras z widokiem na ogród
• teren wstępnie uporządkowany i zniwelowany
Otoczenie i lokalizacja
Inwestycja znajduje się w wyjątkowo spokojnej, zielonej części Rącznej – z dala od miejskiego zgiełku, a jednocześnie z doskonałym dostępem do infrastruktury:
• szkoła podstawowa i przedszkole – w pobliżu osiedla
• las, park, ścieżki spacerowe i rowerowe – idealne dla miłośników natury
• sklepy i usługi w bliskim sąsiedztwie
• lotnisko Balice – ok. 10 km
• Kraków, Salwator – ok. 16 km
Rączna (gm. Liszki)
To idealne miejsce dla osób, które szukają połączenia spokoju podmiejskiego życia z szybkim dostępem do miasta.
W celu uzyskania bliższych informacji zapraszam do kontaktu:
Maria Śmiech
Tel: +48 500-673-615
E-mail: maria@sadurscy.pl