Mieszkanie na sprzedaż


















Szczegóły ogłoszenia
- Symbol oferty KNG-MS-7268
- Typ oferty mieszkanie na sprzedaż
- Cena 299 000 zł
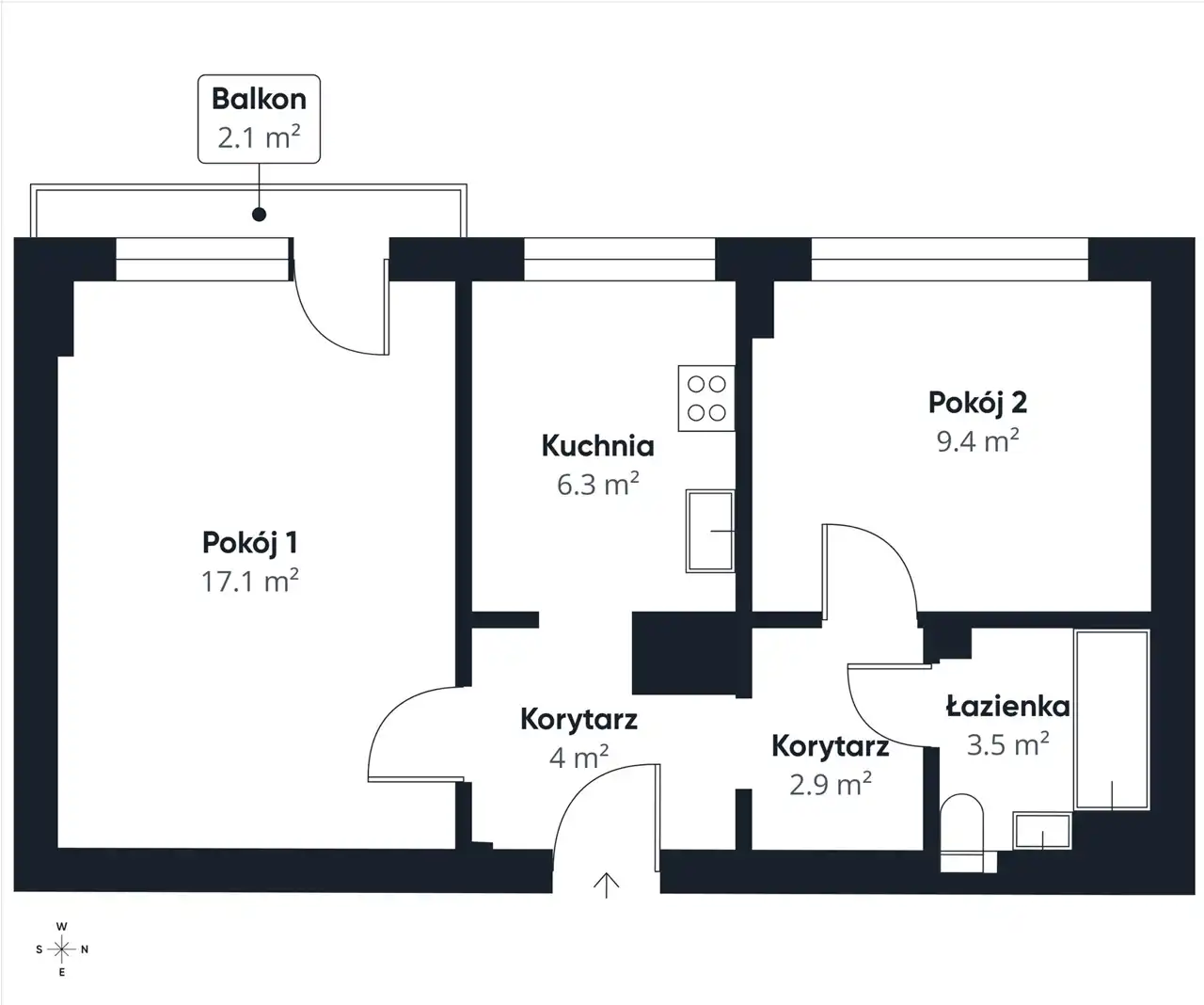
- Charakterystyka mieszkania 42.98 m2, 2 pokoje
- Budynek wieżowiec; rok budowy: 1974
- Rozkład mieszkania 5p piętro
- Media Ogrzewanie: miejskie; Woda: ciepła - miejska; Gaz: tak - miejski
- Balkon jest
- Czynsz Czynsz letni: 591 zł
- Instalacje niewymienione
- Okna PCV
- Otoczenie osiedle
- Stan lokalu do remontu
- Technologia budowlana beton, płyta
- Umeblowanie nieumeblowane
- Winda Tak
Lokalizacja
- Adres łódzkie, Łódź, Polesie
Opis nieruchomości
Na sprzedaż 2-pokojowe, rozkładowe mieszkanie o powierzchni 42,98 m², położone na 5 piętrze wieżowca przy ul. Żeligowskiego 50/52 na Starym Polesiu – jednej z najlepiej skomunikowanych i najbardziej poszukiwanych lokalizacji w Łodzi.
Nieruchomość wyróżnia się funkcjonalnym układem pomieszczeń, jednostronną ekspozycją na zachód, a także
pięknym widokiem na panoramę miasta. Idealna propozycja zarówno dla osób szukających mieszkania dla siebie, jak i pod inwestycję.
Mieszkanie:
Na powierzchni ok. 43 m² znajdują się:
- pokój 1 z wyjściem na balkon
- pokój 2
- oddzielna kuchnia
- łazienka z WC
- przedpokój z miejscem na dużą szafę.
Mieszkanie w standardzie do remontu (okna wymienione -PCV), co daje przyszłemu właścicielowi pełną swobodę aranżacji wnętrza według własnych potrzeb i gustu.
Do lokalu przynależy komórka lokatorska.
Budynek:
Mieszkanie znajduje się w wieżowcu z lat 70., którym zarządza Spółdzielnia Mieszkaniowa.
W ostatnich latach wykonano:
- remont klatek schodowych
- remont elewacji budynku
Lokalizacja:
W bezpośrednim sąsiedztwie znajdują się:
- przystanki autobusowe i tramwajowe (ok. 2 minuty spacerem)
- liczne punkty handlowo-usługowe, sklepy, markety, apteki, przychodnie, poczta
- Hala Zielony Rynek (ok. 2 minuty autem)
- lokale gastronomiczne, piekarnie, kawiarnie
- tereny zielone: Skwer – Plac Hallera (2 minuty pieszo), Park „Na Zdrowiu” (ok. 3 minuty autem), Park Poniatowskiego (ok. 4 minuty autem)
- Uniwersytecki Szpital Kliniczny oraz liczne placówki edukacyjne: szkoły, licea, przedszkola i żłobki
Stan prawny:
- Odrębna własność (czysta księga wieczysta)
- Możliwość zakupu na kredyt, grunty uregulowane – Chętnie pomożemy w uzyskaniu najkorzystniejszych warunków finansowania.
Opłaty:
- Czynsz: ok. 591 zł (bez osób zameldowanych).
- Dodatkowo: prąd i gaz według zużycia.
Dodatkowe informacje:
- Decydując się na zakup tej nieruchomości, zyskujesz pełną obsługę, w tym bezpłatną pomoc w uzyskaniu kredytu hipotecznego - współpracujemy ze sprawdzonym doradcą kredytowym!
- Współpracując z Digital Broker, otrzymujesz rabat na usługi notarialne!
- Mieszkanie jest dostępne w programie Rent2Own. Wpłać 20% i zamieszkaj od zaraz, resztę zapłacisz za 2 do 5 lat - kiedy zbudujesz zdolność kredytową lub zbierzesz środki. O szczegóły zapytaj doradcę.
- Jako profesjonalne biuro nieruchomości, pobieramy wynagrodzenie prowizyjne za wykonanie usługi pośrednictwa.
Zapraszam do kontaktu
Oliwia Mrowińska
Doradca ds. nieruchomości | Digital Broker