Mieszkanie na sprzedaż
320 000 zł
46 m2

















1 / 17
Szczegóły ogłoszenia
- Symbol oferty KNG-MS-6988
- Typ oferty mieszkanie na sprzedaż
- Cena 320 000 zł
- Charakterystyka mieszkania 46.05 m2, 3 pokoje
- Budynek blok; rok budowy: 1968
- Rozkład mieszkania 2p piętro
- Media Ogrzewanie: miejskie; Woda: ciepła - miejska; Gaz: tak - miejski
- Balkon jest
- Czynsz Czynsz letni: 600 zł
- Garaż garaż murowany
- Instalacje częściowo wymienione
- Okna PCV
- Otoczenie osiedle
- Stan lokalu do remontu
- Technologia budowlana płyta
- Umeblowanie do uzgodnienia
Lokalizacja
- Adres łódzkie, Łódź, Górna
Opis nieruchomości
Komfortowe 3-pokojowe mieszkanie o powierzchni ok. 47 metrów kwadratowych, zlokalizowane w dzielnicy - Łódź Górna (Dąbrowa) przy ul. Felińskiego 3.
Nieruchomość znajduje się w spokojnej i zielonej części Łodzi, idealnej do życia dla rodzin czy osób szukających wytchnienia od miejskiego zgiełku. Głównymi atutami są, położenie mieszkania na 2-piętrze w 4-piętrowym, przemyślany układ mieszkania a także świetna lokalizacja ze względu na dojazd do centrum oraz położenie przy terenach zielonych, nieopodal Skwer im. św. Maksymiliana Marii Kolbego.
Mieszkanie:
A na 47 m2 znajdują się:
Istnieje możliwość dokupienia 1 lub 2 - murowanych garaży (1 garaż z kanałem), każdy w cenie: 85 tysięcy.
Garaże zlokalizujemy w okolicy bloku.
Budynek:
Zadbany, 4-piętrowy blok wybudowany w około 1968 roku (w ostatnich latach został docieplony i odmalowany), położony w cichej i zielonej okolicy, przyjaznej dla rodzin z dziećmi.
W najbliższej lokalizacji znajdują się tereny zielone - Skwer im. św. Maksymiliana Marii Kolbego.
A w sąsiedztwie znajdują się także:
Opłaty:
Nieruchomość znajduje się w spokojnej i zielonej części Łodzi, idealnej do życia dla rodzin czy osób szukających wytchnienia od miejskiego zgiełku. Głównymi atutami są, położenie mieszkania na 2-piętrze w 4-piętrowym, przemyślany układ mieszkania a także świetna lokalizacja ze względu na dojazd do centrum oraz położenie przy terenach zielonych, nieopodal Skwer im. św. Maksymiliana Marii Kolbego.
Mieszkanie:
A na 47 m2 znajdują się:
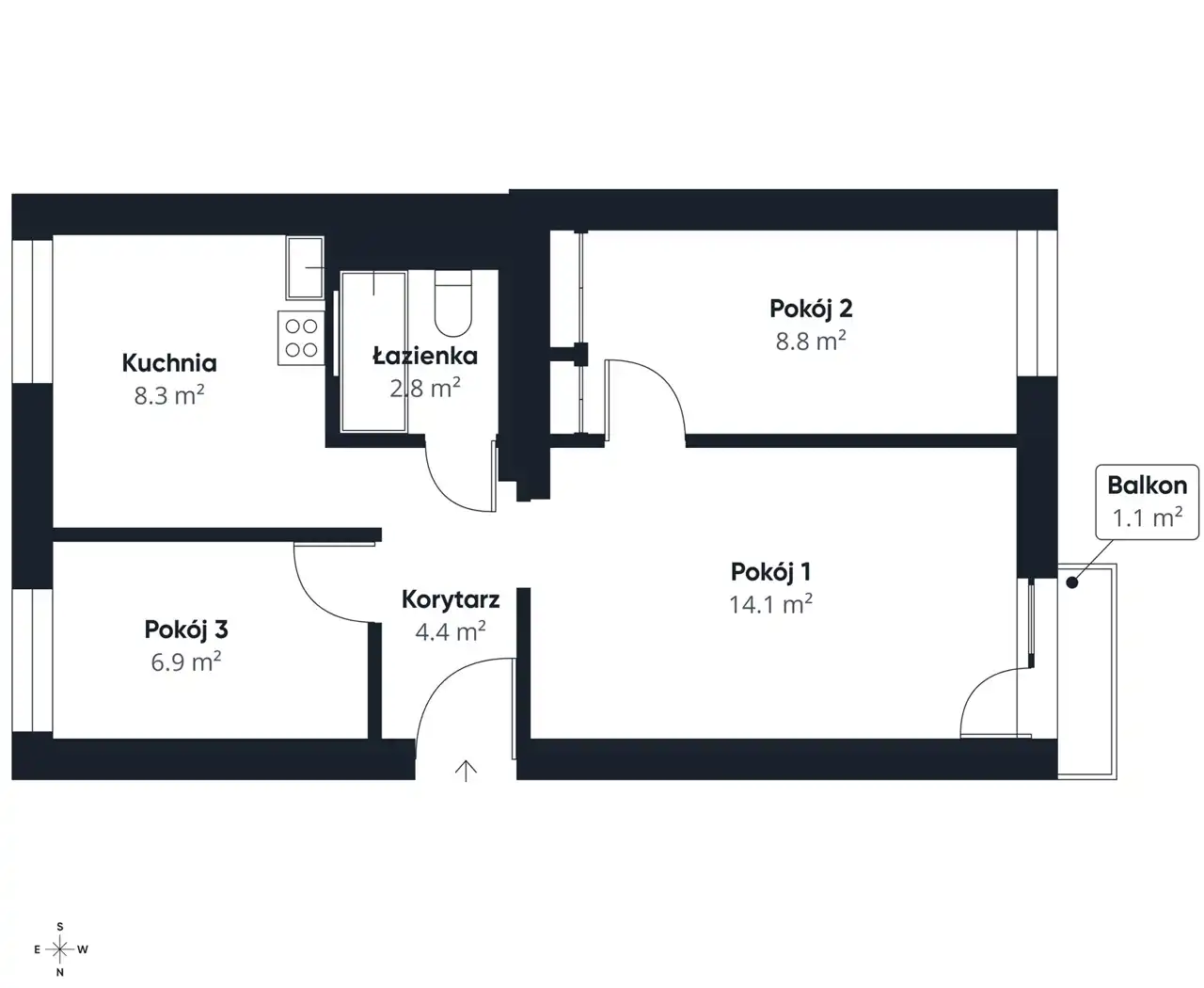
- Pokój 1 (ok. 14 m2) z balkonem
- Pokój 2 (ok. 9,5 m2)
- Pokój 3 (ok. 7,1 m2)
- Kuchnia (ok. 8,5 m2)
- Korytarz (razem ok. 4,9 m2)
- Łazienka (ok. 3 m2)
- WC (ok. 1,6 m2)
- schowek (ok. 2 m2)
Istnieje możliwość dokupienia 1 lub 2 - murowanych garaży (1 garaż z kanałem), każdy w cenie: 85 tysięcy.
Garaże zlokalizujemy w okolicy bloku.
Budynek:
Zadbany, 4-piętrowy blok wybudowany w około 1968 roku (w ostatnich latach został docieplony i odmalowany), położony w cichej i zielonej okolicy, przyjaznej dla rodzin z dziećmi.
W najbliższej lokalizacji znajdują się tereny zielone - Skwer im. św. Maksymiliana Marii Kolbego.
A w sąsiedztwie znajdują się także:
- w okolicy liczne placówki edukacyjne: Licea, Szkoły Podstawowe, Liczne Przedszkola, Żłobki
- ok. 3 minuty spacerem tereny zielone (Skwer), Kościół - ok. 2 minuty spacerem
- lokale gastronomiczne, punkty handlowo-usługowe, przychodnie, apteki, poczta
- osiedlowe sklepy spożywcze, większe markety, liczne żabki
- przystanki autobusowe i tramwajowe (w okolicy budynku)
Stan prawny:
- Odrębna własność (czysta księga wieczysta)
- Przy zakupie można posiłkować się kredytem (chętnie pomożemy w uzyskaniu najlepszych warunków kredytowych).
Opłaty:
- Czynsz: w wysokości ok: 600 zł bez osób zameldowanych
- Dodatkowe opłaty: prąd i gaz (według zużycia)
- Brak podzielników ciepła
Dodatkowe informacje:
- CENA DO NEGOCJACJI.
- Decydując się na zakup tej nieruchomości, zyskujesz pełną obsługę, w tym bezpłatną pomoc w uzyskaniu kredytu hipotecznego.
- Współpracujemy ze sprawdzonym doradcą kredytowym.
- Współpracując z Digital Broker, otrzymujesz rabat na usługi notarialne.
- Jako profesjonalne biuro nieruchomości pobieramy wynagrodzenie prowizyjne za wykonanie usługi pośrednictwa.
- Mieszkanie jest dostępne w programie Rent2Own. Wpłać 20% i zamieszkaj od zaraz. Resztę zapłacisz za 2 do 5 lat – kiedy zbudujesz zdolność kredytową lub zbierzesz środki. O szczegóły zapytaj doradcę.
Zapraszam do kontaktu
Oliwia Mrowińska
Doradca ds. nieruchomości | Digital Broker
Nota prawna
Opis oferty zawarty na stronie internetowej sporządzany jest na podstawie oględzin nieruchomości oraz informacji uzyskanych od właściciela, może podlegać aktualizacji i nie stanowi oferty określonej w art. 66 i następnych K.C.
Kalkulator kredytowy
Formularz kontaktowy