Mieszkanie na sprzedaż





Szczegóły ogłoszenia
- Symbol oferty PTY-MS-6909
- Typ oferty mieszkanie na sprzedaż
- Cena 348 000 zł
- Charakterystyka mieszkania 30 m2, 1 pokój
- Budynek apartamentowiec; rok budowy: 2026
- Rozkład mieszkania 2p piętro
- Media Ogrzewanie: miejskie; Woda: tak - miejska; Gaz: brak
- Balkon jest
- Dojazd asfalt
- Ilość sypialni 1
- Instalacje nowe
- Okna nowe PCV
- Otoczenie działki zabudowane
- Plac zabaw Tak
- Stan lokalu deweloperski
- Winda Tak
Lokalizacja
- Adres łódzkie, Łódź, Śródmieście
Opis nieruchomości
NOWA CENA!
INWESTYCJA REALIZOWANA PRZEZ CENIONEGO DEWELOPERA ?
Jeśli szukasz swojego nowego "M" w centrum miasta to może byś propozycja właśnie dla Ciebie.
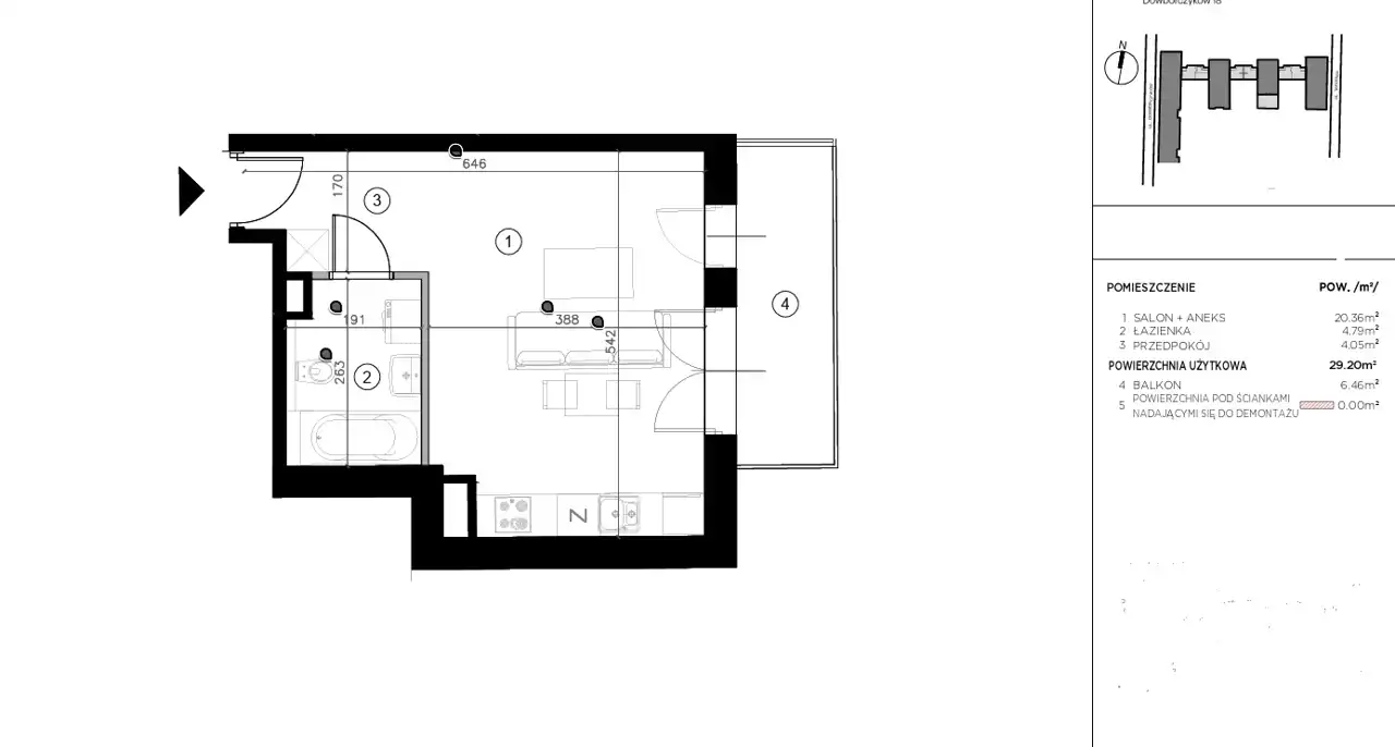
Proponujemy do kupna w okolicach Dworca Fabrycznego, w nowo powstającej Inwestycji NOW, dwa mieszkania o pow. 29,24m2 (każde); rozkład identyczny.
- piętro II i III,
- ciekawy rozkład, stwarzający możliwość wydzielenia małej sypialni,
- budynek zaprojektowany z najwyższą starannością, w sąsiedztwie nowo powstająca zabudowa ale też kamienice,
- inwestycja w ostatnim etapie realizacji, pierwsze odbiory jeszcze w LIPCU tego roku,
- do dyspozycji przyszłych mieszkańców planowana jest strefa fitness, reprezentacyjne lobby, taras na dachu, lokale usługowe na parterze, Smart Home,
- media miejskie,
- sama inwestycja zapewnia szybki dostęp do głównych punktów miasta, pobliskie tereny zielone, sklepy, ryneczek, nieopodal stacja kolejowa Łódź Fabryczna, stwarzają dobre warunki do mieszkania i życia,
- UWAGA! załączone wizualizacje, rzut stanowią własność dewelopera (firmy OKAM) https://now-lodz.pl/mieszkania/
- cena mieszkania na piętrze II / pow. 29,24 m2 / 348 000 PLN,
- cena mieszkania na piętrze III / pow. 29,24 m2 / 376 000 PLN, -
Zapraszamy po więcej informacji i do kontaktu telefonicznego. T. 881 504 079.