Mieszkanie na sprzedaż


Szczegóły ogłoszenia
- Symbol oferty ISP-MS-9644
- Typ oferty mieszkanie na sprzedaż
- Cena 468 000 zł
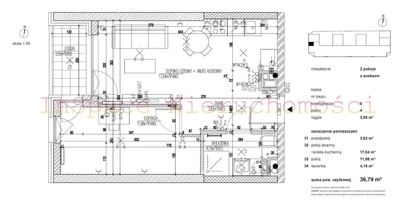
- Charakterystyka mieszkania 36.79 m2, 2 pokoje
- Rozkład mieszkania 4p piętro
- Balkon jest
- Garaż garaż
- Ilość sypialni 1
- Winda Tak
Lokalizacja
- Adres łódzkie, Łódź, Śródmieście
Opis nieruchomości
Nowe 2 pokoje | 36,79 m² | Panorama miasta | Łódź Centrum – Tramwajowa 17B (Profbud)
Na sprzedaż nowoczesne mieszkanie w stanie deweloperskim o powierzchni 36,79 m², położone w prestiżowej inwestycji Osiedle Primo (deweloper Profbud) w samym sercu Nowego Centrum Łodzi.
📍 Lokalizacja: ul. Tramwajowa 17B, Łódź – Śródmieście
🏡 Mieszkanie
Funkcjonalny i bardzo ustawny układ:
-
salon z aneksem kuchennym – 17,04 m²
-
sypialnia – 11,98 m²
-
łazienka – 4,15 m²
-
przedpokój – 3,62 m²
✔ idealne pod inwestycję lub do zamieszkania
✔ duże możliwości aranżacyjne
✔ stan deweloperski – wykończysz według własnego stylu
🌇 Ogromnym atutem jest widok z okna – panorama całego miasta oraz Dworzec Łódź Fabryczna
🏢 Budynek i osiedle
Nowoczesna inwestycja w standardzie premium:
-
eleganckie części wspólne
-
windy
-
monitoring i bezpieczeństwo
-
lokale usługowe na parterze (sklepy, gastronomia, usługi)
-
zielone patio dla mieszkańców
📍 Lokalizacja – największy atut!
Mieszkanie znajduje się w Nowym Centrum Łodzi, jednej z najszybciej rozwijających się części miasta.
W bezpośrednim sąsiedztwie:
-
🚆 Dworzec Łódź Fabryczna – ok. 200 m
-
🎓 Uniwersytet Łódzki – szybki dojazd
-
🚋 liczne przystanki tramwajowe i autobusowe pod budynkiem
-
🏙️ ul. Piotrkowska – kilka minut spacerem
-
🏢 EC1 / centrum kulturalno-naukowe
✔ świetna komunikacja w każdym kierunku miasta
✔ szybki dojazd do Warszawy (ok. 1h pociągiem)
🚀 Rozwój okolicy (potencjał inwestycyjny)
To jedna z najbardziej perspektywicznych lokalizacji w Łodzi:
-
dalsza rozbudowa osiedla Primo (kolejne etapy inwestycji)
-
intensywny rozwój Nowego Centrum Łodzi
-
nowe inwestycje mieszkaniowe i usługowe
-
rozwój infrastruktury kolejowej i projektów związanych z CPK (szybkie połączenia)
👉 okolica stale zyskuje na wartości – idealna inwestycja na wynajem lub przyszłą odsprzedaż
💡 Dla kogo?
-
inwestor (wynajem długo- i krótkoterminowy)
-
singiel / para
-
osoby pracujące w centrum lub dojeżdżające do Warszawy
Warunki Sprzedaży:
💰 Cena mieszkania: 468 000 zł
🚗 Miejsce w garażu podziemnym: 35 000 zł (dodatkowo)
📊 Czynsz adm.: ok. 500 złc
Mieszkanie posiada założoną księgę wieczystą.
Powyższa oferta ma charakter informacyjny i nie stanowi oferty handlowej w rozumieniu art. 66 §1 Kodeksu Cywilnego.