Dom na sprzedaż














Szczegóły ogłoszenia
- Symbol oferty KNG-DS-6763
- Typ oferty dom na sprzedaż
- Cena 1 199 000 zł
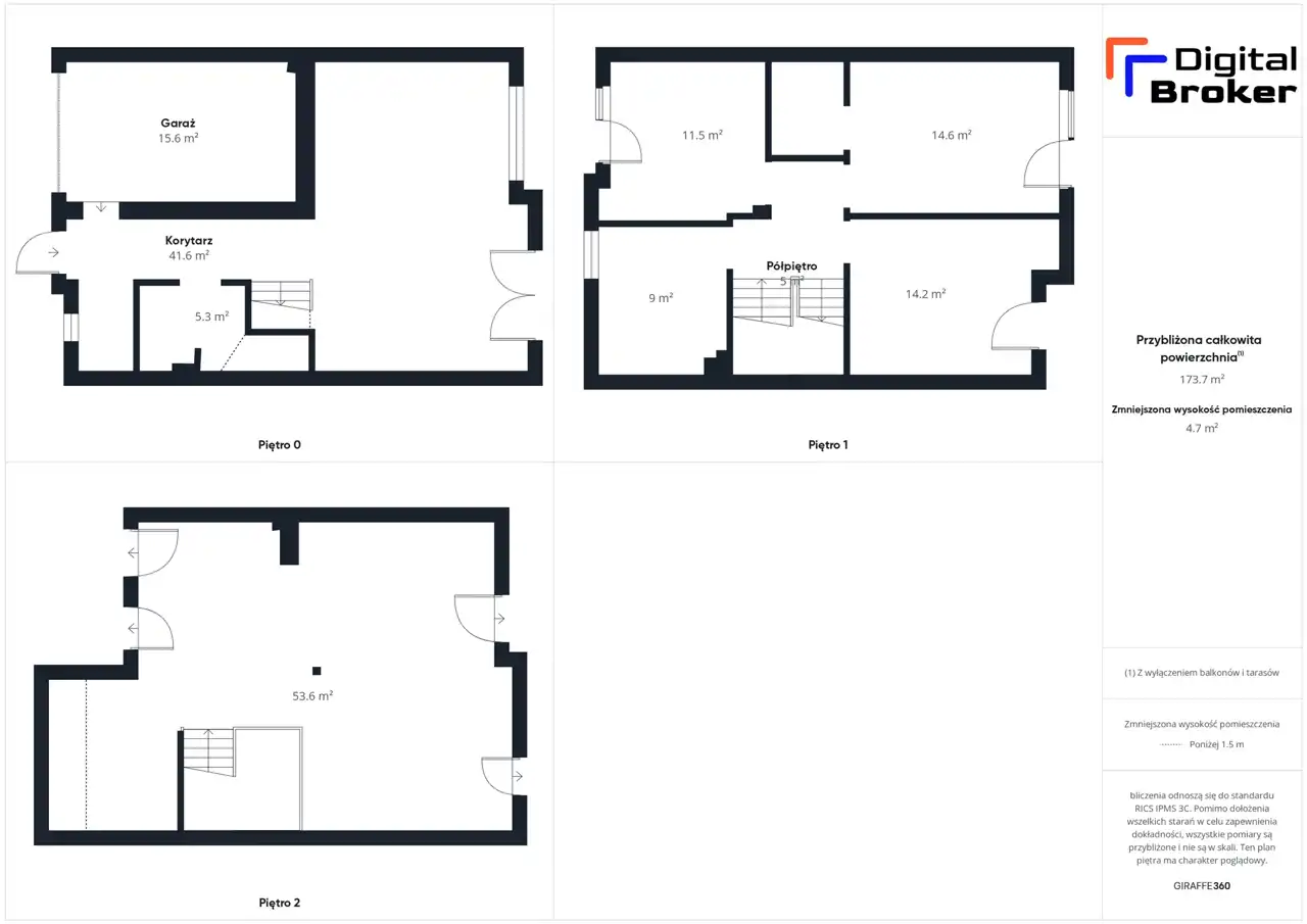
- Charakterystyka mieszkania 179.7 m2, 5 pokoi, do wykończenia
- Budynek rok budowy: 2025
- Bezpieczeństwo ogrodzenie działki: częściowo ogrodzona
- Działka Zagospodarowana, płaska, prostokąt
- Okna PCV 3 szyby, ciepły montaż
- Otoczenie osiedle
- Pokrycie dachu blacha panelowa
- Rodzaj domu segment środkowy
Lokalizacja
- Adres mazowieckie, Łomianki, Buraków
Opis nieruchomości
Zapraszam do zapoznania się z nową inwestycją w Łomiankach Dolnych. Duże domy z garażem i dodatkowym miejscem na podjeździe, spokojna, zielona okolica, ogród.
Domy są już wybudowane i gotowe do oddania, można je obejrzeć i złożyć ofertę.
Dom:
Głównym atutem jest rozkład domu, pomieszczenia są duże i ustawne.
Parter:
● przestronny salon z aneksem kuchennym,
● garaż i miejsce wyłożone kostką na podjeździe,
● łazienka z kotłownią,
● korytarz z wnęką na garderobę.
Piętro:
● trzy duże sypialnie,
● łazienka,
● miejsce na garderobę.
Poddasze:
● balkon, przestronna przestrzeń z wysokim sufitem do własnej aranżacji - deweloper może pomóc w postawieniu ścian według własnej aranżacji - nie zamykamy się na Państwa rozwiązania!
Budynek:
Osiedle zostało wybudowane w 2025 r. Znajduje się tam kilka budynków jednorodzinnych w zabudowie szeregowej. Technologia budowlana wysokiej jakości, ogrzewanie podłogowe na każdej kondygnacji!
Garaż w bryle budynku i miejsce postojowe. Osiedle zamknięte, bezpieczne i monitorowane.
Lokalizacja:
Inwestycja zlokalizowana w Łomiankach Dolnych, ciche spokojne i zielone miejsce blisko natury, ale również dobrze skomunikowane. Przyjazne dla rodzin z dziećmi.
W sąsiedztwie znajdują się:
● placówki edukacyjne (szkoła podstawowa i przedszkole)
● plac zabaw i boisko sportowe
● sklepy i punkty usługowe
● ścieżki rowerowe, trasy spacerowe
Stan prawny:
Pełna własność, księga wieczysta, grunty własnościowe. Można kupić w kredycie.
Opłaty:
Są to lokale bezczynszowe, opłaty tylko za media
Dodatkowe Informacje:
Decydując się na zakup tej nieruchomości, zyskujesz pełną obsługę prawną oraz bezpłatną pomoc w uzyskaniu kredytu hipotecznego. Rynek Pierwotny - brak prowizji od Kupującego.
Zapraszamy również do zapoznania się z ofertą na stronie dewelopera
https://www.domenaprojekt.com.pl/lomianki-domy-na-sprzedaz/
Kontakt:
Krystian Przyborowski