Dom na sprzedaż










Szczegóły ogłoszenia
- Symbol oferty PTY-DS-826
- Typ oferty dom na sprzedaż
- Cena 450 000 zł
- Charakterystyka mieszkania 61.4 m2, 3 pokoje, BARDZO WYSOKI STANDARD
- Media Ogrzewanie: pompa ciepła; Woda: jest; Kanalizacja: własna oczyszczalnia; Prąd: jest
- Bezpieczeństwo ogrodzenie działki: brak
- Balkon duży
- Dojazd asfalt
- Działka Zagospodarowana
- Garaż brak
- Instalacje nowe
- Material konstrukcyjny pustak ceramiczny
- Okna PCV 3 szyby, ciepły montaż
- Otoczenie jezioro i las
- Pokrycie dachu blacha
- Rodzaj domu rekreacyjny
Lokalizacja
- Adres małopolskie, Łososina Dolna, Znamirowice
Opis nieruchomości
Nowa wyjątkowa oferta !
Pozostały trzy domy na sprzedaż !
Na sprzedaż nowoczesne, całoroczne domy w Znamirowicach, położone ok. 200 m od Jeziora Rożnowskiego i 700 m od Yacht Clubu PTTK „Beskid”. Lokalizacja łączy ciszę i otoczenie natury z możliwością aktywnego wypoczynku – w pobliżu przystań żeglarska, trasy spacerowe i rowerowe oraz tereny rekreacyjne nad jeziorem.
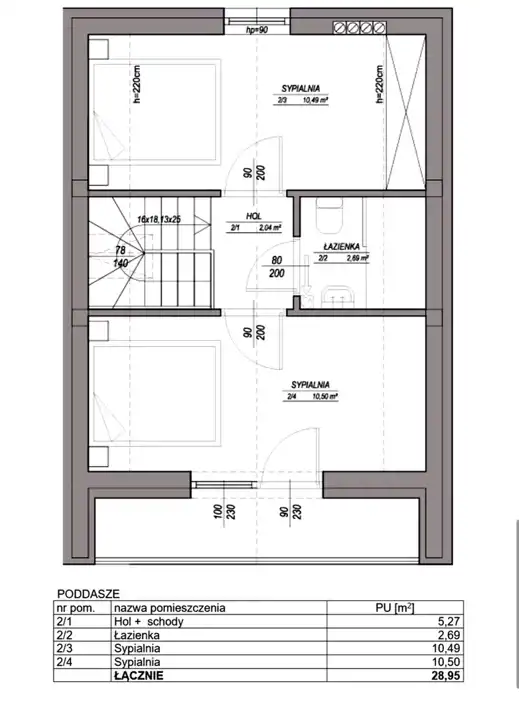
Domy o powierzchni 61,4 m², z funkcjonalnym układem: na parterze salon z kuchnią, łazienka, wiatrołap i pomieszczenie gospodarcze, na poddaszu dwa pokoje i druga łazienka.
Budynki wykonane w standardzie energooszczędnym: pompa ciepła Heiko Thermal Plus, ogrzewanie podłogowe w całym domu, okna o bardzo dobrych parametrach (Uw 0,7–0,8 W/m²K) w technologii ciepłego montażu. Ocieplenie zapewniają wysokiej klasy materiały – styropian grafitowy (ściany) oraz wełna mineralna (poddasze). W budowie zastosowano m.in. ceramikę Wienerberger oraz pokrycie dachowe z blachy Budmat.
Do każdego domu przynależą 2 miejsca postojowe. Nieruchomości wyposażone są w prąd, wodę oraz indywidualną przydomową oczyszczalnię.
Podstawowe informacje:
- liczba pokoi: 3
- powierzchnia użytkowa: 61,4 m²
- rodzaj zabudowy: dom wolnostojący
- rynek: pierwotny
- rok budowy: 2026
- liczba kondygnacji: parter + poddasze użytkowe
- materiał budynku: pustak
- dach: skośny, pokryty blachą
- okna: plastikowe
- ogrzewanie: pompa ciepła
Cena jednego domu: 450 000 zł brutto
Cena do negocjacji!