Mieszkanie na sprzedaż
355 000 zł
52 m2










1 / 10
Szczegóły ogłoszenia
- Symbol oferty MS-7031
- Typ oferty mieszkanie na sprzedaż
- Cena 355 000 zł
- Charakterystyka mieszkania 51.6 m2, 3 pokoje
- Budynek blok
- Rozkład mieszkania 1p piętro
- Media Ogrzewanie: C.O. miejskie; Woda: ciepła - miejska; Gaz: tak - miejski
- Balkon jest
- Czynsz Czynsz letni: 710 zł
- Dojazd asfalt
- Ilość sypialni 2
- Instalacje niewymienione
- Okna PCV
- Otoczenie osiedle
- Stan lokalu do remontu
Lokalizacja
- Adres dolnośląskie, Lubin, Przylesie
Opis nieruchomości
3 pokoje Lubin - Przylesie
I piętro
I piętro
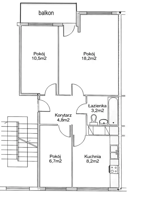
Mieszkanie o pow. 51,6 m2 składa się z
- 3 pokoi (z salonu wyjście na balkon)
- jasnej kuchni
- łazienki z wc
- przedpokoju.
Mieszkanie w pełni rozkładowe, dwustronne i środkowe, okna pcv. Budynek po termomodernizacji.
Czynsz mieszkaniowy: 710 zł (z administracją, funduszem remontowym i zaliczką na c.o.)
Czynsz mieszkaniowy: 710 zł (z administracją, funduszem remontowym i zaliczką na c.o.)
Najlepszy kredyt na zakup nieruchomości – kliknij i sprawdź. https://kredytylubin.com/
Cena: 355 tys. zł. do negocjacji.
Kontakt : Irena Bombała tel. 793 298 935
Filar Nieruchomości
ul. Kisielewskiego 3
59-300 Lubin
Do ceny należy doliczyć koszty przeniesienia własności w kancelarii notarialnej (w tym 2 % podatku PCC od zakupu) oraz koszt obsługi transakcji przez biuro nieruchomości.
Ze względu na zapisy ustawy o przeciwdziałaniu praniu pieniędzy przed prezentacją nieruchomości należy okazać dowód osobisty lub paszport oraz złożyć podpis na karcie prezentacji.
Nota prawna
Opis oferty zawarty na stronie internetowej sporządzany jest na podstawie oględzin nieruchomości oraz informacji uzyskanych od właściciela, może podlegać aktualizacji i nie stanowi oferty określonej w art. 66 i następnych K.C.
Kalkulator kredytowy
Formularz kontaktowy