Mieszkanie na sprzedaż











Szczegóły ogłoszenia
- Symbol oferty MS-7059
- Typ oferty mieszkanie na sprzedaż
- Cena 530 131 zł
- Charakterystyka mieszkania 58.91 m2, 3 pokoje
- Budynek blok
- Rozkład mieszkania parter piętro
- Media Ogrzewanie: ogrzewanie własne gazowe - piec dwufunkcyjny; Woda: jest; Gaz: tak - miejski
- Balkon taras
- Dojazd ASFALTOWA
- Garaż miejsce parkingowe przy budynku
- Ilość sypialni 2
- Instalacje nowe
- Okna PCV
- Otoczenie zabudowa mieszana
- Stan lokalu deweloperski
- Taras taras duży
- Winda Tak
Lokalizacja
- Adres dolnośląskie, Lubin, Małomice
Opis nieruchomości
Nowe mieszkania
Bezczynszowe 3 pokojowe mieszkanie z dużym tarasem
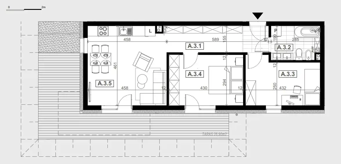
Na sprzedaż atrakcyjne mieszkanie o powierzchni 58,91 m2 m², położone na parterze nowoczesnej inwestycji. Lokal wyróżnia się funkcjonalnym układem oraz przestronnym tarasem o powierzchni 26,90 m², który stanowi doskonałą przestrzeń do wypoczynku.
Układ pomieszczeń:
- przedpokój – 9,09 m²
- salon z aneksem kuchennym – 20,64 m²
- łazienka – 5,43 m²
- pokój 12,50 m2
- pokój 11,25 m2
- taras 26,90 m2
Standard i udogodnienia:
Mieszkanie oferowane w stanie deweloperskim, co daje możliwość wykończenia według własnych potrzeb i preferencji. Planowany termin oddania inwestycji to IV kwartał 2026 roku.
W lokalu zastosowane będzie ogrzewanie z kotła gazowego oraz komfortowe ogrzewanie podłogowe, sterowane za pomocą programatora tygodniowego, co pozwala na wygodne zarządzanie temperaturą i optymalizację kosztów.
Osiedle zostało zaprojektowane z myślą o codziennym komforcie mieszkańców. Na terenie inwestycji znajdą się estetycznie zagospodarowane przestrzenie wspólne, w tym wygodne dojścia i dojazdy, miejsca do spacerów oraz odpoczynku. Do dyspozycji mieszkańców będą także elementy małej architektury, takie jak ławki, stojaki rowerowe czy kosze na śmieci. Całość uzupełni zadbana zieleń – zarówno niska, jak i wysoka – tworząca przyjazne i spokojne otoczenie. Dla najmłodszych przewidziano plac zabaw.
Przy budynku dostępne będą miejsca postojowe dla mieszkańców. Istnieje również możliwość zakupu komórki lokatorskiej.
Nieruchomość stanowi doskonałą propozycję zarówno dla osób poszukujących własnego mieszkania, jak i inwestorów planujących zakup pod wynajem.
Cena: 530 131 zł
Chcesz obliczyć ratę kredytu lub sprawdzić swoją zdolność kredytową?
Kliknij w link i sprawdź swoje możliwości finansowe.
Zapraszam na prezentację:
Joanna Wermuth-Kosiek
tel. 790 590 355
FILAR NIERUCHOMOŚCI
Lubin, ul. Kisielewskiego 3 (Ustronie IV)
Wejście od ul. Jana Pawła II – naprzeciw marketu LIDL
Naszym klientom oferujemy:
- gwarancję korzystnej ceny – jeśli znajdą Państwo tę nieruchomość taniej w innym biurze, zapewniamy lepsze warunki zakupu
- bezpieczeństwo transakcji – pełna ochrona ubezpieczeniowa T.U. HESTIA S.A. oraz licencja państwowa
- pomoc w uzyskaniu kredytu hipotecznego – bezpłatne doradztwo i kompleksowa obsługa formalna