Dom na sprzedaż
1 299 000 zł
151 m2




















1 / 20
Szczegóły ogłoszenia
- Symbol oferty GHN-DS-253
- Typ oferty dom na sprzedaż
- Cena 1 299 000 zł
- Charakterystyka mieszkania 151.33 m2, 4 pokoje, do zamieszkania
- Budynek rok budowy: 2015
- Media Ogrzewanie: C.O. GAZOWE; Woda: tak; Kanalizacja: miejska; Prąd: w budynku; Gaz: jest
- Bezpieczeństwo ogrodzenie działki: metalowe
- Balkon duży
- Dojazd asfalt
- Działka Zagospodarowana, prostokąt
- Garaż w poziomie piwnicy
- Instalacje ELEKTRYCZNA, WODNA, GAZOWA
- Okna PCV
- Otoczenie zabudowa jednorodzinna
- Podpiwniczenie Tak
- Pokrycie dachu blachodachówka
- Rodzaj domu bliźniak
- Stan prawny Udział
- Technologia budowlana beton komórkowy
- Umeblowanie do uzgodnienia
Lokalizacja
- Adres lubelskie, Lublin, Szerokie
Opis nieruchomości
Komfortowy, gotowy do zamieszkania, dom w świetnej lokalizacji w Lublinie !
Polecam dom w zabudowie bliźniaczej, usytuowany na ponad 3-arowej działce, w dzielnicy Szerokie. Budynek składa się z parteru oraz użytkowego poddasza. Jest w całości podpiwniczony i usytuowany w otoczeniu urządzonego ogrodu, wraz z altaną rekreacyjną.
Na pierwszej kondygnacji znajduje się strefa dzienna, która obejmuje przestronny salon z jadalnią, otwartą kuchnię oraz wiatrołap i toaletę. Z salonu widok na zieleń oraz balkon z wyjściem na ogród. W holu znajduje się wygodna klatka schodowa wiodąca do strefy wypoczynkowej, usytuowanej na poddaszu budynku, a także schody prowadzące do garażu i pomieszczeń gospodarczych usytuowanych na najniższej kondygnacji.
Na piętrze znajduje się strefa wypoczynkowa z trzema sypialniami i dużą łazienką.
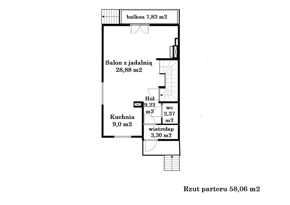
Zestawienie powierzchni pomieszczeń PARTERU:
Salon z jadalnią - 28,88 m2
Kuchnia - 9,0 m2
Wc - 2,37 m2
Klatka schodowa - 5,29 m2
Wiatrołap - 3,30 m2
Hol - 9,22 m2
Łączna powierzchnia parteru wynosi 58,06 m2.
Wielkości pomieszczeń PODDASZA:
Sypialnia 1 - 14,63 m2 (9,08 m2)
Sypialnia 2 - 14,21 m2 (9,26 m2)
Sypialnia 3 - 7,78 m2 (6,97 m2)
Łazienka - 6,62 m 2
Hol - 4,54 m 2
Powierzchnia poddasza wynosi 47,78 m2, zaś użytkowa 36,47 m2.
Powierzchnia użytkowa domu wynosi: 94,53 m2.
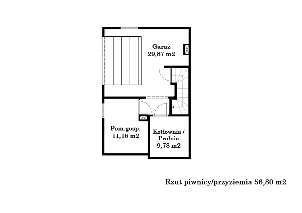
Zestawienie powierzchni pomieszczeń kondygnacji PRZYZIEMIA/PIWNICY:
Garaż - 29,87 m2
Pomieszczenie gospodarcze - 9,78 m2
Kotłownia/Pralnia - 11,16 m2
Łączna powierzchnia domu wynosi: 151,33 m2.
Media i instalacje:
Najważniejsze odległości:
przystanek MPK - 500 m
sklep Żabka - 500 m
kościół - 1100 m
apteka - 1100 m
przedszkole - 2100 m
szkoła podstawowa nr 50 - 2800 m
dwujęzyczne: przedszkole i szkoła Europejczyk - 2400 m
ul. Wojciechowska - 130 m
ul. Nałęczowska - 1100 m
Atuty: Miejsce cechuje kameralna atmosfera i zadbane otoczenie. W okolicy dominuje niska zabudowa jednorodzinna. Lokalizacja zapewnia dobry dostęp do infrastruktury - w pobliżu znajdują się: sklep spożywczy, siłownia, plac zabaw, trasy spacerowe, przystanek MPK.
Zapraszam do kontaktu i bliższego zapoznania się z przedmiotem oferty :)
Informacje dodatkowe:
Treść niniejszego ogłoszenia nie stanowi oferty handlowej w rozumieniu kodeksu cywilnego (art. 66 i następnych k.c.), ale jest zaproszeniem do współpracy. Opis, zawarty w ogłoszeniu, jest sporządzany na podstawie oględzin nieruchomości oraz informacji uzyskanych od właściciela i może on podlegać aktualizacji.
Oferta stanowi ofertę na wyłączność. Nie znajdziesz jej nigdzie więcej. Koszty dodatkowe pokrywane przez Kupującego to koszty notarialne, sądowe oraz podatek PCC, o ile Nabywca nie korzysta ze zwolnienia.
Polecam dom w zabudowie bliźniaczej, usytuowany na ponad 3-arowej działce, w dzielnicy Szerokie. Budynek składa się z parteru oraz użytkowego poddasza. Jest w całości podpiwniczony i usytuowany w otoczeniu urządzonego ogrodu, wraz z altaną rekreacyjną.
Na pierwszej kondygnacji znajduje się strefa dzienna, która obejmuje przestronny salon z jadalnią, otwartą kuchnię oraz wiatrołap i toaletę. Z salonu widok na zieleń oraz balkon z wyjściem na ogród. W holu znajduje się wygodna klatka schodowa wiodąca do strefy wypoczynkowej, usytuowanej na poddaszu budynku, a także schody prowadzące do garażu i pomieszczeń gospodarczych usytuowanych na najniższej kondygnacji.
Na piętrze znajduje się strefa wypoczynkowa z trzema sypialniami i dużą łazienką.
Zestawienie powierzchni pomieszczeń PARTERU:
Salon z jadalnią - 28,88 m2
Kuchnia - 9,0 m2
Wc - 2,37 m2
Klatka schodowa - 5,29 m2
Wiatrołap - 3,30 m2
Hol - 9,22 m2
Łączna powierzchnia parteru wynosi 58,06 m2.
Wielkości pomieszczeń PODDASZA:
Sypialnia 1 - 14,63 m2 (9,08 m2)
Sypialnia 2 - 14,21 m2 (9,26 m2)
Sypialnia 3 - 7,78 m2 (6,97 m2)
Łazienka - 6,62 m 2
Hol - 4,54 m 2
Powierzchnia poddasza wynosi 47,78 m2, zaś użytkowa 36,47 m2.
Powierzchnia użytkowa domu wynosi: 94,53 m2.
Zestawienie powierzchni pomieszczeń kondygnacji PRZYZIEMIA/PIWNICY:
Garaż - 29,87 m2
Pomieszczenie gospodarcze - 9,78 m2
Kotłownia/Pralnia - 11,16 m2
Łączna powierzchnia domu wynosi: 151,33 m2.
Media i instalacje:
- instalacja ogrzewania i ciepłej wody zasilana z kotła gazowego (piec jednofunkcyjny z zasobnikiem),
- instalacja wodociągowa zasilana z sieci miejskiej
- kanalizacja sanitarna miejska
- kanalizacja burzowa wraz ze zbiornikami na deszczówkę
- kominek 12 kW, z rozprowadzeniem ciepła na grzejniki
- instalacja fotowoltaiczna o mocy 4,74 kW z 2020r.
- uzdatniacz wody
- instalacja alarmowa
Najważniejsze odległości:
przystanek MPK - 500 m
sklep Żabka - 500 m
kościół - 1100 m
apteka - 1100 m
przedszkole - 2100 m
szkoła podstawowa nr 50 - 2800 m
dwujęzyczne: przedszkole i szkoła Europejczyk - 2400 m
ul. Wojciechowska - 130 m
ul. Nałęczowska - 1100 m
Atuty: Miejsce cechuje kameralna atmosfera i zadbane otoczenie. W okolicy dominuje niska zabudowa jednorodzinna. Lokalizacja zapewnia dobry dostęp do infrastruktury - w pobliżu znajdują się: sklep spożywczy, siłownia, plac zabaw, trasy spacerowe, przystanek MPK.
Zapraszam do kontaktu i bliższego zapoznania się z przedmiotem oferty :)
Informacje dodatkowe:
Treść niniejszego ogłoszenia nie stanowi oferty handlowej w rozumieniu kodeksu cywilnego (art. 66 i następnych k.c.), ale jest zaproszeniem do współpracy. Opis, zawarty w ogłoszeniu, jest sporządzany na podstawie oględzin nieruchomości oraz informacji uzyskanych od właściciela i może on podlegać aktualizacji.
Oferta stanowi ofertę na wyłączność. Nie znajdziesz jej nigdzie więcej. Koszty dodatkowe pokrywane przez Kupującego to koszty notarialne, sądowe oraz podatek PCC, o ile Nabywca nie korzysta ze zwolnienia.
Nota prawna
Opis oferty zawarty na stronie internetowej sporządzany jest na podstawie oględzin nieruchomości oraz informacji uzyskanych od właściciela, może podlegać aktualizacji i nie stanowi oferty określonej w art. 66 i następnych K.C.
Kalkulator kredytowy
Formularz kontaktowy