Mieszkanie na sprzedaż























Szczegóły ogłoszenia
- Symbol oferty ANNA-MS-147
- Typ oferty mieszkanie na sprzedaż
- Cena 820 000 zł
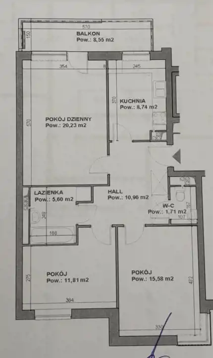
- Charakterystyka mieszkania 74.63 m2, 3 pokoje
- Budynek rok budowy: 2009
- Rozkład mieszkania 2p piętro
- Media Ogrzewanie: C.O. Z SIECI MIEJSKIEJ; Woda: tak - miejska; Gaz: brak
- Balkon duży
- Czynsz Czynsz letni: 915 zł
- Garaż miejsce garażowe
- Instalacje nowe
- Okna PCV
- Stan lokalu bardzo dobry
- Winda Tak
Lokalizacja
- Adres lubelskie, Lublin, Ponikwoda
Opis nieruchomości
Mieszkanie położone na 2 piętrze w bloku z windą, z 2009 roku.
Rozkład mieszkania idealny dla rodziny z dziećmi, z możliwością zmiany rozkładu tj. zamknięcia kuchni, lub przeniesienia aneksu kuchennego do salonu i utworzenia 4 pokoju.
Mieszkanie składa się obecnie z:
- przestronnego salonu połączonego z aneksem kuchennym o łącznej powierzchni ok 29 mkw z wyjściem na duży balkon od zachodniej strony
- oddzielnej sypialni o powierzchni ok 15,58 mkw
- pokoju o powierzchni ok 12 mkw
- łazienki o pow. 5,6 mkw
- przedpokoju ok 11 mkw
- garderoby
Mieszkanie wykończone w dobrym standardzie. Nie wymaga nakładów finansowych.
Na podłogach w całym mieszkaniu drewno egzotyczne, utrzymane w bardzo dobrym stanie.
Okna pcv, w oknach zamontowane żaluzje i rolety rzymskie. Drzwi wewnętrzne i ościeżnice drewniane.
Większa sypialnia ma narożne okna z ładnym widokiem na wschody słońca. Zamontowana duża szafa w zabudowie. Ściana wykończona tapetą w modny wzór ornamentu.
Mniejsza sypialnia jest ustawna i usytuowana jest od wschodniej strony.
Salon połączony jest obecnie z kuchnią. Powierzchnia salonu ok 20 mkw, kuchni ok 8,74 mkw. Pierwotny rozkład przewidywał kuchnię zamkniętą.
Z salonu wyjście na kilkumetrowy balkon od zachodniej strony. Zamontowana klimatyzacja.
Kuchnia w zabudowie wykonanej na indywidualne zamówienie, z praktycznymi rozwiązaniami, dużo miejsca do przechowywania. Szerokie szuflady, szafki cargo, szafki obrotowe, zamontowane podchwyty. Na ścianie praktyczny lacobel. Wysokiej jakości sprzęt AGD firmy Teka pozostaje w cenie mieszkania.
W przestronnej łazience znajduje się zarówno narożna wanna jak i kabina prysznicowa. Wysokiej jakości glazura i terakota. Ogromne lustra powiększają przestrzeń i pełnią funkcję szafek do przechowywania. Umywalka nablatowa z szafką z pojemnymi szufladami. Sufit podwieszany, oświetlenie halogenowe. Dodatkowo dekoracyjne półki nad wanną z oświetleniem ledowym.
W przedpokoju znajduje się szafa w zabudowie typu komandor, z drzwiami przesuwnymi.
Ogrzewanie i ciepła woda z sieci miejskiej.
Czynsz za mieszkanie bez zaliczek na wodę wynosi ok 920 zł.
Do mieszkania przynależy piwnica o powierzchni prawie 6 mkw.
Miejsce parkingowe ok 16,95 mkw w garażowisku podziemnym w dodatkowej cenie 80 tys zł.
Osiedle jest ogrodzone, monitorowane i chronione całodobowo, portiernia. Bardzo dobrze utrzymana zieleń. Na terenie dostępny plac zabaw.
Dodatkowe miejsca parkingowe na terenie osiedla tylko dla mieszkańców.
Bardzo atrakcyjna oferta!
Potrzebujesz wsparcia w zakresie uzyskania kredytu - oferujemy bezpłatne porady specjalistów.
Chcesz połączyć zakup nowej nieruchomości ze sprzedażą obecnej? Pomożemy, skontaktuj się z Nami.
Z Naszym Biurem oszczędzisz czas i pieniądze! Będziemy z Tobą na każdym etapie transakcji od wyboru mieszkania, aż do finansowania i odbioru lokalu!
Posiadamy w ofercie podobne nieruchomości, mamy dostęp do dużej bazy ofert nieruchomości na terenie Lublina i okolic.
Zapraszam do obejrzenia mieszkania, zadzwoń i umów się na bezpłatne spotkanie!
Szanowni Państwo, Nasze Biuro zawsze dąży do tego, aby informacje zawarte w ofertach były jak najbardziej dokładne i aktualne. Warto jednak mieć na uwadze fakt, że opis oferty przygotowywany na podstawie oględzin nieruchomości oraz informacji uzyskanych od właściciela, może podlegać aktualizacji i nie stanowi oferty w rozumieniu Kodeksu Cywilnego.