Mieszkanie na sprzedaż
















Szczegóły ogłoszenia
- Symbol oferty KNG-MS-7423
- Typ oferty mieszkanie na sprzedaż
- Cena 1 199 000 zł
- Charakterystyka mieszkania 137 m2, 6 pokoi
- Budynek segment; rok budowy: 2021
- Rozkład mieszkania 1p piętro
- Media Ogrzewanie: piec dwufunkcyjny; Woda: piec gazowy dwufunkcyjny; Gaz: brak
- Balkon jest
- Dojazd ASFALTOWA
- Instalacje KLIMATYZACJA, TELEFONICZNA, OGRZEWANIE
- Okna PCV
- Otoczenie działki niezabudowane
- Stan lokalu do odświeżenia
- Technologia budowlana beton, gazobeton
- Umeblowanie częściowo umeblowane
Lokalizacja
- Adres mazowieckie, Marki
Opis nieruchomości
Prezentujemy wyjątkową nieruchomość o łącznej powierzchni ok. 137 m², zlokalizowaną w Markach przy ul. Długiej. Jest to idealna propozycja inwestycyjna lub doskonałe rozwiązanie dla dwóch rodzin, które chcą mieszkać blisko siebie, zachowując pełną niezależność.
Okolica charakteryzuje się ciszą, spokojem oraz bliskością natury - jest to sam początek Puszczy Słupeckiej z pięknymi terenami leśnymi.
Głównymi atutami są: dwa całkowicie niezależne mieszkania, osobne wejścia, ogrzewanie podłogowe w każdym pomieszczeniu, klimatyzacja oraz cicha i spokojna okolica.
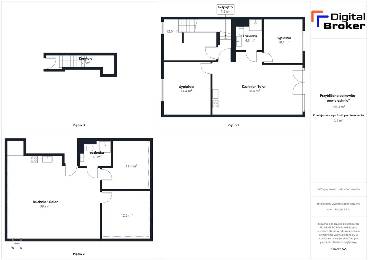
Mieszkanie – I piętro
Na 71,3 m² znajdują się:
-
przestronny salon z aneksem kuchennym o powierzchni 28,5 m² z wyjściem na balkon i widokiem na dużą, otwartą przestrzeń,
-
sypialnia o powierzchni 14,5 m² z oknem,
-
druga sypialnia o powierzchni 10,1 m² z oknem,
-
łazienka o powierzchni 4,3 m²,
-
prywatny korytarz prowadzący do osobnego wejścia.
W całym mieszkaniu zastosowano ogrzewanie podłogowe.
Mieszkanie – II piętro (poddasze)
Drugie piętro stanowi osobne, niezależne mieszkanie z własnym wejściem. Na tej kondygnacji znajduje się:
-
korytarz z dużą szafą usytuowaną na półpiętrze,
-
salon z aneksem kuchennym o powierzchni 39,2 m²,
-
sypialnia o powierzchni 12,6 m²,
-
druga sypialnia o powierzchni 11,1 m²,
-
łazienka o powierzchni 3,8 m².
Na piętrze znajduje się jednostka klimatyzacji w salonie, a także ogrzewanie podłogowe we wszystkich pomieszczeniach.
ZAPRASZAMY DO ZAPOZNANIA SIĘ Z NIERUCHOMOŚCIĄ POPRZEZ SPACER WIRTUALNY!
Standard i wyposażenie
Oba mieszkania są estetycznie urządzone, utrzymane w spójnym i przyjemnym stylu, jednak nie są umeblowane i wymagają drobnych poprawek, które zostaną szczegółowo omówione podczas prezentacji.
Daje to nowemu właścicielowi możliwość łatwej personalizacji wnętrz według własnych potrzeb.
Budynek
Nieruchomość znajduje się w budynku dwulokalowym, co zapewnia kameralność, prywatność i komfort życia.
Każde z mieszkań posiada osobne, niezależne wejście.
Osiedle jest spokojne i zamieszkiwane przez życzliwych sąsiadów.
Lokalizacja
Marki to miejscowość ceniona za spokojny charakter, dobrą komunikację z Warszawą oraz stale rozwijającą się infrastrukturę.
Ulica Długa to lokalizacja łącząca ciszę i wygodę codziennego życia.
W okolicy znajdują się:
-
sklepy i punkty usługowe,
-
placówki edukacyjne,
-
tereny zielone sprzyjające spacerom i rekreacji,
-
szybki dojazd do Warszawy.
Miejsca parkingowe
Do nieruchomości przynależą dwa zewnętrzne miejsca parkingowe, zlokalizowane bezpośrednio pod budynkiem, na terenie osiedla — płatne dodatkowo.
Stan prawny
Pełna własność.
Istnieje możliwość zakupu nieruchomości z wykorzystaniem kredytu hipotecznego – chętnie pomogę w uzyskaniu najlepszych warunków finansowania.
Opłaty
-
dodatkowo płatne miejsca parkingowe,
-
mieszkanie bezczynszowe,
-
media według zużycia.
Dodatkowe informacje
Decydując się na zakup tej nieruchomości, zyskujesz kompleksową obsługę, w tym bezpłatną pomoc w uzyskaniu kredytu hipotecznego.
Współpracujemy ze sprawdzonym doradcą kredytowym.
Współpracując z Digital Broker, otrzymujesz rabat na usługi notarialne.
Jako profesjonalne biuro nieruchomości pobieramy wynagrodzenie prowizyjne za wykonanie usługi pośrednictwa.
Zapraszam do kontaktu
Krystian Przyborowski
Doradca ds. nieruchomości