Dom na sprzedaż




















Szczegóły ogłoszenia
- Symbol oferty DNX-DS-30092
- Typ oferty dom na sprzedaż
- Cena 1 645 000 zł
- Charakterystyka mieszkania 260.32 m2, 5 pokoi, do wykończenia
- Budynek rok budowy: 2021
- Media Ogrzewanie: podłogowe; Woda: tak; Kanalizacja: szambo; Prąd: jest; Gaz: jest
- Bezpieczeństwo ogrodzenie działki: brak
- Dojazd asfalt
- Działka częściowo zagospodarowana, płaska, prostokąt
- Garaż garaż na dwa samochody
- Ilość sypialni 4
- Instalacje nowe
- Material konstrukcyjny pustak ceramiczny
- Okna PCV
- Otoczenie zabudowa jednorodzinna
- Podpiwniczenie Tak
- Pokrycie dachu dachówka ceramiczna
- Pozwolenie na użytkowanie Tak
- Rodzaj domu wolnostojący
- Stan prawny Własność
Lokalizacja
- Adres małopolskie, Michałowice (gw), Książniczki
Opis nieruchomości
Widokowy dom wolnostojący z dużym potencjałem – Książniczki, gm. Michałowice
Na sprzedaż przestronny dom wolnostojący o powierzchni użytkowej 171,37 m² (pow. całkowita 260,32 m²), położony na widokowej działce o powierzchni 9,3 ara. Nieruchomość znajduje się w miejscowości Książniczki, w gminie Michałowice – zaledwie kilkanaście minut od Krakowa.
Dom w stanie deweloperskim został oddany do użytkowania w 2021 roku. Przemyślany rozkład pomieszczeń oraz pełne podpiwniczenie dają duże możliwości aranżacyjne – zarówno dla rodziny, jak i pod działalność usługową.
Rozkład pomieszczeń:
PIWNICA:
-
kotłownia/pralnia 15,09m2
-
pomieszczenie gospodarcze 14,89m2
-
schowek 0,8m2
-
dwa garaże po 21,52m2
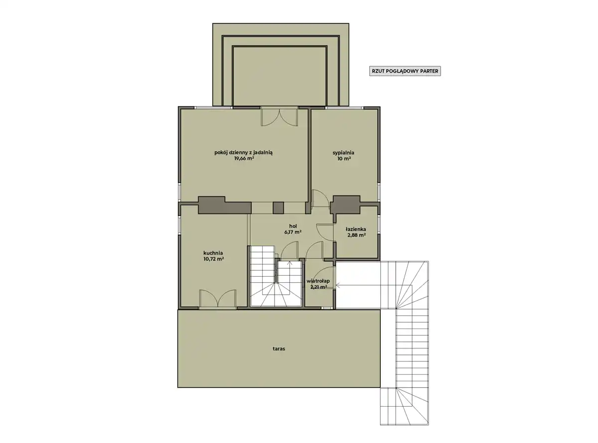
PARTER:
-
wiatrołap 2,21m2
-
hall 6,17m2
-
łazienka 2,88m2
-
kuchnia 10,72m2
-
przestronny salon z jadalnią 19,66m2
-
sypialnia 10m2
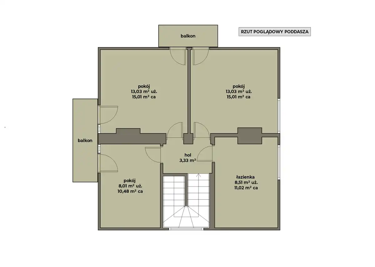
PODDASZE:
-
hall 3,33m2
-
łazienka pow. użytkowa 8,51m2
-
trzy ustawne sypialnie pow. użytkowa 13,03m2; 13,03m2; 8,01m2
Główne atuty nieruchomości:
-
widokowa działka na szczycie wzgórza – piękna panorama okolicy
-
pełne podpiwniczenie – idealne pod pracownię, biuro lub magazyn
-
spokojna lokalizacja z dostępem do komunikacji i szybkim wjazdem na obwodnice Krakowa
-
funkcjonalny układ pomieszczeń i możliwość własnej aranżacji wnętrz
Dodatkowo w okolicy znajduje się podstawowa infrastruktura handlowo-usługowa oraz przystanki komunikacji podmiejskiej.
Zachęcamy do kontaktu i zapraszamy na prezentację!