Dom na sprzedaż




















Szczegóły ogłoszenia
- Symbol oferty NHM-DS-36780
- Typ oferty dom na sprzedaż
- Cena 799 000 zł
- Charakterystyka mieszkania 175 m2, 5 pokoi, do wykończenia
- Budynek rok budowy: 2019
- Media Prąd: jest; Gaz: w ulicy
- Bezpieczeństwo ogrodzenie działki: siatka
- Balkon jest
- Działka Niezagospodarowana, płaska, romb
- Garaż wolnostojący
- Ilość sypialni 5
- Instalacje brak
- Material konstrukcyjny beton komórkowy
- Plac zabaw Tak
- Podpiwniczenie Tak
- Pokrycie dachu dachówka
- Pozwolenie na użytkowanie Brak
- Rodzaj domu wolnostojący
- Stan prawny Własność
Lokalizacja
- Adres dolnośląskie, Milicz
Opis nieruchomości
Na sprzedaż pięknie położona działka, która znajduje się w Miliczu-Wszewilki na prestiżowym osiedlu domków jednorodzinnych, zabudowana domem wolnostojącym w stanie surowym.
Działka ma powierzchnię 1353 m2.
Dom o powierzchni użytkowej 175 m2 + lokal użytkowy 90 m2 w stanie surowym otwartym, z nowo położonym dachem renomowanej firmy Brass - Turmalin. Okna dachowe drewniane firmy Fakro, wraz z roletami elektrycznymi.
Dom można dokończyć wedle własnego pomysłu i inwencji, bez konieczności załatwiania wielu formalności, które są najbardziej uciążliwe na początku budowy!
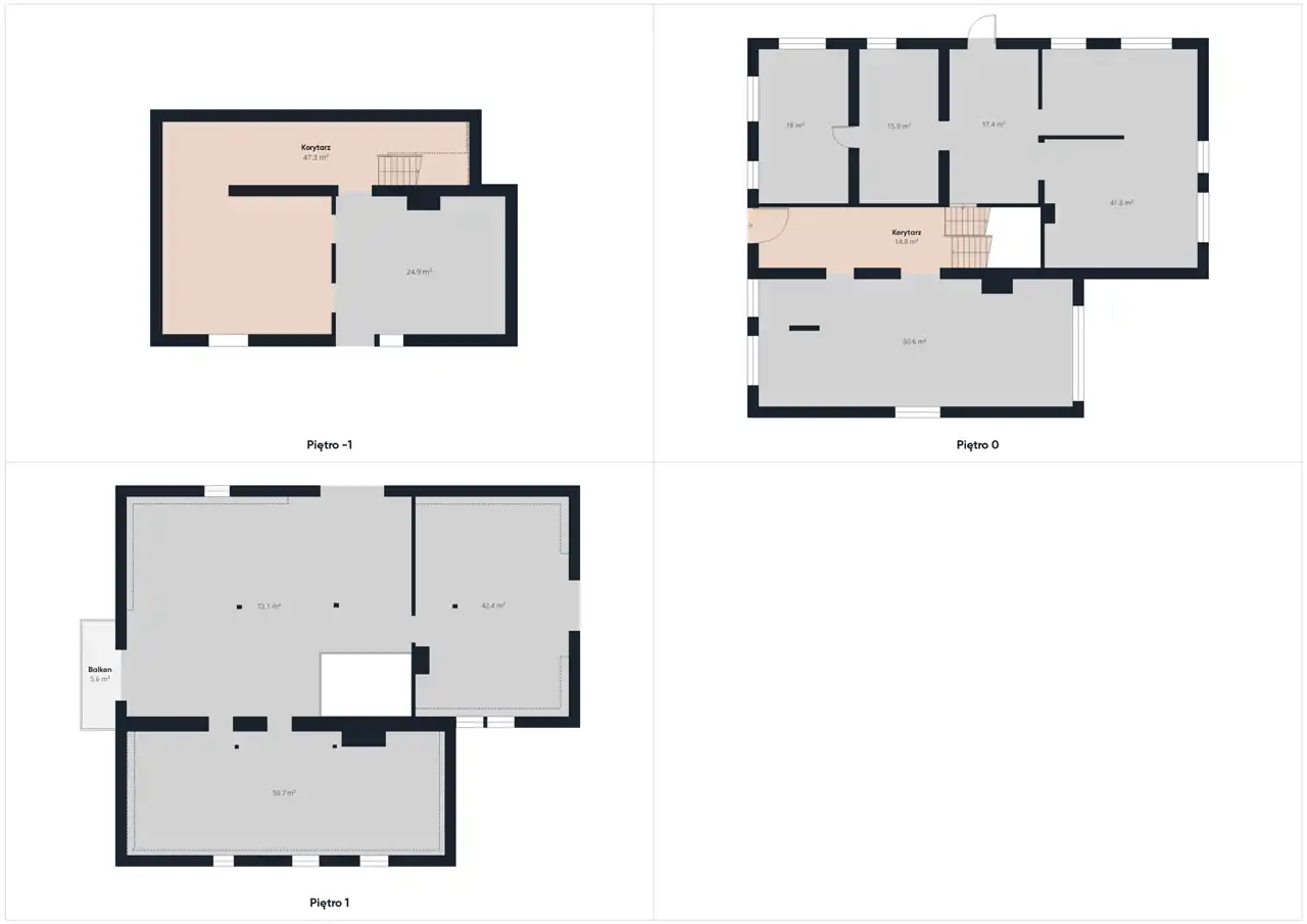
Powierzchnia poszczególnych pomieszczeń jest przedstawiona na rzutach kondygnacji.
Propozycja układu pomieszczeń na kolejnych rzutach.
Co obecnie jest bardzo rzadko spotykane - mamy tutaj piwnicę, która może posłużyć jako pomieszczenie techniczne, spiżarka, albo jako dodatkowa powierzchnia rekreacyjna - np. pokój telewizyjny/bilardowy itp.
Dodatkowo - na działce są wykonane fundamenty pod garaż wolnostojący 2-stanowiskowy z pomieszczeniem gospodarczym.
Wg projektu, domu jest dwulokalowy. W osobnym lokalu (z osobnym wejściem) możemy stworzyć odrębne mieszkanie lub lokal usługowy/biurowy.
Lokalizacja:
- 4 min. od centrum Milicza
- 22 min. od Krotoszyna
- 30 min. od Trzebnicy
- 45 min. od Ostrowa Wielkopolskiego
- 50 min. od Wrocławia
Przy zakupie oferujemy bon rabatowy do Leroy Merlin!
Oferujemy wsparcie przy uzyskaniu finansowania na zakup nieruchomości.
Pomożemy we wszystkich formalnościach.
Serdecznie zapraszam do kontaktu i prezentacji domu.
*Prezentowana oferta nie stanowi oferty handlowej w rozumieniu Art. 66§1 Kodeksu Cywilnego, a dane w niej zawarte mają charakter jedynie informacyjny i mogą ulec zmianie.