Mieszkanie na sprzedaż








































Szczegóły ogłoszenia
- Symbol oferty DNX-MS-30273
- Typ oferty mieszkanie na sprzedaż
- Cena 864 000 zł
- Charakterystyka mieszkania 108 m2, 5 pokoi
- Budynek bliźniak; rok budowy: 2025
- Rozkład mieszkania 1p piętro
- Media Ogrzewanie: C.O. GAZOWE; Woda: jest; Gaz: jest
- Dojazd asfalt
- Ilość sypialni 4
- Instalacje nowe
- Okna PCV
- Otoczenie działki niezabudowane
- Stan lokalu bardzo dobry
- Technologia budowlana pustak ceramiczny
Lokalizacja
- Adres małopolskie, Mogilany, Libertów
Opis nieruchomości
Kupujący nie płaci prowizji ani podatku PCC
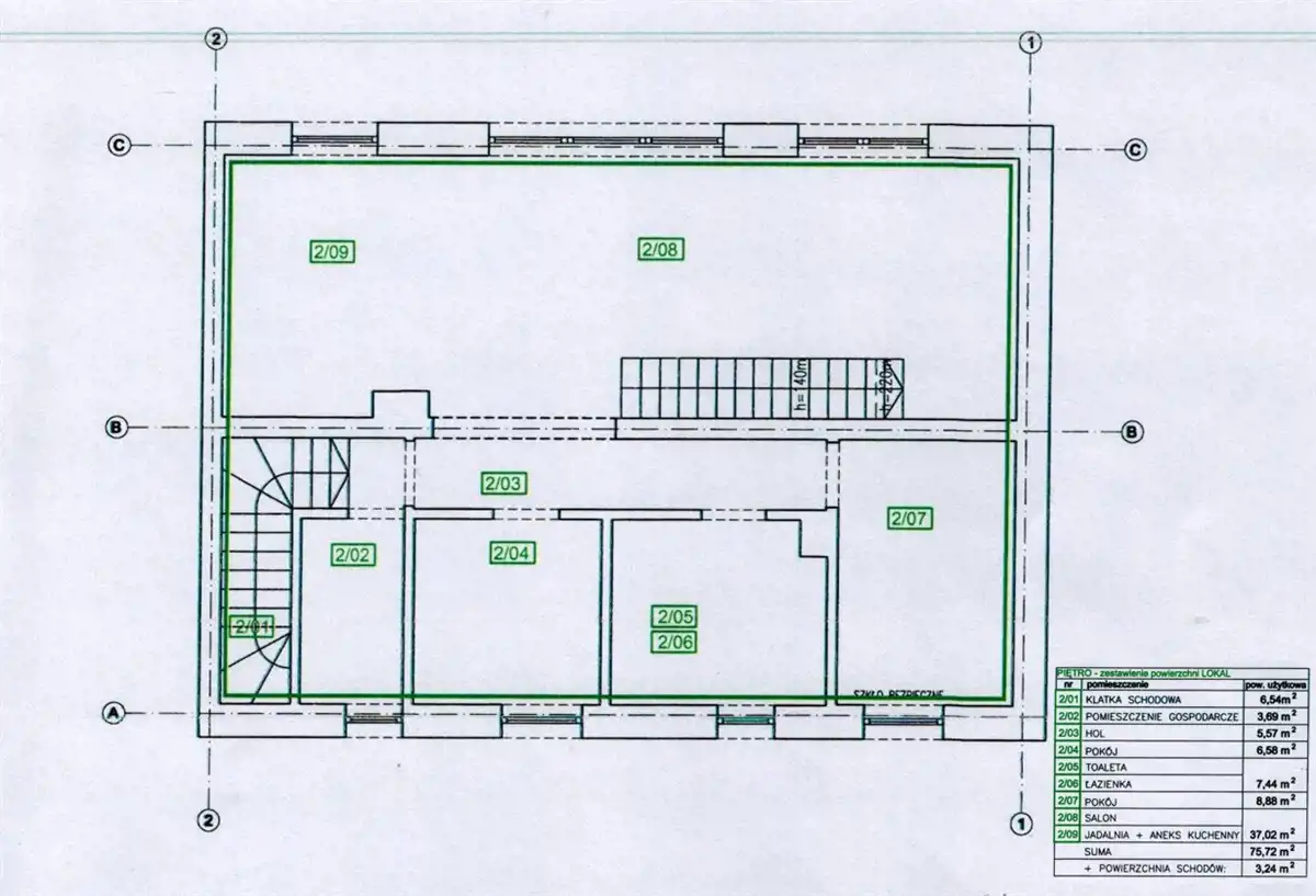
Na sprzedaż oferujemy przestronne mieszkanie o powierzchni 108 m², obejmujące 1. piętro oraz poddasze użytkowe w kameralnym budynku dwulokalowym w Libertowie. Funkcjonalny układ wnętrz zapewnia komfort codziennego życia, a dodatkowa przestrzeń na poddaszu daje wiele możliwości aranżacyjnych.
Rozkład pomieszczeń:
1. poziom (1. piętro):
-
salon z aneksem kuchennym 37,02m2
-
2 sypialnie 8,88m2 i 6,58m2
- łazienka 7,44m2
-
pomieszczenie gospodarcze 3,69m2
- korytarz 5,57m2
- klatka schodowa 6,54m2
2. poziom (poddasze użytkowe):
-
przestronny open space do indywidualnej aranżacji - pow. użytkowa 24,4m2
-
łazienka - pow. użytkowa 5,64m2
Najważniejsze atuty mieszkania:
-
duży metraż z podziałem na dwa poziomy,
-
poddasze użytkowe z możliwością wielu aranżacji (strefa rekreacyjna, biuro, dodatkowe sypialnie),
-
kameralny budynek,
-
ogrzewanie podłogowe w każdym pomieszczeniu,
-
szybki internet światłowodowy,
-
2 miejsca postojowe przynależne do mieszkania (15 000 zł każde).
Budynek i inwestycja:
Inwestycja ukończona w 2025 roku, wykonana z wysokiej jakości materiałów. Kameralna zabudowa zapewnia ciszę, prywatność i komfort.
Dostępne również inne mieszkania w tej inwestycji:
-
parter, 73 m² z ogródkiem – wykończone (do wprowadzenia, brak mebli, sprzętu AGD/RTV i zabudowy kuchennej), cena 912 500 zł.
-
parter, 73 m² z ogródkiem – stan deweloperski, cena 700 000 zł.
Lokalizacja:
Mieszkanie znajduje się w południowej części Libertowa, w cichej okolicy domów jednorodzinnych. W odległości ok. 1 km dostępna jest pełna infrastruktura handlowo-usługowa i komunikacyjna. Szybki dojazd do Krakowa i jego obwodnicy – tylko kilka minut samochodem.
Zapraszamy na prezentację – idealna propozycja dla osób, które szukają przestrzeni, nowoczesnego standardu i kameralnej lokalizacji tuż obok Krakowa.