Mieszkanie na sprzedaż
















































Szczegóły ogłoszenia
- Symbol oferty DNX-MS-30272
- Typ oferty mieszkanie na sprzedaż
- Cena 912 500 zł
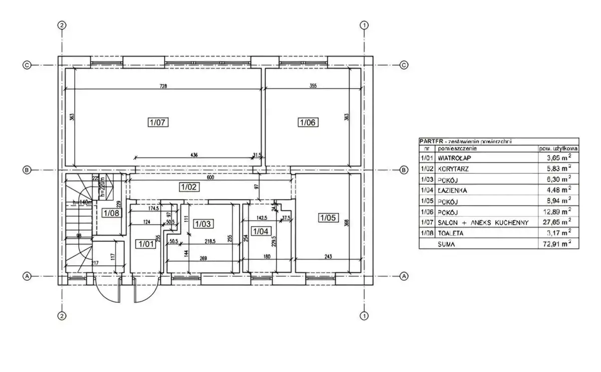
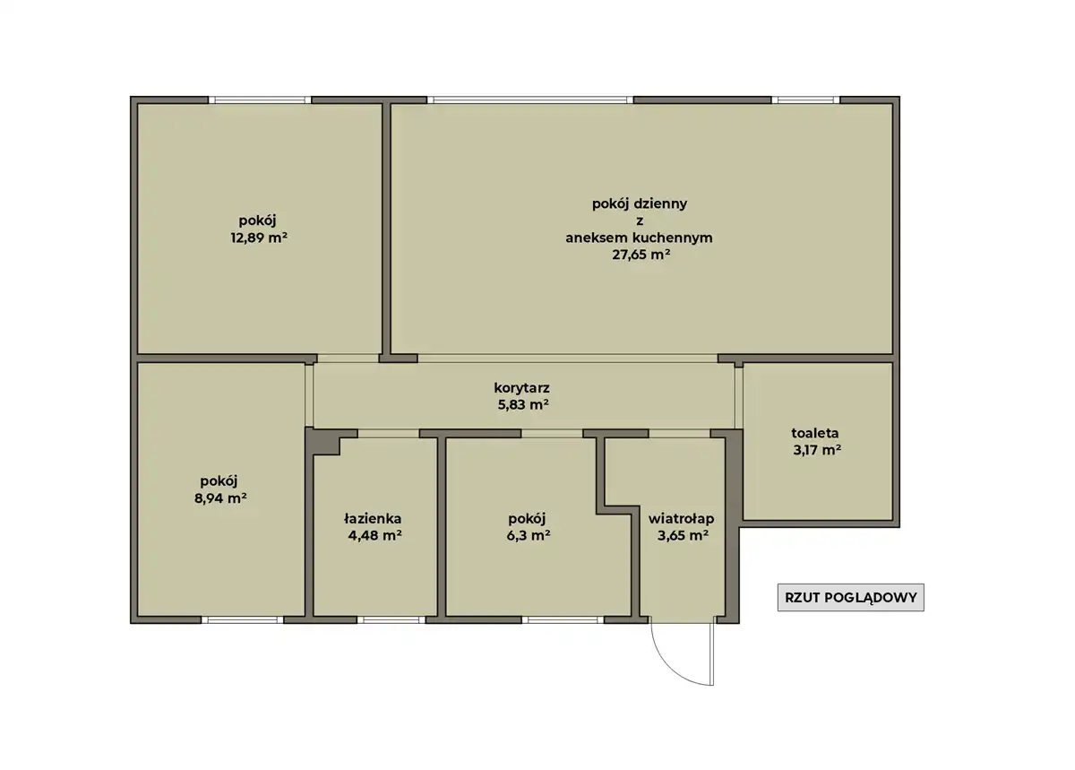
- Charakterystyka mieszkania 73 m2, 4 pokoje
- Budynek bliźniak; rok budowy: 2025
- Rozkład mieszkania parter piętro
- Media Ogrzewanie: C.O. GAZOWE; Woda: jest; Gaz: jest
- Dojazd asfalt
- Garaż miejsce postojowe
- Ilość sypialni 3
- Instalacje nowe
- Okna PCV 3 komorowe
- Otoczenie działki niezabudowane
- Stan lokalu bardzo dobry
- Technologia budowlana pustak ceramiczny
Lokalizacja
- Adres małopolskie, krakowski, Mogilany
Opis nieruchomości
Kupujący nie płaci prowizji ani podatku PCC, mieszkanie wykończone przez dewelopera, jeszcze nie zamieszkałe.
Na sprzedaż oferujemy komfortowe mieszkanie z ogródkiem w kameralnym budynku dwulokalowym, położone w Libertowie. Nieruchomość ma 73 m² i została wykończona w wysokim standardzie – wystarczy wprowadzić własne meble, sprzęt AGD/RTV oraz zabudowę kuchenną, aby stworzyć wnętrze idealnie dopasowane do swoich potrzeb.
Rozkład pomieszczeń:
-
salon z aneksem kuchennym,
-
3 sypialnie (jedna z możliwością aranżacji na gabinet lub garderobę),
-
2 łazienki – jedna z wanną, druga z prysznicem,
-
korytarz,
-
wiatrołap.
Najważniejsze atuty mieszkania:
-
ogródek o powierzchni 125 m², idealny na relaks i spotkania z bliskimi,
-
cicha, kameralna okolica,
-
nowoczesne ogrzewanie podłogowe w każdym pomieszczeniu,
-
światłowód – szybki i stabilny internet,
-
do dyspozycji 2 miejsca postojowe (15 000 zł każde).
Budynek i inwestycja:
Nowoczesny, wykonany z wysokiej jakości materiałów i oddany do użytkowania w 2025 roku. Kameralny charakter inwestycji zapewnia prywatność i komfort.
Dostępne również inne mieszkania w tej inwestycji:
-
parter, 73 m² z ogródkiem – stan deweloperski, cena 700 000 zł,
-
1. piętro z poddaszem użytkowym, 108 m² – stan deweloperski, cena 864 000 zł.
Lokalizacja:
Mieszkanie położone w południowej części Libertowa, w spokojnym otoczeniu domów jednorodzinnych. W odległości ok. 1 km znajduje się pełna infrastruktura handlowo-usługowa i komunikacyjna. Szybki dojazd do Krakowa i obwodnicy zajmuje tylko kilka minut.
Zapraszamy na prezentację – to idealne miejsce dla osób szukających komfortu, ciszy i własnego ogrodu w bliskim sąsiedztwie Krakowa!