Dom na sprzedaż























Szczegóły ogłoszenia
- Symbol oferty PRP-DS-75844
- Typ oferty dom na sprzedaż
- Cena 960 000 zł
- Charakterystyka mieszkania 137.32 m2, 4 pokoje, do wykończenia
- Budynek rok budowy: 2025
- Media Ogrzewanie: piec dwufunkcyjny; Woda: tak - miejska; Kanalizacja: tak; Prąd: jest; Gaz: jest
- Bezpieczeństwo Rolety antywłamaniowe; ogrodzenie działki: ogrodzona
- Balkon jest
- Dojazd ASFALTOWA
- Działka Zagospodarowana, płaska, prostokąt
- Garaż w bryle
- Ilość sypialni 3
- Instalacje nowe
- Material konstrukcyjny cegła, pustak
- Okna PCV 3 komorowe
- Otoczenie działki zabudowane
- Pokrycie dachu papa termozgrzewalna
- Pozwolenie na użytkowanie W trakcie uzyskiwania
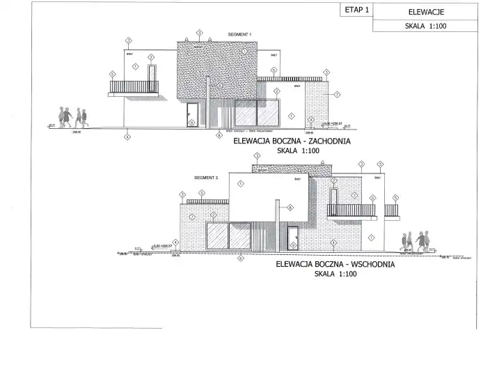
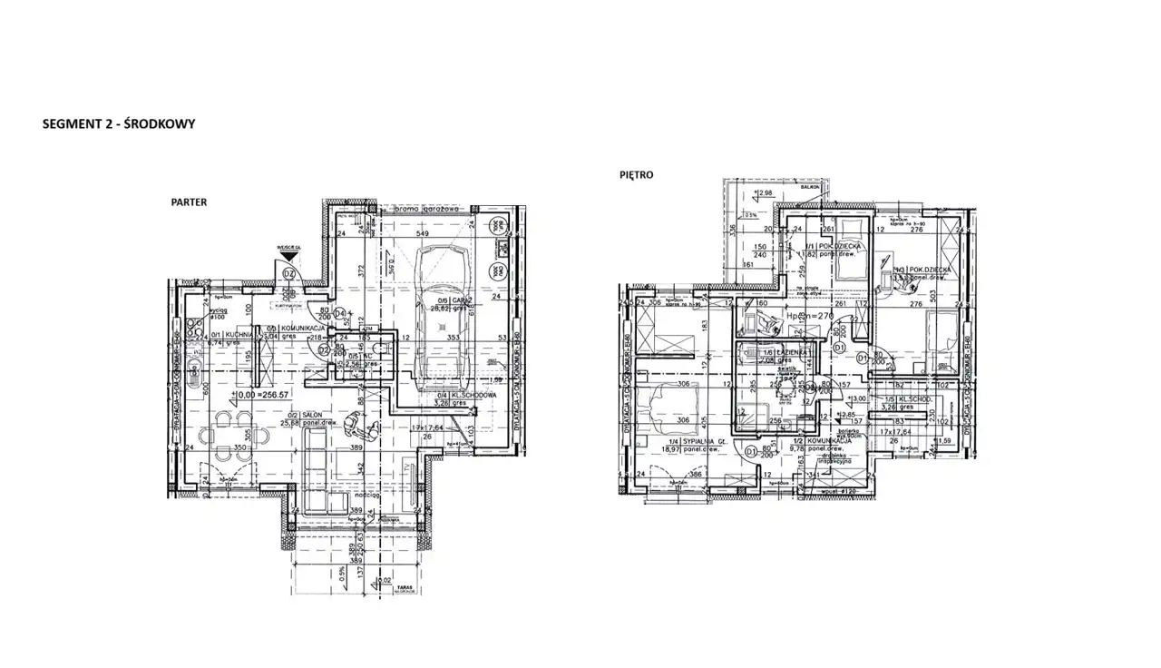
- Rodzaj domu segment środkowy
- Stan prawny Własność
Lokalizacja
- Adres świętokrzyskie, Morawica, Bilcza
Opis nieruchomości
Na sprzedaż dom 4 -pokojowy w zabudowie szeregowej (segment środkowy), w stanie deweloperskim, o powierzchni użytkowej 137,32 m2, zlokalizowany w zlokalizowany na nowo powstającym osiedlu domów jednorodzinnych w Bilczy, gm. Morawica.
W skład nieruchomości wchodzą:
Parter:
- komunikacja o pow. 6,04 m2,
- klatka schodowa o pow. 3,26 m2,
- salon z aneksem kuchenny o pow. 32,42 m2,
- WC o pow. 2,56 m2,
- Garaż o pow. 28,62 m2.
Piętro:
- klatka schodowa o pow. 3,26 m2,
- komunikacja o pow. 9,78 m2,
- sypialnia o pow. 11,82 m2,
- sypialnia o pow. 13,51 m2,
- sypialnia o pow. 18,97 m2,
- łazienka o pow. 7,08 m2.
Dom znajduje się na działce o powierzchni 300 m2, w kształcie prostokąta, o przybliżonych wymiarach: 10 x 30 [m]. Szerokość frontu ok. 10 m. W otoczeniu nowo powstająca zabudowa jednorodzinna.
Dom stanie deweloperskim, wykończony przy użyciu najwyższej jakości materiałów i w nowoczesny sposób:
- materiał konstrukcyjny beton komórkowy H+H Solbet + ociepleniem styropianem o grubości 25 cm;
- przesuwne energooszczędne okna 3 - szybowe Oknoplast,
- drzwi wejściowe zewnętrzne antywłamaniowe,
- instalacja elektryczna, TV, internetowa, alarmowa, monitoring,
- wykonano odwodnienie z każdego budynku do kanału deszczowego,
- zainstalowano rolety zewnętrzne automatyczne,
- ogrzewanie podłogowe w całym budynku,
- zainstalowano także instalację do ogrzewania rynien.
Teren przy budynku w pełni zagospodarowany, kostka na tarasie, wokół domu opaska, przed bramą kostka brukowa, przed wjazdem na osiedle zostanie zamontowana brama automatyczna. Dach płaski z pełną izolacją termiczną.
Ogrzewanie gazowe (piec dwufunkcyjny). Możliwość zamontowania pompy ciepła na życzenie klienta (za dodatkową opłatą).
Media:
- w budynku woda z sieci gminnej, kanalizacja gminna, energia elektryczna, gaz.
Dostępne są także segmenty skrajne o pow. użytkowej 120,63 m2 w cenie 850 000 PLN.
Bardzo dobra lokalizacja tuż obok granicy z miastem Kielce, szybki i łatwy dojazd do centrum miasta. Cicha, spokojna okolica. Dojazd drogą utwardzoną, w pobliżu nowo powstająca zabudowa jednorodzinna.
Dane kontaktowe do agenta: Jacek Kotlarz, tel: 888 889 441, e-mail: jacek.kotlarz@properco.pl
For more information in English please call: 888 889 441, e-mail: jacek.kotlarz@properco.pl
-------
Buyer exempt from 2% PCC tax!
For sale: 4-room terraced house (middle unit) in developer standard, with a usable area of 137.32 m², located in a newly developing single-family housing estate in Bilcza, Morawica commune.
The property consists of:
Ground floor:
-
hall – 6.04 m²,
-
staircase – 3.26 m²,
-
living room with kitchenette – 32.42 m²,
-
WC – 2.56 m²,
-
garage – 28.62 m².
First floor:
-
staircase – 3.26 m²,
-
hall – 9.78 m²,
-
bedroom – 11.82 m²,
-
bedroom – 13.51 m²,
-
bedroom – 18.97 m²,
-
bathroom – 7.08 m².
The house is situated on a 300 m² plot, rectangular in shape, with approximate dimensions: 10 x 30 m, frontage width approx. 10 m. Surrounded by newly built single-family houses.
Developer standard finish, using high-quality materials and modern solutions:
-
construction material: H+H Solbet aerated concrete + 25 cm polystyrene insulation,
-
sliding triple-glazed energy-efficient Oknoplast windows,
-
anti-burglary entrance door,
-
electrical, TV, internet, alarm, and monitoring installations,
-
drainage system from each building to the stormwater channel,
-
automatic external roller shutters,
-
underfloor heating throughout the building,
-
gutter heating installation.
The area around the building is fully developed: paved terrace, perimeter paving, driveway in paving stones, and automatic entrance gate to be installed at the estate entrance. Flat roof with full thermal insulation.
Gas heating (dual-function boiler). Option to install a heat pump upon request (at extra cost).
Utilities:
-
water from the municipal network,
-
municipal sewage system,
-
electricity,
-
gas.
End-unit houses with a usable area of 120.63 m² are also available, priced at 850,000 PLN.
Excellent location right next to the Kielce city border, with quick and easy access to the city center. Quiet, peaceful neighborhood. Access via a paved road, in the vicinity of newly built single-family houses.
Contact details for the agent: Jacek Kotlarz, tel: 888 889 441, e-mail: jacek.kotlarz@properco.pl