Dom na sprzedaż















Szczegóły ogłoszenia
- Symbol oferty NNR-DS-58
- Typ oferty dom na sprzedaż
- Cena 780 000 zł
- Charakterystyka mieszkania 240 m2, 8 pokoi, do zamieszkania
- Okna PCV
- Otoczenie centrum miasta
- Rodzaj domu wielorodzinny
- Stan prawny Własność
- Umeblowanie częściowo umeblowane
Lokalizacja
- Adres dolnośląskie, kłodzki, Nowa Ruda
Opis nieruchomości
Cena 780 000 zł brutto w tym 8 % VAT.
Na sprzedaż budynek wielorodzinny z zaprojektowanym podziałem na 3 mieszkania, w tym momencie zaadaptowany na hostel, znajdujący się na gruncie o powierzchni 0,0222 ha (własność), przed wejściem miejsce postojowe.
Budynek przeszedł generalny remont w 2021 r., m. in. wymieniono instalacje, ocieplono poddasze, wykonano izolacje fundamentów.
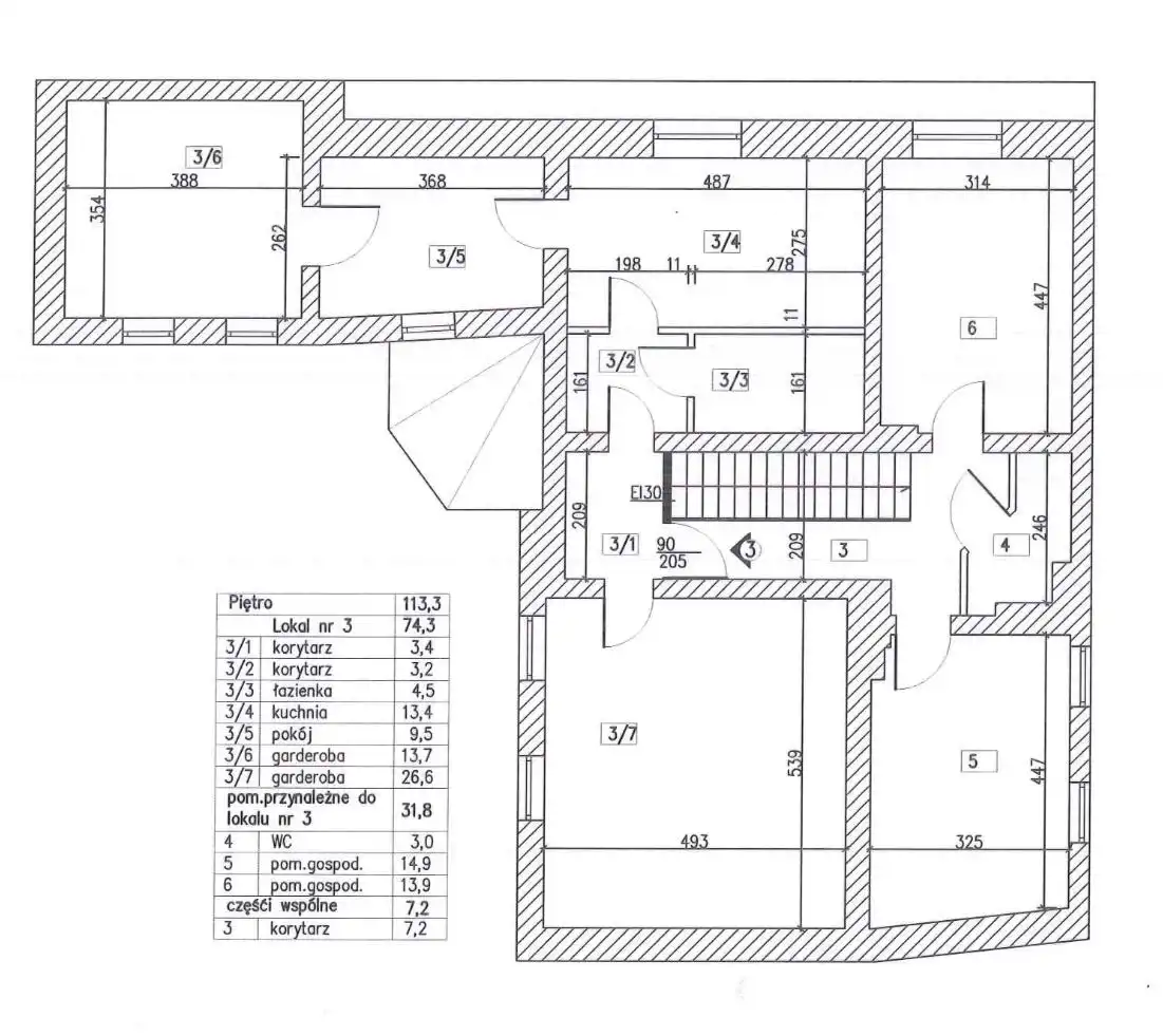
ROZKŁAD (do zdjęć załączone rzuty):
- Piwnica (ok 100 m2):
kotłownia, pralnia, suszarnia, pomieszczenie gospodarcze
- Parter:
Mieszkanie nr 1 (55,2 m2)
Mieszkanie nr 2 (44,9 m2)
- I Piętro:
Mieszkanie nr 3 (74, 3 m2) + pomieszczenia przynależne
- Poddasze nieużytkowe
Kuchnie oraz pokoje umeblowane i wyposażone (m.in. lodówka, pościel, przedłużacze, komplet naczyń).
Ogrzewanie centralne nowymi piecami, zamiennie można używać piec gazowy i elektryczny.
2 zasobniki o pojemności 200 l i 300 l.
Na dachu instalacja fotowoltaiczna (6,3 kW).
Doprowadzony światłowód.
Dodatkowo zainstalowano alarm, światła na korytarzu na czujnik ruchu, gaśnice, rolety okienne.
Lokalizacja w centrum Nowej Rudy (rynek), za nieruchomością znajduje się duży parking miejski.
Zapraszamy do negocjacji :)
Opis oferty sporządzany jest na podstawie oględzin nieruchomości oraz informacji uzyskanych od właściciela i ma jedynie charakter informacyjny, może podlegać aktualizacji i nie stanowi oferty określonej w art. 66 i następnych K.C. Kontaktując się z biurem Klient wyraża zgodę na przetwarzanie danych osobowych zgodnie z ustawą z dnia 10 maja 2018 roku o ochronie danych osobowych.