Mieszkanie na sprzedaż


Szczegóły ogłoszenia
- Symbol oferty NET-MS-1890
- Typ oferty mieszkanie na sprzedaż
- Cena 200 000 zł
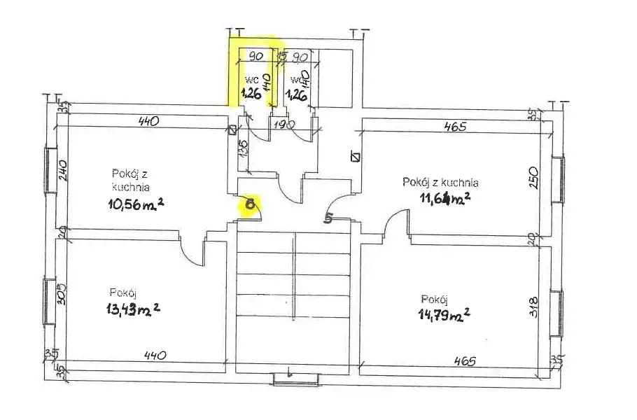
- Charakterystyka mieszkania 25.25 m2, 2 pokoje
- Budynek kamienica
- Rozkład mieszkania 2p piętro
- Okna drewniane
- Stan lokalu do generalnego remontu
- Umeblowanie nieumeblowane
Lokalizacja
- Adres warmińsko-mazurskie, Olsztyn
Opis nieruchomości
PREZYDENT OLSZTYNA
o g ł a s z a
przetarg ustny nieograniczony
na sprzedaż lokalu mieszkalnego nr 6, znajdującego się na II piętrze budynku nr 73, położonym przy ul. Partyzantów w Olsztynie wraz ze sprzedażą udziału 3/100 w częściach wspólnych budynku oraz sprzedażą udziału 3/100 w gruncie pod budynkiem (obręb 72, działka nr 108, o pow. 313 m2, zapisana w księdze wieczystej KW Nr OL1O/00020532/7) oraz oddaniem w użytkowanie wieczyste udziału 3/100 w gruncie do racjonalnej obsługi budynku (obręb 72, działka nr 109/1 o pow. 88 m2, zapisana w księdze wieczystej KW Nr OL1O/00083659/2).
Powierzchnia użytkowa lokalu wynosi – 25,25 m2
Cena wywoławcza nieruchomości - 200 000,00 zł
w tym: cena lokalu - 190 000,00 zł
cena 3/100 części gruntu (dz. nr 108) - 7 800,00 zł
cena 3/100 części gruntu (dz. nr 109/1) - 2 200,00 zł
Budynek przy ul. Partyzantów 73 wraz z działką nr 108 obr. 72 (pod budynkiem) wpisany jest do rejestru zabytków woj. warmińsko-mazurskiego i podlega ochronie konserwatorskiej.
Wszelkie prace w budynku należy wykonywać zgodnie z zapisem ustawy z dnia 23.07.2003r. o ochronie zabytków i opiece nad zabytkami (t.j. Dz.U. z 2024 r. poz. 1292) po uzyskaniu zezwolenia Wojewódzkiego Konserwatora Zabytków.
Na podstawie art. 68 ust. 3 ustawy z dnia 21 sierpnia 1997r. o gospodarce nieruchomościami /Dz.U. z 2024 r. poz. 1145 ze zm./ cenę lokalu oraz cenę udziału w gruncie (dz. nr 108 obr. 72) obniża się na wniosek nabywcy o 50%.
W związku z powyższym oraz zgodnie z art. 3 ust. 4 pkt 1 ustawy z 29.08.2014r. o charakterystyce energetycznej budynków (Dz. U. z 2024 r. poz. 101) obowiązek zapewnienia świadectwa charakterystyki energetycznej nabywcom, nie dotyczy budynku podlegającego ochronie na podstawie przepisów powyższej ustawy o ochronie zabytków i opiece nad zabytkami.
Nieruchomości objęte KW Nr OL1O/00020532/7 i KW Nr OL1O/00083659/2 są wolne od obciążeń oraz nie są przedmiotem zobowiązań.
Sprzedaż lokalu, znajdującego się w przedmiotowym budynku jest zwolniona z podatku VAT zgodnie z art. 43 ust. 1 pkt 10 oraz art. 29a ust. 8 ustawy z dnia 11 marca 2004 r. o podatku od towarów i usług /Dz.U. 2025 r. poz. 775 ze zm./.
Pierwsza opłata z tytułu oddania w użytkowanie wieczyste udziału w gruncie /dz. 109/1/ wynosić będzie 25% ceny ustalonej w przetargu, natomiast opłata roczna wynosić będzie 1% ceny gruntu ustalonej w przetargu.
Pierwsza opłata zostanie opodatkowana podatkiem VAT w stawce obowiązującej na dzień sprzedaży. Opłaty roczne zostaną opodatkowane podatkiem VAT w stawce obowiązującej na dzień oddania gruntu w użytkowanie wieczyste.
Cena nieruchomości ustalona w przetargu (tj. cena lokalu, cena udziału w gruncie pod budynkiem oraz pierwsza opłata z tytułu oddania gruntu do obsługi budynku w użytkowanie wieczyste wraz z podatkiem VAT) podlega zapłacie nie później niż do dnia zawarcia umowy przenoszącej własność.
Przetarg odbędzie się 20 marca 2026 r. o godz. 11:30 w siedzibie Urzędu Miasta Olsztyna, pl. Jana Pawła II 1, w sali 219, II piętro.
Wadium w wysokości 20 000,00 zł należy wpłacić na rachunek Urzędu Miasta Olsztyna prowadzony przez Bank Handlowy S.A. nr rachunku: 77 1030 1508 0000 0008 2300 1003 najpóźniej do dnia 16 marca 2026 r.
Wpłacone wadium winno znajdować się na rachunku Urzędu Miasta Olsztyna najpóźniej w dniu 16 marca 2026 r.
Wadium wpłacone przez uczestnika przetargu, który przetarg wygrał, zostanie zaliczone na poczet ceny nabycia nieruchomości.
Pozostałym uczestnikom przetargu, wadium zostanie zwrócone nie później niż przed upływem 3 dni, od dnia rozstrzygnięcia przetargu, na podane konto bankowe.
Uczestnicy przetargu zobowiązani są posiadać dokumenty tożsamości, a osoby inne niż osoby fizyczne dodatkowo muszą przedłożyć do wglądu aktualny wypis z odpowiedniego rejestru. Jeżeli uczestnik jest reprezentowany przez pełnomocnika, konieczne jest przedłożenie oryginału pełnomocnictwa upoważniającego do działania na każdym etapie postępowania przetargowego z potwierdzeniem wniesienia opłaty skarbowej z tytułu pełnomocnictwa, jeżeli wniesienie takiej opłaty wynika z przepisów ustawy z dnia 16.11.2006 r. o opłacie skarbowej (t.j. Dz. U. z 2023 r. poz. 2111 ze zm.).
W przypadku zamiaru nabycia nieruchomości w ramach wspólności ustawowej małżeńskiej, wadium winno być wpłacone w imieniu obojga współmałżonków. Do przetargu winni przystąpić oboje małżonkowie, chyba że zostanie przedłożona pisemna zgoda wyrażona przez nieobecnego małżonka do uczestnictwa w przetargu w jego imieniu oraz składania oświadczeń zmierzających do odpłatnego nabycia nieruchomości.
Uchylenie się nabywcy wyłonionego w drodze przetargu od podpisania aktu notarialnego w terminie wyznaczonym przez Prezydenta Olsztyna spowoduje przepadek wpłaconego wadium.
W przypadku, gdy nabywcą nieruchomości ustalony zostanie cudzoziemiec, w rozumieniu ustawy z dnia 24 marca 1920 r. o nabywaniu nieruchomości przez cudzoziemców, do zawarcia umowy notarialnej nabywca winien przedłożyć zezwolenie, jeżeli uzyskanie zezwolenia wynika z przepisów cytowanej wyżej ustawy.
Koszty sporządzenia umowy notarialnej oraz opłaty sądowe związane z dokonaniem wpisów w księdze wieczystej ponosi nabywca.
Prezydent Olsztyna może odwołać przetarg z uzasadnionej przyczyny.
Szczegółowych informacji udziela Wydział Polityki Lokalowej Urzędu Miasta Olsztyna, budynek przy ul. Wyzwolenia 30, pokój 301, tel. (89) 50-60-303.
Osoby zainteresowane nabyciem przedmiotowego lokalu mogą go oglądać w dniu 26.02.2026 r. w godz. 8:00 – 9:00 lub 09.03.2026 r. w godz. 14:00-15:00 po uprzednim uzgodnieniu telefonicznym z kilkudniowym wyprzedzeniem z administratorem: Zakład Lokali i Budynków Komunalnych, tel. (89) 526-28-32.
Ogłoszenia o przetargach organizowanych przez Prezydenta Olsztyna dostępne są w Internecie pod adresem www.olsztyn.eu, infopublikator.pl oraz w Biuletynie Informacji Publicznej, prowadzonym przez Urząd Miasta Olsztyna pod adresem www.bip.olsztyn.eu oraz na Elektronicznej Tablicy Ogłoszeń Urzędu Miasta Olsztyna.