Mieszkanie na sprzedaż




Szczegóły ogłoszenia
- Symbol oferty NET-MS-1910
- Typ oferty mieszkanie na sprzedaż
- Cena 380 000 zł
- Charakterystyka mieszkania 54.7 m2, 2 pokoje
- Budynek kamienica
- Rozkład mieszkania 1p piętro
- Media Woda: jest
- Instalacje ELEKTRYCZNA
- Okna drewniane
- Otoczenie centrum miasta
- Stan lokalu do generalnego remontu
- Technologia budowlana cegła
- Umeblowanie nieumeblowane
Lokalizacja
- Adres warmińsko-mazurskie, Olsztyn
Opis nieruchomości
Prezydent Olsztyna ogłasza przetarg ustny nieograniczony na sprzedaż lokalu mieszkalnego stanowiącego własność Gminy Olsztyn.
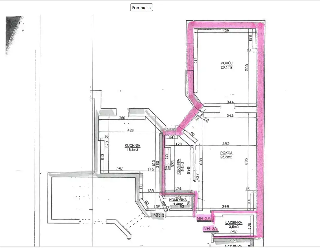
1. Przedmiotem sprzedaży jest lokal nr 2a położony na I piętrze 4-kondygnacyjnego budynku nr 10 zlokalizowanego przy ul. Curie-Skłodowskiej, obr. 63 m. Olsztyn, z jednoczesną sprzedażą 93/1000 części wspólnych budynku oraz gruntu pod budynkiem objętym księgą wieczystą nr OL1O/00046168/2 (dz. nr 48/4 o powierzchni 235 m²) oraz oddaniem w użytkowanie wieczyste udziału wynoszącego 60/1000 cz. w gruncie, przeznaczonym do racjonalnej obsługi budynku, składającym się z działek o nr ewidencyjnym 48/3 i 49/3 o łącznej powierzchni 336 m². Nieruchomość ta objęta jest księgą wieczystą nr OL1O/00053295/3.
Powierzchnia użytkowa lokalu wynosi 54,7 m². W skład lokalu wchodzą: 2 pokoje (jeden przejściowy), kuchnia, łazienka. Łazienka z oddzielnym wejściem z korytarza wspólnego dla lokali 2a i 2. Korytarz stanowi części wspólne budynku. Lokal wymaga prac remontowo-naprawczych.
Budynek przy ul. Curie-Skłodowskiej 10 wraz z działkami nr: 48/4, 48/3 i 49/3, obręb 63 m. Olsztyn, został wpisany do rejestru zabytków woj. warmińsko-mazurskiego i podlega ochronie konserwatorskiej. Wszelkie prace w budynku oraz prace ziemne i inwestycje należy wykonywać, stosownie do ustawy z dnia 23.07.2003r. o ochronie zabytków i opiece nad zabytkami (t.j. Dz.U. z 2024 r. poz. 1292), po uzyskaniu zezwolenia Wojewódzkiego Konserwatora Zabytków.
W myśl art. 3 ust 4 pkt 1 ustawy z dn. 29.08.2014 o charakterystyce energetycznej budynków (t. j. Dz. U. z 2024 poz. 101) przy sprzedaży budynku wpisanego do rejestru zabytków nie występuje obowiązek sporządzenia i przekazania nabywcy świadectwa charakterystyki energetycznej.
Nieruchomość wolna jest od obciążeń oraz nie jest przedmiotem zobowiązań.
2. Cenę wywoławczą nieruchomości ustalono na kwotę 380 000 zł, w tym:
· cena lokalu: 350 000 zł,
· cena gruntu pod budynkiem, działka nr 48/4: 19 000 zł,
· cena gruntu do obsługi budynku, działki nr 48/3 i 49/3: 11 000 zł,
Sprzedaż lokalu, znajdującego się w przedmiotowym budynku jest zwolniona z podatku VAT zgodnie z art. 43 ust. 1 pkt 10 oraz art. 29a ust. 8 ustawy z dnia 11 marca 2004 r. o podatku od towarów i usług (t. j. Dz.U. 2025 r. poz. 775 ze zm.).
Na podstawie art. 68 ust. 3 ustawy z dnia 21 sierpnia 1997r. o gospodarce nieruchomościami (t. j. Dz.U. z 2024 r. poz. 1145 ze zm.) wylicytowaną cenę nieruchomości, na wniosek nabywcy, obniża się o 50%.
Grunt do obsługi budynku.
Z tytułu oddania w użytkowanie wieczyste udziału w gruncie do obsługi budynku (działki nr 48/3 i 49/3) wnosi się pierwszą opłatę, która stanowić będzie 25% ceny ustalonej w przetargu. Ponadto przez cały okres użytkowania, w terminie do dnia 31 marca, z góry za dany rok, wnosi się opłaty roczne. Opłaty roczne stanowić będą 1% ceny gruntu ustalonej w przetargu. Pierwsza opłata i opłaty roczne opodatkowane są podatkiem VAT w stawce obowiązującej na dzień sprzedaży nieruchomości.
Wysokość opłaty rocznej, zgodnie z przepisami ustawy o gospodarce nieruchomościami, jest aktualizowana, jeżeli wartość nieruchomości oddanej w użytkowanie wieczyste ulegnie zmianie
Cena nieruchomości ustalona w przetargu wraz z pierwszą opłatą i podatkiem VAT podlega zapłacie nie później niż na dwa dni przed zawarciem umowy przenoszącej własność.
Koszty sporządzenia umowy notarialnej oraz opłaty sądowe związane z dokonaniem wpisów w księdze wieczystej ponosi nabywca.
3. Przetarg odbędzie się 17 kwietnia 2026 r. o godz. 10:00 w siedzibie Urzędu Miasta Olsztyna, pl. Jana Pawła II 1, w sali 219, II piętro.
Wadium w wysokości 38 000,00 zł należy wpłacić na rachunek Urzędu Miasta Olsztyna prowadzony przez Bank Handlowy S.A. nr rachunku: 77 1030 1508 0000 0008 2300 1003 najpóźniej do dnia 13.04.2026 r.
Wpłacone wadium winno znajdować się na rachunku Urzędu Miasta Olsztyna najpóźniej w dniu 13 kwietnia 2026 r.
Wadium wpłacone przez uczestnika przetargu, który przetarg wygrał, zostanie zaliczone na poczet ceny nabycia nieruchomości.
Pozostałym uczestnikom przetargu, wadium zostanie zwrócone nie później niż przed upływem 3 dni, od dnia rozstrzygnięcia przetargu, na podane konto bankowe.
4. Informacje dodatkowe.
Uczestnicy przetargu zobowiązani są posiadać dokumenty tożsamości. Podmioty inne niż osoby fizyczne dodatkowo muszą przedłożyć do wglądu aktualny wypis z odpowiedniego rejestru.
Jeżeli uczestnik jest reprezentowany przez pełnomocnika, konieczne jest przedłożenie oryginału pełnomocnictwa upoważniającego do działania na każdym etapie postępowania przetargowego z potwierdzeniem wniesienia opłaty skarbowej z tytułu pełnomocnictwa, jeżeli wniesienie takiej opłaty wynika z przepisów ustawy z dnia 16.11.2006 r. o opłacie skarbowej (t. j. Dz. U. z 2025 r. poz. 1154 ze zm.).
W przypadku zamiaru nabycia nieruchomości w ramach wspólności ustawowej małżeńskiej, wadium winno być wpłacone w imieniu obojga współmałżonków. Do przetargu winni przystąpić oboje małżonkowie, chyba że zostanie przedłożona pisemna zgoda wyrażona przez nieobecnego małżonka do uczestnictwa w przetargu w jego imieniu oraz składania oświadczeń zmierzających do odpłatnego nabycia nieruchomości.
Uchylenie się nabywcy wyłonionego w drodze przetargu od podpisania aktu notarialnego w terminie wyznaczonym przez Prezydenta Olsztyna spowoduje przepadek wpłaconego wadium.
W przypadku, gdy nabywcą nieruchomości ustalony zostanie cudzoziemiec, w rozumieniu ustawy z dnia 24.03.1920 r. o nabywaniu nieruchomości przez cudzoziemców (t. j. Dz. U. z 2017 r. poz. 2278), do zawarcia umowy notarialnej nabywca winien przedłożyć zezwolenie, jeżeli uzyskanie zezwolenia wynika z przepisów cytowanej wyżej ustawy.
Prezydent Olsztyna zastrzega sobie prawo do odwołania przetargu.
Szczegółowych informacji udziela Wydział Polityki Lokalowej Urzędu Miasta Olsztyna, budynek przy ul. Wyzwolenia 30, pokój 303, tel. (89) 50-60-304.
Osoby zainteresowane nabyciem przedmiotowego lokalu mogą go oglądać w terminie ustalonym z administratorem/pracownikiem Zakładu Lokali i Budynków Komunalnych, tel. (89) 526 28 32
Ogłoszenia o przetargach organizowanych przez Prezydenta Olsztyna dostępne są na stronach internetowych www.olsztyn.eu, www.infopublikator.pl oraz w Biuletynie Informacji Publicznej, prowadzonym przez Urząd Miasta Olsztyna pod adresem bip.olsztyn.eu oraz na Elektronicznej Tablicy Ogłoszeń Urzędu Miasta Olsztyna.