Dom na sprzedaż






































Szczegóły ogłoszenia
- Symbol oferty WITT-DS-1513
- Typ oferty dom na sprzedaż
- Cena 1 399 000 zł
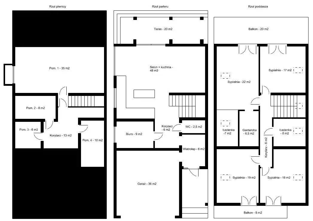
- Charakterystyka mieszkania 282 m2, 6 pokoi, BARDZO WYSOKI STANDARD
- Budynek rok budowy: 2023
- Media Ogrzewanie: inne; Woda: tak; Kanalizacja: miejska; Prąd: jest; Gaz: w granicy
- Bezpieczeństwo ogrodzenie działki: ogrodzona
- Balkon jest
- Dojazd kostka brukowa
- Działka Zagospodarowana, płaska, prostokąt
- Garaż garaż na dwa samochody
- Ilość sypialni 4
- Instalacje nowe
- Otoczenie osiedle
- Podpiwniczenie Tak
- Pokrycie dachu dachówka cementowa
- Rodzaj domu jednorodzinny
- Stan prawny Własność
- Taras taras duży
- Technologia budowlana inna
- Umeblowanie umeblowane
Lokalizacja
- Adres warmińsko-mazurskie, ostródzki, Ostróda
Opis nieruchomości
Wyobraź sobie miejsce, które łączy luksus nowoczesnych rozwiązań z rodzinną przytulnością. Ten nowo wybudowany dom jednorodzinny to idealna propozycja zarówno dla wymagającej rodziny ceniącej wygodę, jak i dla przedsiębiorcy lub osoby pracującej zdalnie, która pragnie prowadzić działalność w zaciszu własnego domu. Położony w spokojnej okolicy (Ostróda, osiedle domów jednorodzinnych) na działce o powierzchni 600 m², zapewnia ciszę, prywatność oraz szybki dojazd do centrum miasta i terenów rekreacyjnych. Już od pierwszych chwil poczujesz efekt WOW!
Najważniejsze atuty nieruchomości:
-
Rekuperacja w całym domu (również w piwnicy): Zawsze świeże, przefiltrowane powietrze bez potrzeby otwierania okien. System wentylacji mechanicznej z odzyskiem ciepła dba o Twój komfort oddechu, eliminuje nadmiar wilgoci i obniża koszty ogrzewania. Dzięki temu w domu panuje zdrowy mikroklimat, a Ty oszczędzasz na rachunkach.
-
Ogrzewanie podłogowe z dożywotnią gwarancją: Nowoczesne elektryczne kable grzewcze zapewniają przyjemne ciepło w każdym pomieszczeniu. Bez pieca i bez kaloryferów – ciesz się równomiernym rozprowadzeniem ciepła i bezawaryjnością na lata (System ogrzewania objęty jest dożywotnią gwarancją producenta!). To bezobsługowe ogrzewanie, które daje spokój i pewność nawet w najchłodniejsze dni.
-
Instalacja fotowoltaiczna 10 kW na starych zasadach: Wysokiej mocy panele słoneczne z umową prosumencką na starych, korzystnych warunkach oznaczają minimalne rachunki za prąd. Produkuj własną energię i niemal nie płać za jej zużycie – ogrzewanie, oświetlenie, a nawet ładowanie samochodu elektrycznego mogą być prawie darmowe. Twój dom sam zadba o energię, a Ty zyskasz niezależność i oszczędności.
-
Światłowód i nowoczesna elektryka: Dom jest w pełni okablowany pod inteligentne rozwiązania – rozprowadzone przewody do kamer, rolet elektrycznych, wideodomofonu oraz łączność światłowodowa gwarantują, że jesteś gotowy na przyszłość. Błyskawiczny internet umożliwi Ci wygodną pracę zdalną, prowadzenie biznesu online czy rozrywkę w najwyższej jakości bez żadnych ograniczeń.
-
Garaż dwustanowiskowy: Obszerny garaż pomieści dwa samochody, co rozwiązuje problem parkowania i daje dodatkową przestrzeń na warsztat lub przechowywanie. Automatyczna brama i wygodne przejście do wnętrza domu sprawiają, że codzienne korzystanie z garażu jest czystą przyjemnością – koniec z odśnieżaniem aut zimą czy szukaniem miejsca na podjeździe.
-
Piwnica idealna na biuro lub działalność: Pełnowymiarowa piwnica (wysokość 2,4 m) została zaprojektowana tak, byś mógł komfortowo urządzić tam biuro, gabinet lub przestrzeń dla swojej firmy. Masz tu ciszę i prywatność potrzebną do pracy, a dzięki oknu (powiększonemu względem projektu) i wentylacji pomieszczenie jest jasne i przyjemne. To doskonałe miejsce na prowadzenie działalności gospodarczej bez konieczności wynajmowania lokalu na mieście – wygodnie i oszczędnie, tuż pod własnym dachem. Oczywiście piwnica równie dobrze sprawdzi się jako strefa rekreacyjna, siłownia, pokój hobby lub przestronny magazyn.
-
Wnętrza premium z meblami na wymiar: Dom został wykończony z dbałością o najmniejsze detale. Meble robione na wymiar podkreślają nowoczesny styl wnętrz i maksymalnie wykorzystują przestrzeń – od stylowej kuchni z dużą wyspą po funkcjonalne szafy w zabudowie.Wysokie sufity (2,9 m na parterze) oraz duże przeszklenia, w tym 7 okien dachowych, zalewają wnętrza naturalnym światłem i dodają lekkości. Na piętrze zwiększono wysokość ściany kolankowej do 1,33 m, a wysokość pomieszczeń wynosi 2,64 m, co znacząco poprawia komfort użytkowania. Dodatkowym atutem jest przestronna sypialnia typu master z własną garderobą i prywatną łazienką – osobista strefa komfortu, która zapewnia intymność i wygodę na co dzień. Całość utrzymana jest w eleganckiej, neutralnej estetyce – dom jest gotowy do zamieszkania bez dodatkowych inwestycji.
-
Możliwość dodania balkonów: Konstrukcja domu została przygotowana pod montaż balkonów z przodu i z tyłu budynku. Jeśli marzysz o porannej kawie na wschodnim balkonie lub wieczornym relaksie przy zachodzie słońca – ten dom daje Ci taką opcję! To dodatkowy atut, który pozwoli Ci w przyszłości jeszcze bardziej zwiększyć atrakcyjność i wartość nieruchomości, dostosowując ją do swoich potrzeb.
Komfort, oszczędność i bezpieczeństwo
Dzięki połączeniu wszystkich powyższych udogodnień otrzymujesz dom niemal bez kosztów utrzymania, przyjazny dla zdrowia i środowiska. Solidna konstrukcja z silikatowych bloków oraz zaawansowana izolacja (piana i styropian grafitowy) sprawiają, że budynek jest ciepły zimą i chłodny latem, co w połączeniu z rekuperacją i fotowoltaiką czyni go wyjątkowo energooszczędnym. Dodatkowo instalacje pod monitoring i alarm dają możliwość pełnego zabezpieczenia domu – tutaj Ty i Twoja rodzina poczujecie się naprawdę bezpiecznie.
Lokalizacja i otoczenie
Dom znajduje się w cichej, zielonej części Ostródy, w otoczeniu nowej zabudowy jednorodzinnej. Lokalizacja łączy zalety mieszkania w mieście z urokiem przedmieścia – z jednej strony masz szybki dojazd do centrum oraz dostęp do sklepów, szkół i niezbędnej infrastruktury, z drugiej możesz cieszyć się spokojem na własnym tarasie i ogrodzie z trawnikiem ~300 m². W pobliżu znajdziesz tereny rekreacyjne i jeziora, idealne na weekendowe spacery, jogging czy rodzinny piknik. Kameralne sąsiedztwo zapewnia prywatność i przyjazną atmosferę – to miejsce, gdzie od razu poczujesz się jak u siebie.
Zapraszamy!
Tak dopracowana oferta pojawia się na rynku niezwykle rzadko. Jeśli szukasz domu, który łączy nowoczesną technologię, komfortowe rozwiązania i możliwość pracy na własnych warunkach, nie możesz przejść obok niej obojętnie. Brak tu jakichkolwiek kompromisów – to dom, który spełni Twoje marzenia o idealnej przestrzeni do życia i pracy.
Nie zwlekaj! Umów się na prezentację już dziś i przekonaj się na własne oczy, jak wiele wyjątkowego ma do zaoferowania ten niezwykły dom. Twój nowy rozdział zaczyna się właśnie tutaj – pozwól sobie na luksus, na który zasługujesz!
tel. 535-235-895 Odbieram telefony codziennie, od poniedziałku do niedzieli w godzinach 9:00-21:00.