Dom na sprzedaż




Szczegóły ogłoszenia
- Symbol oferty KNG-DS-11345
- Typ oferty dom na sprzedaż
- Cena 1 180 000 zł
- Charakterystyka mieszkania 155.5 m2, 5 pokoi, do wykończenia
- Media Ogrzewanie: pompa ciepła; Woda: tak - miejska; Kanalizacja: szambo; Prąd: jest
- Bezpieczeństwo ogrodzenie działki: brak
- Balkon jest
- Działka Niezagospodarowana, płaska, kwadrat
- Garaż 1
- Ilość sypialni 4
- Okna nowe
- Podpiwniczenie Tak
- Pokrycie dachu dachówka
- Rodzaj domu bliźniak
- Taras jest
Lokalizacja
- Adres zachodniopomorskie, Police (gw), Pilchowo
Opis nieruchomości
Cała inwestycja obejmuje 4 budynki w zabudowie bliźniaczej dwulokalowej. Obecnie realizowany jest I etap, który obejmuje dwa budynki dwulokalowe.
Lokale o powierzchni 155,5m2 mogą pełnić funkcję komfortowego rodzinnego domu, ale również może być wykorzystane do prowadzenia działalności gospodarczej. Projekt przewiduje przestrzeń biurową na parterze i mieszkalną na piętrze, lub całość jako przestrzeń mieszkalną.
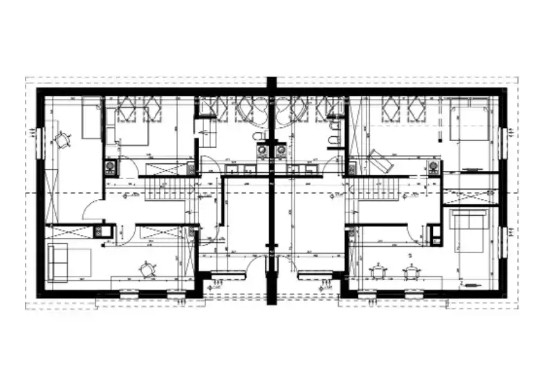
Załączone rzuty pokazują przykładowe układy pomieszczeń.
Aktualne zaawansowanie budowy pozwala na zmiany projektowe wewnątrz budynku według preferencji klienta.
Standard Premium!
- okna Salamander bluEvolution - średni współczynnik ciepła 0,75 W/m2*K, ciepły montaż okien
- antywłamaniowe drzwi wejściowe - klasa RC2, z szybą w doświetleniu P4 "Wiśniowski"
- brama garażowa "Wiśniowski"
- krycie dachówką "Brass"
- kominy spalinowe pod kominek "Hoch"
- pompa ciepła "Nibe"
- ogrzewanie podłogowe na parterze
Do każdego lokalu przynależy działka o powierzchni ok. 436 m2
Istnieje możliwość oddania nieruchomość w standardzie deweloperskim, po wcześniejszej uzgodnieniu ceny.