Dom na sprzedaż
1 350 000 zł
180 m2















1 / 15
Szczegóły ogłoszenia
- Symbol oferty LH1-DS-41506
- Typ oferty dom na sprzedaż
- Cena 1 350 000 zł
- Charakterystyka mieszkania 180 m2, 5 pokoi, do zamieszkania
- Budynek rok budowy: 24
- Media Ogrzewanie: pompa ciepła; Woda: jest; Kanalizacja: własna oczyszczalnia; Prąd: jest; Gaz: brak
- Balkon średni
- Dojazd droga utwardzona
- Działka Zagospodarowana, płaska, prostokąt
- Ilość sypialni 4
- Instalacje dobre
- Material konstrukcyjny cegła, pustak ceramiczny poroterm
- Okna PCV 3 szyby, ciepły montaż
- Otoczenie panorama
- Pokrycie dachu dachówka ceramiczna
- Pozwolenie na użytkowanie Tak
- Rodzaj domu wolnostojący
- Stan prawny Własność
- Taras taras duży
Lokalizacja
- Adres zachodniopomorskie, Police (gw), Przęsocin
Opis nieruchomości
Atrakcyjny i komfortowy dom Aridela III jest dedykowany 4-6-osobowej rodzinie.
Dom zlokalizowany w jednej z bocznych spokojnych uliczek, z utwardzoną drogą dojazdową. Otoczenie zielone, blisko do lasu, ścieżek rowerowych i spacerowych.
Front domu od strony południowej. Taras od strony południowo/zachodniej.
Projekt domu Aridela III z poddaszem użytkowym z pewnością zadowoli inwestorów poszukujących domu z dachem dwuspadowym.
Na parterze znajduje się część dzienna z obszernym salonem połączonym z jadalnią i kuchnią, gabinet, łazienka oraz część gospodarcza.
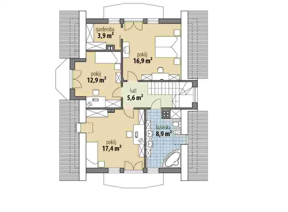
Na poddaszu zlokalizowano część nocną z trzema sypialniami(w tym jedna z własną garderobą) oraz ogólnodostępną łazienką.
Ogrzewanie z pompy ciepła + kominek , ogrzewanie podłogowe.
Schody pełne lane.
W rozliczeniu chętnie mieszkanie 3 pokojowe w Szczecinie lub Policach.
Zapraszam.
Dom zlokalizowany w jednej z bocznych spokojnych uliczek, z utwardzoną drogą dojazdową. Otoczenie zielone, blisko do lasu, ścieżek rowerowych i spacerowych.
Front domu od strony południowej. Taras od strony południowo/zachodniej.
Projekt domu Aridela III z poddaszem użytkowym z pewnością zadowoli inwestorów poszukujących domu z dachem dwuspadowym.
Na parterze znajduje się część dzienna z obszernym salonem połączonym z jadalnią i kuchnią, gabinet, łazienka oraz część gospodarcza.
Na poddaszu zlokalizowano część nocną z trzema sypialniami(w tym jedna z własną garderobą) oraz ogólnodostępną łazienką.
Ogrzewanie z pompy ciepła + kominek , ogrzewanie podłogowe.
Schody pełne lane.
W rozliczeniu chętnie mieszkanie 3 pokojowe w Szczecinie lub Policach.
Zapraszam.
Nota prawna
Opis oferty zawarty na stronie internetowej sporządzany jest na podstawie oględzin nieruchomości oraz informacji uzyskanych od właściciela, może podlegać aktualizacji i nie stanowi oferty określonej w art. 66 i następnych K.C.
Kalkulator kredytowy
Formularz kontaktowy