Dom na sprzedaż








































Szczegóły ogłoszenia
- Symbol oferty GRS-DS-2707
- Typ oferty dom na sprzedaż
- Cena 1 050 000 zł
- Charakterystyka mieszkania 56.6 m2, 3 pokoje, BARDZO WYSOKI STANDARD
- Budynek rok budowy: 2021
- Bezpieczeństwo ogrodzenie działki: ogrodzona
- Działka Zagospodarowana, płaska, prostokąt
- Okna PCV
- Otoczenie las
- Plac zabaw Tak
- Rodzaj domu letniskowy
- Taras taras
- Umeblowanie umeblowane
Lokalizacja
- Adres zachodniopomorskie, sławieński, Postomino
Opis nieruchomości
OFERUJEMY NA SPRZEDAŻ 3 NOWOCZESNE DOMKI CAŁOROCZNE POŁOŻONE NA ZAGOSPODAROWANEJ DZIAŁCE O POWIERZCHNI 752 M2 W NADMORSKIEJ MIEJSCOWOŚCI RUSINOWO, W GMINIE POSTOMINO!
DOMKI SPRZEDAWANE Z CAŁYM WYPOSAŻENIEM, ŚWIETNA INWESTYCJA!
Proponujemy do sprzedaży urokliwie położoną nieruchomość gruntową zabudowaną trzema nowoczesnymi domkami o powierzchni użytkowej 56,60 m2 każdy. Działka o powierzchni 752 m2, na której znajduje się plac zabaw dla dzieci, a także wydzielona część pod boisko do gry w koszykówkę. Na terenie posesji znajdują się również miejsca parkingowe oraz dwa pomieszczenia gospodarcze, w których przechowywane są meble ogrodowe oraz sprzęt i narzędzia ogrodnicze.
Zakup domków wyposażonych w nowoczesne technologie i udogodnienia niesie za sobą wiele korzyści, które sprawiają, że życie w takim miejscu jest komfortowe, bezpieczne i oszczędne. Oto zalety, które wyróżniają te domki:
- Ogrzewanie podłogowe – zapewnia równomierne rozprowadzenie ciepła w całym domu, co przekłada się na większy komfort termiczny. Jest również energooszczędne, co pomaga obniżyć koszty eksploatacji.
- Instalacja fotowoltaiczna – generowanie własnej energii słonecznej zmniejsza rachunki za prąd, a także pozytywnie wpływa na środowisko. To inwestycja w przyszłość, która zwiększa niezależność energetyczną.
- System alarmowy i czujniki dymu – gwarantują bezpieczeństwo Twojego domu, chroniąc go zarówno przed włamaniem, jak i zagrożeniami pożarowymi. Dają poczucie spokoju, szczególnie gdy przebywasz poza domem.
- Zewnętrzny monitoring – dodatkowe zabezpieczenie, które pozwala monitorować nieruchomość z każdego miejsca na świecie, co zwiększa kontrolę nad otoczeniem i zabezpiecza Twoją rodzinę oraz mienie.
- Szybki światłowód i Wi-Fi – niezawodne połączenie z Internetem to komfort dla osób pracujących zdalnie, miłośników filmów i seriali online oraz dla całej rodziny, która korzysta z urządzeń multimedialnych.
- Telewizja – dostęp do najnowszych kanałów i rozrywki, zapewniając chwilę relaksu po długim dniu.
Kupno takiej nieruchomości to inwestycja w wygodę, bezpieczeństwo i oszczędność, a także nowoczesny styl życia, który zapewni Ci spokój i radość z codzienności. Domki są w bardzo dobrym stanie technicznym. Teren w całości ogrodzony. Część zielona utrzymana ze starannością.
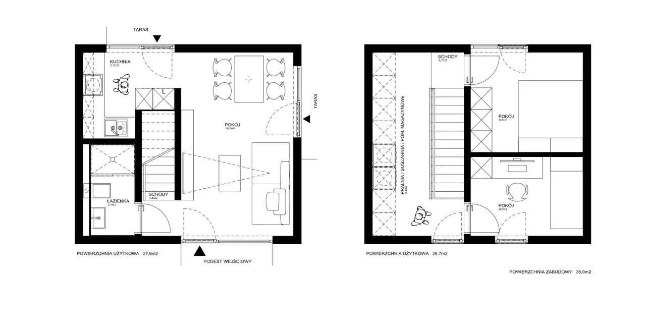
W skład nieruchomości wchodzi:
PARTER powierzchnia użytkowa 27,9 m2:
- pokój dzienny 16,2 m2
- kuchnia 6,3 m2
- łazienka 3,1 m2
- korytarz (schody) 3,4 m2
PIĘTRO powierzchnia użytkowa 28,7 m2:
- korytarz 9,4 m2
- pokój 6,9 m2
- sypialnia 8,7 m2
- schody 3,7 m2
W każdym domku na parterze znajduje się przestronny pokój dzienny z wyjściem na taras. Ustawny pokój wyposażony w wygodną sofę, szafkę, telewizor i duży stół z krzesłami, przy którym zmieści się cała rodzina. Kuchnia wyposażona w wysokiej jakości sprzęt AGD i RTV m.in. lodówkę, zmywarkę, piekarnik, płytę indukcyjną. Nowoczesna łazienka, w której znajdziemy prysznic, umywalkę, lustro oraz toaletę. Na piętrze znajdują się dwa pokoje, w których znajdziemy dwuosobowe łóżka, kanapy a w jednym z domków piętrowe łóżko dla dzieci. Idealna przestrzeń na wypoczynek w ciągu całego roku. Nieruchomość sprzedawana z całym wyposażeniem.
Atutem nieruchomości jest wspaniała lokalizacja. Charakter miejscowości czyni, iż jest to oferta skierowana do osób ceniących ciszę, spokój i bliskość natury. Niedaleka odległość od plaży Morza Bałtyckiego sprawia, iż nieruchomość idealnie nadaje się do celów zarobkowych. Dzielnica, której tradycją jest całoroczny wynajem nieruchomości. KUP, MIESZKAJ LUB ZARABIAJ!
Rusinowo to urokliwa i nadmorska miejscowość. W najwyższym punkcie Rusinowa stoi neogotycki Kościół. Rusinowo zostało założone w lekkim oddaleniu od brzegu, dzisiaj wioska "przybliża się" do Bałtyku (ulice: Letniskowa, Bursztynowa, Wczasowa czy Sosnowa). Miejscowość położona jest między nadmorskimi letniskami Wicie i Jarosławiec, mniej więcej 13 kilometrów od Darłowa i 23 km od Ustki.
Jeżeli nie lubisz tłoku na plaży - plaża w Rusinowie na pewno Ci się spodoba. Rusinowska plaża jest najszersza w okolicy, piaszczysta, nie ma na niej kamieni. Od nieruchomości do plaży jest ok. 900m. Rusinowo jest niezwykle atrakcyjne pod względem rowerowym bowiem w regionie znajduje się kilka szlaków rowerowych, które różnią się w zależności od stopnia trudności.
DODATKOWE INFORMACJE:
- stan prawny: pełna własność, brak obciążeń w KW,
- działka numer 73/18 – powierzchnia 752 m2,
- materiał konstrukcyjny - drewno,
- wszystkie okna PCV,
- ogrzewanie podłogowe na parterze domków,
- instalacja fotowoltaiczna,
- monitoring zewnętrzny,
- domki wyposażone w czujniki dymu,
- ciepła woda - bojler elektryczny,
- odległość do morza ok. 900 m,
- rok budowy 2021,
- każdy domek posiada taras,
- na terenie posesji znajdują się 2 pomieszczenia gospodarcze,
- przynależne miejsca parkingowe,
- światłowód.
CENA NIERUCHOMOŚCI: 1 050 000 PLN
Wynagrodzenie prowizyjne dla biura pokrywa strona Kupująca.
Więcej informacji uzyskasz kontaktując się z nami:
728 111 007 - Przemysław Pryzwan
799 799 397 - Dominika Szramiak
799 799 313 - Marta Rutkowska
728 202 030 - Marta Patyna
503 901 101 - Adrianna Iwanicka
669 647 067 - Karolina Jakuczun
www.gryfnieruchomosci.pl
Serdecznie zapraszam Państwa na prezentację nieruchomości, z przyjemnością odpowiem na wszelkie pytania oraz udzielę dodatkowych informacji.
Zamierzasz kupić nieruchomość i skorzystać z finansowania banku? Pomożemy dokonać Ci dobrego wyboru najlepszej oferty spośród wielu banków. Nasz doradca dostosuje ofertę kredytu hipotecznego do Twoich potrzeb i oczekiwań oraz będzie do Twojej dyspozycji na każdym etapie procesu kredytowego.
Niniejsza oferta nie stanowi oferty w rozumieniu Kodeksu Cywilnego, a dane w niej zawarte mają jedynie charakter informacyjny i mogą ulec zmianie.