Dom na sprzedaż






















Szczegóły ogłoszenia
- Symbol oferty GRS-DS-1977
- Typ oferty dom na sprzedaż
- Cena 320 000 zł
- Charakterystyka mieszkania 180 m2, 5 pokoi, do remontu
- Media Ogrzewanie: piec
- Bezpieczeństwo ogrodzenie działki: częściowo ogrodzona
- Działka częściowo zagospodarowana, lekko nachylona, prostokąt
- Okna PCV
- Pokrycie dachu eternit
- Rodzaj domu wolnostojący
- Technologia budowlana cegła
- Umeblowanie częściowo umeblowane
Lokalizacja
- Adres zachodniopomorskie, Postomino
Opis nieruchomości
NA SPRZEDAŻ DOM JEDNORODZINNY WOLNOSTOJĄCY DO REMONTU W MIEJSCOWOŚCI POSTOMINO O POWIERZCHNI CAŁKOWITEJ 180M2 USYTUOWANY NA DZIAŁCE O POWIERZCHNI 1510M2.
Proponujemy do sprzedaży dom zlokalizowany w miejscowości Postomino znajdującej się 17km od Sławna, 22km od Karłowa, a 23km od Słupska. Dom wolnostojący o powierzchni całkowitej 180m2 położony na działce o powierzchni 1510m2. Dojazd do nieruchomości drogą gminną asfaltową. Na terenie działki znajdują się budynek gospodarczy podpiwniczony - garaż dwustanowiskowy oraz dodatkowe zabudowy gospodarcze od frontu działki.
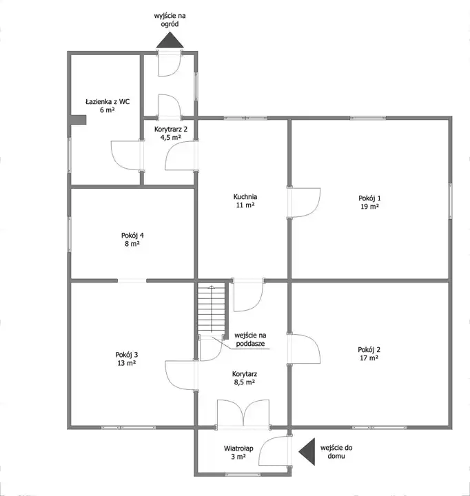
Parter domu to powierzchnia 90m2, na którą składa się:
-wiatrołap (3m2),
- dwa korytarze (8,5m2 i 4,5m2),
- cztery pokoje (19m2; 17m2; 13m2 oraz 8m2),
- kuchnia (11m2),
- łazienka z WC (6m2).
Piętro domu (poddasze) to powierzchnia 90m2 po podłodze, na która składa się otwarta przestrzeń z jednym pokojem.
Nadmorska Gmina Postomino położona jest na środkowym wybrzeżu, w północno – wschodniej części województwa zachodniopomorskiego, między Ustką, Sławnem a Darłowem. Ze względu na bogate walory naturalne, mikroklimat i dostęp do Morza Bałtyckiego jest ona jednym ze znaczących obszarów turystycznych Polskiego Wybrzeża. Dzięki czystemu środowisku zaliczana jest do „Zielonych Płuc Polski”. Teren nadmorski gminy tworzą wydmy porośnięte lasami sosnowymi i mieszanymi z licznymi stanowiskami sosny czarnej. Jesteś miłośnikiem turystyki aktywnej? Pływanie, chodzenie, bieganie, jazda na rowerze czy też konno sprawiają Ci frajdę?? Gmina Postomino jest doskonałym miejscem dla osób aktywnych i wrażliwych na piękno przyrody, dla miłośników turystyki rowerowej i pieszej, dla ludzi ceniących sobie urodę krajobrazów oraz nieskazitelną naturę. Urokliwe zakątki gminy Postomino można podziwiać w trakcie długich spacerów – szlakami pieszymi, podczas przejażdżek rowerowych – szlakami rowerowymi, jak również w trakcie spływów po rzece Wieprza – urozmaiconym oraz niezwykle malowniczym szlakiem kajakowym.
Dom usytuowany w spokojnym miejscu, pośród wyłącznie zabudowy jednorodzinnej, co gwarantuje doskonały wypoczynek na terenie działki. Doskonała, cicha lokalizacja pozwala cieszyć się życiem z dala od wielkomiejskiego zgiełku, oferując jednocześnie bogatą infrastrukturę handlowo – usługową. W promieniu 700m znajduje się szkoła podstawowa oraz stadion sportowy, dodatkowo w pobliskiej okolicy znajduje się: sklep spożywczy, Urząd Gminy, Centrum Kultury i Sportu, Kościół, Poczta Polska. Dojazd do Jeziora Marszewo oraz Jeziora Wicko zajmuje zaledwie 10min! Dom idealnie nadający się dla rodziny ceniących sobie komfortowe życie w małej miejscowości.
DODATKOWE INFORMACJE:
- stan prawy – pełna własność,
- podstawa centralnego ogrzewania oraz ciepłej wody – piec na paliwo stałe (węgiel/drewno),
- wszystkie okna PCV,
- pokrycie dachu – eternit
- budynek ocielony w 80% styropianem,
- aluminiowa instalacja,
- na działce znajduje się budynek gospodarczy – pełniący funkcję garażu dwustanowiskowego, w całości podpiwniczony,
- studnia głębinowa – konieczność zamontowania pompy.
CENA: 320 000 PLN cena do negocjacji
Strona Kupująca pokrywa wynagrodzenie prowizyjne dla biura.
Więcej informacji uzyskasz kontaktując się z nami:
799 799 397 – Dominika Szramiak
503 901 101 – Adrianna Iwanicka
669 647 067 – Karolina Jakuczun
728 111 007 – Przemek Pryzwan
728 202 030 – Marta Patyna
Więcej zdjęć znajdziecie Państwo na stronie:
www.gryfnieruchomosci.pl
Serdecznie zapraszam Państwa na prezentację nieruchomości, z przyjemnością odpowiem na wszelkie pytania oraz udzielę dodatkowych informacji.
Zamierzasz kupić nieruchomość i skorzystać z finansowania banku? Pomożemy dokonać Ci dobrego wyboru najlepszej oferty spośród wielu banków. Nasz doradca dostosuje ofertę kredytu hipotecznego do Twoich potrzeb i oczekiwań oraz będzie do Twojej dyspozycji na każdym etapie procesu kredytowego.
Niniejsza oferta nie stanowi oferty w rozumieniu Kodeksu Cywilnego, a dane w niej zawarte mają jedynie charakter informacyjny i mogą ulec zmianie.