Mieszkanie na sprzedaż



Szczegóły ogłoszenia
- Symbol oferty LLN-MS-486
- Typ oferty mieszkanie na sprzedaż
- Cena 1 292 410 zł
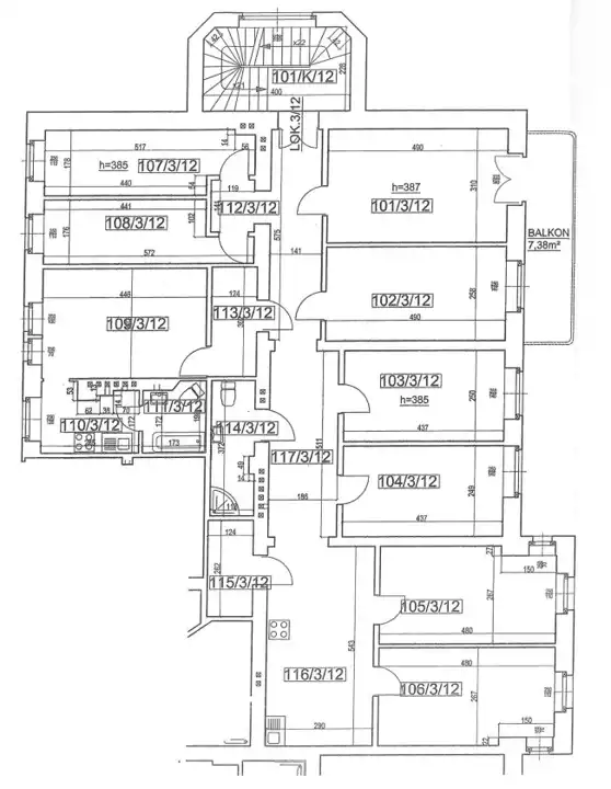
- Charakterystyka mieszkania 184.63 m2, 1 pokój
- Rozkład mieszkania 1p piętro
- Balkon jest
Lokalizacja
- Adres wielkopolskie, Poznań, Łazarz
Opis nieruchomości
Na sprzedaż przestronne mieszkanie zlokalizowane na pierwszym piętrze czteropiętrowej kamienicy przy ul. Siemiradzkiego 12 w Poznaniu, w bezpośrednim sąsiedztwie Parku Wilsona - budynek na skrzyżowaniu ulic Matejki/Siemiradzkiego.
Opis nieruchomości:
Mieszkanie o łącznej powierzchni 184,63 m² (wraz z pomieszczeniami przynależnymi) składa się z:
-
9 pokoi,
-
2 kuchni,
-
3 łazienek,
-
korytarza.
Do lokalu przynależy piwnica.
Nieruchomość posiada wyodrębnioną księgę wieczystą.
Układ mieszkania daje szerokie możliwości aranżacyjne – lokal sprawdzi się zarówno jako przestronne mieszkanie rodzinne, jak i inwestycja (np. pod wynajem, biuro, kancelarię lub działalność usługową).
Kamienica:
Kamienica, w której znajduje się lokal, jest obecnie w trakcie generalnego remontu (elewacja, dach, klatki schodowe), co w istotny sposób podniesie standard części wspólnych, estetykę budynku oraz prestiż całej nieruchomości. Prace modernizacyjne przełożą się również na wzrost wartości lokalu w dłuższej perspektywie.
Lokalizacja:
Nieruchomość położona jest w jednej z najbardziej atrakcyjnych części Poznania, na pograniczu Łazarza, w otoczeniu zabytkowej zabudowy i terenów zielonych.
Park Wilsona, Palmiarnia Poznańska oraz liczne tereny spacerowe znajdują się w bezpośrednim sąsiedztwie, co zapewnia komfort wypoczynku i kontakt z naturą w centrum miasta.
W okolicy dostępna jest pełna infrastruktura miejska:
-
sklepy, punkty usługowe, restauracje i kawiarnie,
-
szkoły, przedszkola oraz uczelnie,
-
bardzo dobra komunikacja miejska (tramwaje i autobusy), umożliwiająca szybki dojazd do centrum oraz innych dzielnic Poznania.
CENA: 1 292 410,00zł
Prowizja dla biura
KONTAKT W SPRAWIE OFERTY:
Malwina First
790 326 100
www.livinglife.com.pl
Niniejsze ogłoszenie jest wyłącznie informacja handlową i nie stanowi oferty w myśl art. 66, paragraf 1. Kodeksu Cywilnego.