Wykończone pod klucz mieszkanie w kamienicy – Łazarz, ul. Kolejowa, Poznań
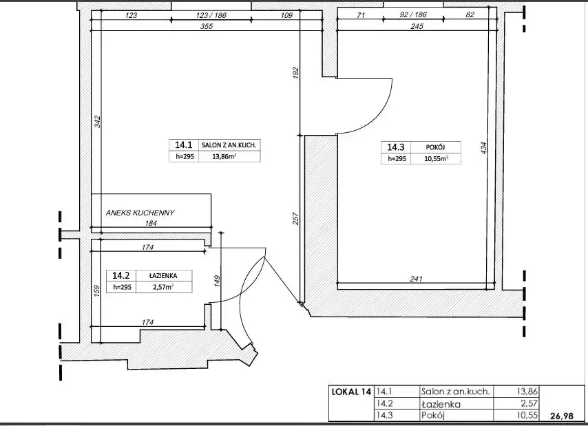
Na sprzedaż komfortowe, świeżo wykończone mieszkanie o powierzchni 26,98 m², położone na 3. piętrze kamienicy w samym sercu Łazarza. Lokal składa się z dwóch pokoi i jest w pełni gotowy do zamieszkania – idealny dla osób ceniących połączenie nowoczesnego standardu z kamienicznym klimatem.
Układ pomieszczeń:
– salon z gotowym aneksem kuchennym
– oddzielna sypialnia
– łazienka z prysznicem
– przedpokój
Standard i wyposażenie:
– mieszkanie wykończone pod klucz
– kuchnia wyposażona w sprzęt AGD
– łazienka z kabiną prysznicową
– wschodnia ekspozycja
– centralne ogrzewanie
– czynsz ok. 300 zł
Prace wykonane w budynku obejmują m.in.:
✔ wymianę instalacji elektrycznej i wodno-kanalizacyjnej
✔ przygotowanie instalacji pod klimatyzację
✔ odnowienie klatki schodowej i elewacji od strony dziedzińca
✔ przeglądy kominiarskie
✔ światłowód
✔ monitoring
W cenie otrzymujesz:
– nowe okna
– nowe instalacje elektryczne i wodno-kanalizacyjne
– przygotowaną instalację pod klimatyzację
– nowe drzwi wejściowe
Dlaczego warto:
⌂ mieszkanie całkowicie gotowe do wprowadzenia
⌂ idealne dla singla, pary, studenta lub jako inwestycja pod wynajem
⌂ klimatyczna kamienica w świetnie skomunikowanej części miasta
⌂ funkcjonalny układ i estetyczne wykończenie
⌂ dostępne również inne metraże – szczegóły na zapytanie
Lokalizacja:
📍 400 m do Rynku Łazarskiego
📍 ok. 500 m do przystanku komunikacji miejskiej
📍 1,1 km do Dworca Zachodniego PKP
📍 blisko Park Kasprowicza, Park Wilsona i Palmiarnia Poznańska
📍 sklepy, usługi, gabinety lekarskie w bezpośrednim sąsiedztwie
📍 bogata oferta gastronomiczna – kawiarnie, restauracje i bary
📍 w pobliżu uczelnie, szkoły i przedszkola
Zapraszam na prezentację – to gotowe do wprowadzenia mieszkanie w jednej z najchętniej wybieranych lokalizacji Poznania!







