Mieszkanie na sprzedaż
520 000 zł
40 m2





1 / 5
Szczegóły ogłoszenia
- Symbol oferty EXP-MS-4066
- Typ oferty mieszkanie na sprzedaż
- Cena 520 000 zł
- Charakterystyka mieszkania 40.16 m2, 2 pokoje
- Budynek nowe budownictwo
- Rozkład mieszkania 2p piętro
- Balkon duży
- Garaż miejsce garażowe
- Okna PCV
- Stan lokalu deweloperski
- Winda Tak
Lokalizacja
- Adres wielkopolskie, Poznań, Winogrady
Opis nieruchomości
* GWARANTUJEMY BEZPIECZNĄ TRANSAKCJĘ I PROFESJONALNĄ OBSŁUGĘ *
Oferuję CESJE UMOWY DEWELOPERSKIEJ powstającej na poznańskich Winogradach inwestycji realizowanej przez dewelopera Murapol - Havelia. Przedmiotem oferty jest lokal mieszkalny wraz z miejscem postojowym (w hali garażowej) zlokalizowany w budynku mieszkalnym przy ulicy Ziarnistej (Ziarnista/ Hawelańska/ Naramowicka).
Inwestycja jest w trakcie budowy i nie uzyskała jeszcze pozwolenia na użytkowanie. Przewidywane ukończenie inwestycji zaplanowane jest na przełomie I i II kwartału 2026r.
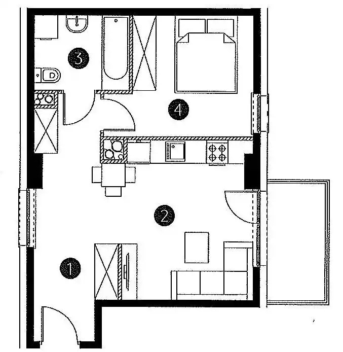
Lokal mieszkalny jest bardzo funkcjonalny, posiada duży balkon, a jego okna mają ekspozycję wschodnią (od wewnętrznej części osiedla, nie od ulicy). Mieszkanie znajduje się na drugim piętrze w budynku, który ma trzy kondygnacje naziemne i posiada windę. Pod budynkiem znajduje się hala garażowa, a w niej dedykowane do oferty miejsce garażowe.
Metraż mieszkania to 40,16 m2 i obejmuje:
- salon z aneksem kuchennym 14,58 m2 i wyjściem na balkon 4,5 m2 (powierzchnia balkonu nie jest wliczana do powierzchni użytkowej)
- sypialnia 10,31 m2
- łazienka 4,59 m2,
- hol 10,68 m2
Mieszkanie spełnia walory SMART HOME ( Home Management System).
Poza tym: drzwi wejściowe do mieszkania antywłamaniowe, okna plastikowe - szklenie dwu/trzyszybowe, pakiet antysmogowy. Instalacja CW, ZW, CO, instalacja kanalizacyjna, brak urządzeń sanitarnych i armatury, włączników świateł, oprawy gniazdek elektrycznych. Wnęka garderoby bez mebli, przyłącze RTV, światłowód.
Przy wjeździe na osiedle będzie szlaban, a na terenie osiedla będzie plac zabaw. Na każdej klatce będzie domofon, a w bloku winda.
Bliskość terenów rekreacyjno spacerowych jak Cytadela czy Wartostrada, pełna infrastruktura handlowa czy komunikacyjna, w tym: przystanek tramwajowy i autobusowy sprawia że jest to doskonała INWESTYCJA, także pod wynajem.
Cena lokalu mieszkalnego 520 000 zł + cena miejsca garażowego 30 000 zł
W biurze znajdują się szczegółowe dane i pełna specyfikacja budowlana.
Oferuję CESJE UMOWY DEWELOPERSKIEJ powstającej na poznańskich Winogradach inwestycji realizowanej przez dewelopera Murapol - Havelia. Przedmiotem oferty jest lokal mieszkalny wraz z miejscem postojowym (w hali garażowej) zlokalizowany w budynku mieszkalnym przy ulicy Ziarnistej (Ziarnista/ Hawelańska/ Naramowicka).
Inwestycja jest w trakcie budowy i nie uzyskała jeszcze pozwolenia na użytkowanie. Przewidywane ukończenie inwestycji zaplanowane jest na przełomie I i II kwartału 2026r.
Lokal mieszkalny jest bardzo funkcjonalny, posiada duży balkon, a jego okna mają ekspozycję wschodnią (od wewnętrznej części osiedla, nie od ulicy). Mieszkanie znajduje się na drugim piętrze w budynku, który ma trzy kondygnacje naziemne i posiada windę. Pod budynkiem znajduje się hala garażowa, a w niej dedykowane do oferty miejsce garażowe.
Metraż mieszkania to 40,16 m2 i obejmuje:
- salon z aneksem kuchennym 14,58 m2 i wyjściem na balkon 4,5 m2 (powierzchnia balkonu nie jest wliczana do powierzchni użytkowej)
- sypialnia 10,31 m2
- łazienka 4,59 m2,
- hol 10,68 m2
Mieszkanie spełnia walory SMART HOME ( Home Management System).
Poza tym: drzwi wejściowe do mieszkania antywłamaniowe, okna plastikowe - szklenie dwu/trzyszybowe, pakiet antysmogowy. Instalacja CW, ZW, CO, instalacja kanalizacyjna, brak urządzeń sanitarnych i armatury, włączników świateł, oprawy gniazdek elektrycznych. Wnęka garderoby bez mebli, przyłącze RTV, światłowód.
Przy wjeździe na osiedle będzie szlaban, a na terenie osiedla będzie plac zabaw. Na każdej klatce będzie domofon, a w bloku winda.
Bliskość terenów rekreacyjno spacerowych jak Cytadela czy Wartostrada, pełna infrastruktura handlowa czy komunikacyjna, w tym: przystanek tramwajowy i autobusowy sprawia że jest to doskonała INWESTYCJA, także pod wynajem.
Cena lokalu mieszkalnego 520 000 zł + cena miejsca garażowego 30 000 zł
W biurze znajdują się szczegółowe dane i pełna specyfikacja budowlana.
Powyższy opis ma charakter informacyjny i nie stanowi oferty w rozumieniu przepisów Kodeksu Cywilnego.
GORĄCO POLECAM !!!!!!
Zapraszam na prezentację, Magdalena Turzyńska 695 086 280
Zapraszam na prezentację, Magdalena Turzyńska 695 086 280
Nota prawna
Opis oferty zawarty na stronie internetowej sporządzany jest na podstawie oględzin nieruchomości oraz informacji uzyskanych od właściciela, może podlegać aktualizacji i nie stanowi oferty określonej w art. 66 i następnych K.C.
Kalkulator kredytowy
Formularz kontaktowy