Mieszkanie na sprzedaż





Szczegóły ogłoszenia
- Symbol oferty KNG-MS-7384
- Typ oferty mieszkanie na sprzedaż
- Cena 855 000 zł
- Charakterystyka mieszkania 89.8 m2, 4 pokoje
- Budynek kamienica; rok budowy: 1930
- Rozkład mieszkania 1p piętro
- Media Ogrzewanie: piec dwufunkcyjny; Woda: piec gazowy dwufunkcyjny; Gaz: jest
- Instalacje ELEKTRYCZNA, GAZOWA
- Okna PCV
- Otoczenie centrum miasta
- Stan lokalu do odświeżenia
- Technologia budowlana cegła
- Umeblowanie do uzgodnienia
Lokalizacja
- Adres wielkopolskie, Poznań
Opis nieruchomości
✩ Klimatyczne 4 pokoje w kamienicy | Centrum Poznania | 89,8 m² | I piętro | Zielone podwórko
Z prawdziwą przyjemnością prezentuję wyjątkowe, czteropokojowe mieszkanie o powierzchni 89,8 m², położone w klasycznej kamienicy przy ul. Szylinga – pomiędzy ul. Bukowską a Grunwaldzką, w samym sercu Poznania.
To propozycja dla osób, które cenią klimat przedwojennej architektury, wysokie wnętrza, parkiet z duszą i jednocześnie komfort życia w centrum miasta, z dostępem do zieleni i prywatnego podwórza.
✩ Mieszkanie – układ i wyposażenie
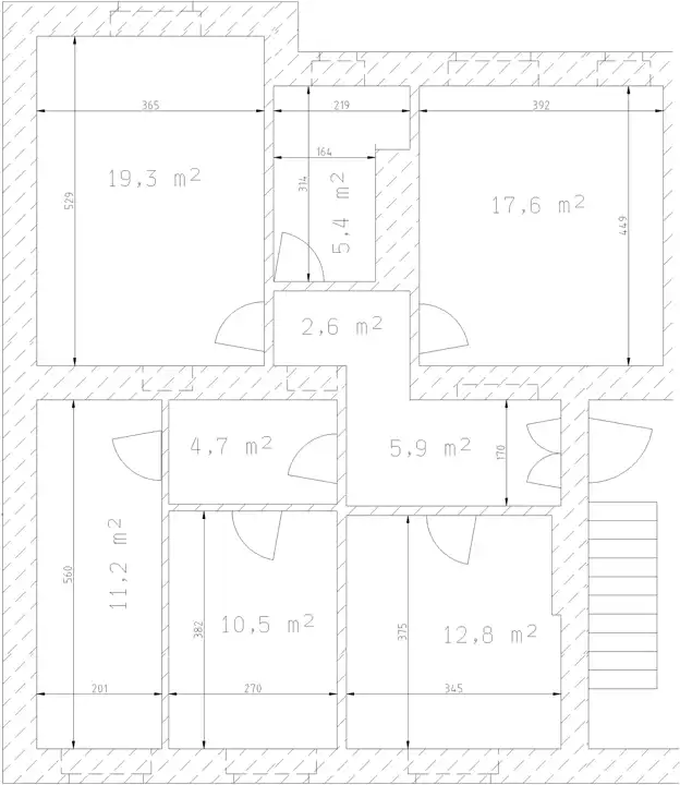
Powierzchnia: 89,8 m²
Piętro: 1
Wysokość pomieszczeń: ok. 3,10 m
Układ:
-
salon / pokój dzienny – 19,3 m²
-
pokój – 12,8 m²
-
pokój – 11,2 m²
-
pokój – 10,5 m²
-
kuchnia z jadalnią – 17,6 m²
-
łazienka – 5,4 m²
-
korytarze – ok. 13 m²
Możliwość zmiany układu
Dwa mniejsze pokoje oraz część korytarza zostały wydzielone z jednego dużego pokoju (ok. 27 m²). Istnieje możliwość przywrócenia pierwotnego, bardziej otwartego układu poprzez usunięcie ściany działowej.
Standard wykończenia:
-
parkiet dębowy w pokojach
-
płytki ceramiczne w kuchni, łazience i korytarzu
-
okna PCV, wnęki okienne dodatkowo ocieplone
Ogrzewanie i ciepła woda:
-
oszczędny, dwufunkcyjny piec gazowy
✩ Remont i stan techniczny
W 2014 roku przeprowadzono gruntowny remont obejmujący:
-
wymianę instalacji wodnej
-
wymianę instalacji centralnego ogrzewania wraz z grzejnikami
-
nową instalację gazową i elektryczną
-
gładzie szpachlowe na ścianach
-
płyty gipsowo - kartonowe wilgocioodporne w kuchni i łazience
-
kompleksowy remont łazienki
-
nowe płytki w kuchni
✩ Atuty nieruchomości
-
klimatyczna kamienica z charakterem
-
wysokie sufity (3,10 m) – poczucie przestrzeni i światła
-
pierwsze piętro – idealny kompromis między komfortem a prywatnością
-
duże, ogrodzone i zadbane podwórko z kasztanowcami, zielenią i piaskownicą
-
miejsca parkingowe dla mieszkańców na terenie posesji
-
możliwość zakupu lub wynajmu garażu
-
widok z okien na zieleń oraz zabytkowe budynki
-
doskonałe zarówno do zamieszkania, jak i pod inwestycję (wynajem, biuro, kancelaria)
✩ Dodatkowe pomieszczenia
-
piwnica ok. 9 m²
✩ Lokalizacja – centrum Poznania
Jedna z najmocniejszych stron tej nieruchomości.
W bezpośrednim sąsiedztwie:
-
Poznań – centrum
-
Rynek Jeżycki
-
Międzynarodowe Targi Poznańskie (MTP)
-
liczne restauracje, kawiarnie i punkty usługowe
-
przystanki tramwajowe i autobusowe
-
Dworzec PKP
-
bezpośrednia linia autobusowa na lotnisko Ławica
-
zabytkowy budynek I LO
-
pięknie odnowiony gmach Komendy Miejskiej Policji
Świetna komunikacja w każdą część miasta – bez konieczności korzystania z samochodu.
✩ Stan prawny
-
pełna własność
-
Księga Wieczysta bez obciążeń
-
możliwość finansowania kredytem hipotecznym
✩ Dodatkowe informacje
- Decydując się na zakup tej nieruchomości, możesz liczyć na nasze pełne wsparcie w całym procesie – od prezentacji po finalizację zakupu, w tym pomoc w uzyskaniu kredytu hipotecznego.
- Kupując z nami, zyskujesz również rabat na usługi notarialne we współpracy z Digital Broker.
Skontaktuj się, by umówić prezentację – to mieszkanie naprawdę ma klimat!