Dom na sprzedaż



















Szczegóły ogłoszenia
- Symbol oferty PRP-DS-71897
- Typ oferty dom na sprzedaż
- Cena 1 760 000 zł
- Charakterystyka mieszkania 240 m2, 7 pokoi, do remontu
- Budynek rok budowy: 1994
- Media Ogrzewanie: gazowe; Woda: tak - miejska; Kanalizacja: miejska; Prąd: jest; Gaz: tak - miejski
- Bezpieczeństwo ogrodzenie działki: metalowe
- Dojazd asfalt
- Działka Zagospodarowana, płaska
- Garaż w poziomie parteru
- Ilość sypialni 6
- Okna PCV
- Otoczenie działki zabudowane
- Pozwolenie na użytkowanie Tak
- Rodzaj domu bliźniak
- Stan prawny Własność
Lokalizacja
- Adres mazowieckie, pruszkowski, Pruszków
Opis nieruchomości
Na sprzedaż 7-pokojowy dom o powierzchni ok 240 m2, na działce o powierzchni 296 m2, zlokalizowany w Pruszkowie przy ul 3 Maja. W sąsiedztwie zabudowa jednorodzinna. Dobry dojazd do trasy S8. W pobliżu Park Mazowsze, w którym znajduje się zbiornik wodny o pow. 5 ha, duży plac zabaw dla dzieci, trampoliny oraz wyznaczone miejsca na ognisko lub grilla.
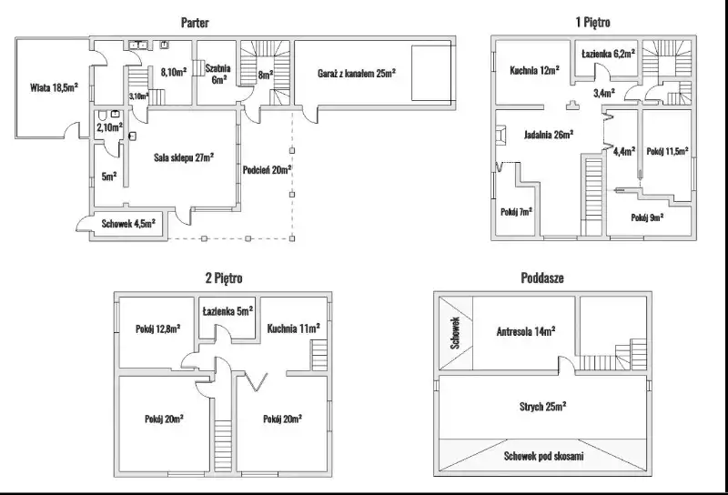
Rozkład powierzchni:
Parter: Lokal użytkowy o pow. 34 m2, z oddzielnym wejściem. Lokal generuje przychód z najmu. Garaż o powierzchni 25 m2.
Piętro I: 3 pokoje, kuchnia, salon z kominkiem i jadalnią, łazienka z WC,
Piętro II: 3 pokoje, kuchnia, łazienka z WC,
Poddasze: antresola, schowek.
Wymiary działki: 16x17x14x23 [m]. Media: prąd, woda, gaz, kanalizacja. Ogrzewanie gazowe.
Dla nieruchomości nie sporządzono świadectwa charakterystyki energetycznej.
Dane kontaktowe do agenta: Agnieszka Pankanin Tel: 888-889-659 E-mail: agnieszka.pankanin@properco.pl
For service in English, please call Mariola Sklorz at: +48 888-889-529
----
For sale: An 8-room house with an area of approximately 240 m2 on a 296 m2 plot located in Pruszków, at 3 Maja Street. The neighborhood consists of single-family houses. Convenient access to the S8 highway. Nearby, there is Mazowsze Park, which features a 5-hectare water reservoir, a large playground for children, trampolines, and designated areas for bonfires or grilling.
Layout: Ground floor: Commercial space of 34 m2 with a separate entrance. The space generates rental income. Garage with an area of 25 m2. First floor: 3 rooms, kitchen, living room with a fireplace and dining area, bathroom with a toilet. Second floor: 3 rooms, kitchen, bathroom with a toilet. Attic: Mezzanine, storage space.
Plot dimensions: 17x8x8x23x14 [m]. Utilities available: electricity, water, gas, and sewage. The heating system is gas-based. An energy performance certificate has not been issued for the property.
For service in English, please call Mariola Sklorz at: +48 888-889-529.