Dom na sprzedaż
760 000 zł
99 m2


















1 / 18
Szczegóły ogłoszenia
- Symbol oferty AMD-DS-5439
- Typ oferty dom na sprzedaż
- Cena 760 000 zł
- Charakterystyka mieszkania 98.56 m2, 4 pokoje, developerski
- Budynek rok budowy: 2025
- Media Ogrzewanie: C.O. GAZOWE; Woda: tak - miejska; Kanalizacja: szambo; Prąd: jest; Gaz: jest
- Bezpieczeństwo ogrodzenie działki: ogrodzona
- Balkon drzwi balkonowe
- Dojazd ASFALTOWA
- Działka Zagospodarowana, płaska, prostokąt
- Garaż brak
- Ilość sypialni 3
- Instalacje nowe
- Material konstrukcyjny cegła, pustak ceramiczny poroterm
- Okna PCV 3 szyby, ciepły montaż
- Otoczenie zabudowa jednorodzinna
- Pokrycie dachu blachodachówka
- Rodzaj domu bliźniak
- Stan prawny Własność
Lokalizacja
- Adres mazowieckie, Radzymin (gw), Nadma
Opis nieruchomości
Nadma, połowa bliźniaka, stan deweloperski, 4 pokoje, ogródek około 70m2, dwa miejsca postojowe.
TYLKO U NAS - Biuro sprzedaży dewelopera - bez podatku P.C.C i bez prowizji
OPIS INWESTYCJI: Prezentujemy nowe osiedle bliźniaków, segmentów i mieszkań w podwarszawskiej Nadmie. Osiedle zamknięte. W inwestycji bliźniaki bez garażu, bliźniaki i segmenty z garażami oraz 4 mieszkania. W cenie do każdej nieruchomości ogródek. Zróżnicowana oferta pozwoli każdemu znaleźć idealna dla siebie nieruchomość.
W ofercie:
- bliźniaki bez garażu - lokale A1A2 i B1B2 (98,56 m2) - cena: od 760.000 do 790.000 zł
- dwa mieszkania na parterze C1 (58,03 m2) cena 560.000 zł i D1 (61,09 m2) cena 580.000 zł
- dwa mieszkania na piętrze + poddasze C2 (113,17 m2) i D2 (117,83 m2) mieszkania zarezerwowane
- bliźniak z garażem - lokale E1 E2 i segmenty skrajne z garażem F1 i G2 (155,62 m2) cena: od 890.000 zł do 940.000 zł
- segmenty środowe z garażem F2 i G1 (155,73 m2) cena 850.000 zł
OPIS SZCZEGÓŁOWY:
Połowa domu w zabudowie bliźniaczej/lokal B1 o powierzchni całkowitej 98,56 m2, powierzchni użytkowej bez poddasza 80,00 m2, ogródek, dwa miejsca postojowe przy budynku.
W poziomie parteru dobrze doświetlony salon połączony z widnym aneksem kuchennym, wc i wiatrołap z miejscem na szafę. W salonie instalacja do zamontowania kominka. Na piętrze trzy sypialnie, łazienka z oknem, przedpokój z miejscem na szafę. W jednym z lokali dwie sypialnie na piętrze połączone w jeden duży pokój. Na strych wylane betonowe schody - możliwość wydzielenia np. dwóch dodatkowych pokoi. W dachu 2 okna dachowe.
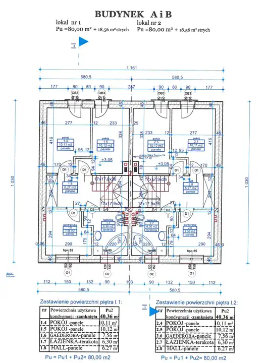
ZESTAWIENIE POMIESZCZEŃ:
PARTER 39,71 m2:
- sień 2,81 m2;
- salon z kuchnia 34,71 m2;
- wc 2,12 m2.
PIĘTRO 40,36 m2:
- pokoje: 10,11 m2/10,12 m2/7,56 m2;
- łazienka z oknem 6,30 m2;
- przedpokój z miejscem na szafę 6,27 m2.
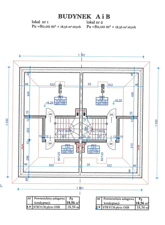
Poddasze nieużytkowe/strych - po podłodze ok. 40 m2, powierzchnia użytkowa 18,56 m2, w tym dwa pomieszczenia wg norm o metrażu: 12,06 m2 i 6,50 m2, ale do wykorzystania większa powierzchnia.
Lokalizacja: Idealny dojazd do Warszawy - do wjazdu na S8 tylko 1 km, szkoła podstawowa 300 m, przystanki komunikacji wew. 200 m, sklepy spożywcze 200 m i 300 m.
Standard wykończenia: lokale sprzedawane w stanie deweloperskim: w cenie dwufunkcyjny piec gazowy. Ogrzewanie podłogowe w całym lokalu - również na poddaszu nieużytkowym. Tynki wewnętrzne: gipsowe. Instalacje: elektryczna, alarmowa, internet, wodno- kanalizacyjna. Posadzki - wylewka betonowa. Drzwi zewnętrzne -metalowe z przeszkleniem, ocieplane. Docieplenie budynku - styropian 20 cm. Materiał: cegła porotherm. Dach - blachodachówka. Dach od wewnątrz docieplony pianą pur. Chodniki i miejsca postojowe wyłożone kostką. Teren ogrodzony. Automatyczna brama wjazdowa na osiedle.
Media: prąd, gaz, woda, szambo.
Planowane zakończenie budowy IV kwartał 2025 r. - I kwartał 2026 r.
POLECAM - możliwość umówienia spotkań również na weekendy, po wcześniejszym ustaleniu terminu.
Zapewniamy pełną obsługę prawną transakcji. Oferujemy pełne wsparcie i przeprowadzenie wszelkich formalności przy uzyskaniu kredytu hipotecznego.
więcej ofert na naszej stronie amidom
TYLKO U NAS - Biuro sprzedaży dewelopera - bez podatku P.C.C i bez prowizji
OPIS INWESTYCJI: Prezentujemy nowe osiedle bliźniaków, segmentów i mieszkań w podwarszawskiej Nadmie. Osiedle zamknięte. W inwestycji bliźniaki bez garażu, bliźniaki i segmenty z garażami oraz 4 mieszkania. W cenie do każdej nieruchomości ogródek. Zróżnicowana oferta pozwoli każdemu znaleźć idealna dla siebie nieruchomość.
W ofercie:
- bliźniaki bez garażu - lokale A1A2 i B1B2 (98,56 m2) - cena: od 760.000 do 790.000 zł
- dwa mieszkania na parterze C1 (58,03 m2) cena 560.000 zł i D1 (61,09 m2) cena 580.000 zł
- dwa mieszkania na piętrze + poddasze C2 (113,17 m2) i D2 (117,83 m2) mieszkania zarezerwowane
- bliźniak z garażem - lokale E1 E2 i segmenty skrajne z garażem F1 i G2 (155,62 m2) cena: od 890.000 zł do 940.000 zł
- segmenty środowe z garażem F2 i G1 (155,73 m2) cena 850.000 zł
OPIS SZCZEGÓŁOWY:
Połowa domu w zabudowie bliźniaczej/lokal B1 o powierzchni całkowitej 98,56 m2, powierzchni użytkowej bez poddasza 80,00 m2, ogródek, dwa miejsca postojowe przy budynku.
W poziomie parteru dobrze doświetlony salon połączony z widnym aneksem kuchennym, wc i wiatrołap z miejscem na szafę. W salonie instalacja do zamontowania kominka. Na piętrze trzy sypialnie, łazienka z oknem, przedpokój z miejscem na szafę. W jednym z lokali dwie sypialnie na piętrze połączone w jeden duży pokój. Na strych wylane betonowe schody - możliwość wydzielenia np. dwóch dodatkowych pokoi. W dachu 2 okna dachowe.
ZESTAWIENIE POMIESZCZEŃ:
PARTER 39,71 m2:
- sień 2,81 m2;
- salon z kuchnia 34,71 m2;
- wc 2,12 m2.
PIĘTRO 40,36 m2:
- pokoje: 10,11 m2/10,12 m2/7,56 m2;
- łazienka z oknem 6,30 m2;
- przedpokój z miejscem na szafę 6,27 m2.
Poddasze nieużytkowe/strych - po podłodze ok. 40 m2, powierzchnia użytkowa 18,56 m2, w tym dwa pomieszczenia wg norm o metrażu: 12,06 m2 i 6,50 m2, ale do wykorzystania większa powierzchnia.
Lokalizacja: Idealny dojazd do Warszawy - do wjazdu na S8 tylko 1 km, szkoła podstawowa 300 m, przystanki komunikacji wew. 200 m, sklepy spożywcze 200 m i 300 m.
Standard wykończenia: lokale sprzedawane w stanie deweloperskim: w cenie dwufunkcyjny piec gazowy. Ogrzewanie podłogowe w całym lokalu - również na poddaszu nieużytkowym. Tynki wewnętrzne: gipsowe. Instalacje: elektryczna, alarmowa, internet, wodno- kanalizacyjna. Posadzki - wylewka betonowa. Drzwi zewnętrzne -metalowe z przeszkleniem, ocieplane. Docieplenie budynku - styropian 20 cm. Materiał: cegła porotherm. Dach - blachodachówka. Dach od wewnątrz docieplony pianą pur. Chodniki i miejsca postojowe wyłożone kostką. Teren ogrodzony. Automatyczna brama wjazdowa na osiedle.
Media: prąd, gaz, woda, szambo.
Planowane zakończenie budowy IV kwartał 2025 r. - I kwartał 2026 r.
POLECAM - możliwość umówienia spotkań również na weekendy, po wcześniejszym ustaleniu terminu.
Zapewniamy pełną obsługę prawną transakcji. Oferujemy pełne wsparcie i przeprowadzenie wszelkich formalności przy uzyskaniu kredytu hipotecznego.
więcej ofert na naszej stronie amidom
Nota prawna
Opis oferty zawarty na stronie internetowej sporządzany jest na podstawie oględzin nieruchomości oraz informacji uzyskanych od właściciela, może podlegać aktualizacji i nie stanowi oferty określonej w art. 66 i następnych K.C.
Kalkulator kredytowy
Formularz kontaktowy