Mieszkanie na sprzedaż














Szczegóły ogłoszenia
- Symbol oferty DELI-MS-343
- Typ oferty mieszkanie na sprzedaż
- Cena 455 000 zł
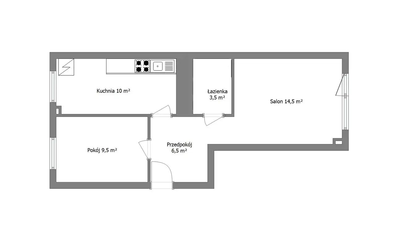
- Charakterystyka mieszkania 44 m2, 2 pokoje
- Budynek blok; rok budowy: 1975
- Rozkład mieszkania 2p piętro
- Media Ogrzewanie: miejskie; Woda: ciepła - piecyk gazowy; Gaz: jest
- Balkon jest
- Instalacje ELEKTRYCZNA, GAZOWA, TELEFONICZNA, INTERNETOWA
- Okna PCV
- Stan lokalu idealny
- Technologia budowlana wielka płyta
- Umeblowanie częściowo umeblowane
Lokalizacja
- Adres podkarpackie, Sanok, Wójtostwo
Opis nieruchomości
Biuro DELIMART nieruchomości ma przyjemność zaprezentować Państwu ofertę 2 pokojowego mieszkania na sprzedaż, zlokalizowanego w dzielnicy Wójtostwo
Powierzchnia mieszkania 44 m2
Lokalizacja: Sanok
ul. Armii Krajowej
2 piętro/ z 4 pięter
Blok - rok budowy 1975
MIESZKANIE:
2-pokojowe mieszkanie
osobna kuchnia
piwnica
balkon
mieszkanie słoneczne, wyjątkowo jasne
ciche
LOKALIZACJA:
W pobliżu sklepów, urzędów, uczelni państwowej, obiektów sportowych, apteki, restauracji, placów zabaw.
DODATKOWE INFORMACJIE :
wykończona łazienka, kuchnia i sypialnia
nowe instalacje elektryczne, wodne i kanalizacyjne
nowa wylewka
nowe drzwi wewnętrzne i zewnętrzne
nowa łazienka z kabiną prysznicową
pełna własność, założona księga wieczysta
dostępne: do uzgodnienia
kuchnia wyposażona w lodówkę, piekarnik, płytę gazową i zmywarkę
kuchnia wyposażona w nowe meble kuchenne
wykończenie i wyposażenia mieszkania w podwyższonym standardzie
umeblowany salon
CENA:
455 000 zł
Serdecznie zapraszamy do obejrzenia nieruchomości
Ofertę prowadzi:
Agent nieruchomości
Piotr Miłoszewski
tel. +48 603 406 307
piotr@delimart.pl
DELIMART nieruchomości
ul. Podgórze 14
38-500 Sanok