Dom na sprzedaż























Szczegóły ogłoszenia
- Symbol oferty PRP-DS-75943
- Typ oferty dom na sprzedaż
- Cena 620 000 zł
- Charakterystyka mieszkania 183.96 m2, 4 pokoje, do wykończenia
- Budynek rok budowy: 2020
- Media Ogrzewanie: inne; Woda: tak - miejska; Kanalizacja: w ulicy; Prąd: na działce; Gaz: brak
- Bezpieczeństwo ogrodzenie działki: brak
- Balkon średni
- Dojazd asfalt
- Działka częściowo zagospodarowana, płaska, prostokąt
- Garaż jest
- Ilość sypialni 3
- Instalacje dobre
- Material konstrukcyjny cegła, pustak
- Okna PCV
- Otoczenie zabudowa jednorodzinna
- Pokrycie dachu blachodachówka
- Rodzaj domu wolnostojący
- Taras taras duży
Lokalizacja
- Adres świętokrzyskie, Sitkówka-Nowiny, Kowala
Opis nieruchomości
REZERWACJA
Na sprzedaż 4-pokojowy dom o pow. 183,96 m2, pow. mieszkalnej 141,96 m2, zlokalizowany na działce o pow. 1089 m2 w Kowali, gm. Nowiny.
W skład domu wchodzą:
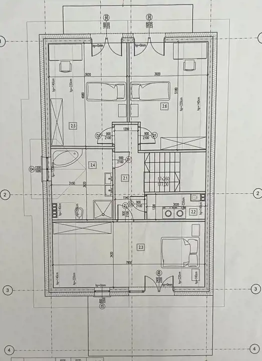
PARTER
- Wiatrołap 7,84 m2,
- Kuchnia 13,88 m2,
- Salon + jadalnia 35,81 m2,
- Hol 6,94 m2,
- Łazienka 5,66 m2,
- Kotłownia 7,42 m2,
- Garaż 20,81 m2.
PODDASZE
- Pokój 21,79 m2,
- Pokój 14,62 m2,
- Pokój 15,39 m2,
- Łazienka 10,55 m2,
- Korytarz 6,71 m2.
Dom wybudowany z pustaka ceramicznego, kryty blachodachówką, ocieplony styropianem i otynkowany. Planowane ogrzewanie: piec na paliwa stałe albo pompa ciepła. Nieruchomość w stanie surowym zamkniętym.
Media:
woda - w chodniku przy działce,
prąd - na działce,
kanalizacja - w ulicy przy działce,
gaz - brak.
Dom usytuowany na działce o pow. 1089 m2 w kształcie prostokąta, o przybliżonych wymiarach 20 x 60 x 20 x 63 [m]. Bardzo dobra lokalizacja, w pobliżu nowo powstała zabudowa jednorodzinna, bezproblemowy dojazd do Kielc , Bilczy i Morawicy.
Dla nieruchomości sporządzono świadectwo charakterystyki energetycznej.
Wskaźnik rocznego zapotrzebowania na energię użytkową EU= 84,6 kWh/(m2 ∙rok)
Wskaźnik rocznego zapotrzebowania na energię końcową EK= 191,6 kWh/(m2 ∙rok)
Wskaźnik rocznego zapotrzebowania na nieodnawialną energię pierwotną EP= 43,1 kWh/(m2 ∙rok)
Jednostkowa wielkość emisji CO2 ECO2= 0,00057 t CO2/(m 2 ∙rok).
Udział odnawialnych źródeł energii w rocznym zapotrzebowaniu na energię końcową UOZE= 99,12 %
Dane kontaktowe do agenta: Magdalena Prokopoudi Tel: 888-889-594 E-mail: magdalena.prokopoudi@properco.pl
-------
For sale: a 4-room house with an area of 183.96 m², living space of 141.96 m², located on a plot of 1089 m² in Kowala, Nowiny municipality.
The house consists of: GROUND FLOOR
- Vestibule 7.84 m²,
- Kitchen 13.88 m²,
- Living room + dining area 35.81 m²,
- Hall 6.94 m²,
- Bathroom 5.66 m²,
- Boiler room 7.42 m²,
- Garage 20.81 m².
ATTIC
- Room 21.79 m²,
- Room 14.62 m²,
- Room 15.39 m²,
- Bathroom 10.55 m²,
- Corridor 6.71 m².
The house is built of ceramic blocks, covered with metal roofing tiles, insulated with styrofoam, and plastered. Planned heating: solid fuel boiler or heat pump. The property is in a closed shell state.
Utilities:
- Water: in the sidewalk near the plot,
- Electricity: on the plot,
- Sewerage: in the street next to the plot,
- Gas: not available.
The house is situated on a rectangular plot of 1089 m², with approximate dimensions of 20 x 60 x 20 x 63 meters. Excellent location, with newly built single-family houses nearby, and easy access to Kielce, Bilcza, and Morawica.
An energy performance certificate has been prepared for the property.
- Annual energy demand indicator (EU) = 84.6 kWh/(m²∙year)
- Annual final energy demand indicator (EK) = 191.6 kWh/(m²∙year)
- Annual non-renewable primary energy demand indicator (EP) = 43.1 kWh/(m²∙year)
- CO2 emission rate ECO2 = 0.00057 t CO2/(m²∙year)
- Share of renewable energy sources in the annual final energy demand (UOZE) = 99.12%
Contact details for the agent:
Magdalena Prokopoudi
Phone: +48 888-889-594.
Email: magdalena.prokopoudi@properco.pl