Dom na sprzedaż
















Szczegóły ogłoszenia
- Symbol oferty GRS-DS-3075
- Typ oferty dom na sprzedaż
- Cena 1 199 000 zł
- Charakterystyka mieszkania 149 m2, 4 pokoje, do zamieszkania
- Budynek rok budowy: 2019
- Bezpieczeństwo ogrodzenie działki: brak
- Działka Niezagospodarowana, płaska, prostokąt
- Garaż 1
- Okna PCV
- Pokrycie dachu dachówka ceramiczna
- Rodzaj domu wolnostojący
Lokalizacja
- Adres pomorskie, Słupsk, Strzelino
Opis nieruchomości
PREZENTUJEMY NA SPRZEDAŻ nowoczesny dom wolnostojący w Strzelinie
-
powierzchnia zabudowy: 148,7 m²
-
powierzchnia użytkowa: 122,8 m²
-
działka: 1052 m² (płaska, dobrze nasłoneczniona)
-
rok budowy: 2019 r.
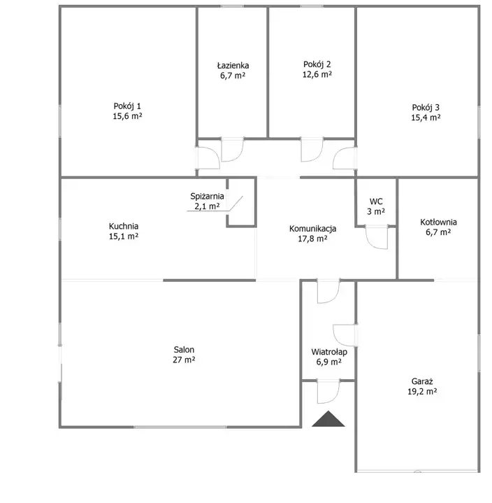
Układ pomieszczeń (parter)
-
wiatrołap – 6,9 m²
-
komunikacja – 17,8 m² (szeroka, funkcjonalna)
-
kuchnia – 15,1 m²
-
spiżarnia – 2,1 m²
-
salon – 27 m²
-
3 pokoje – 15,6 m² / 15,4 m² / 12,6 m² (jeden może pełnić funkcję garderoby)
-
łazienka – 6,7 m²
-
WC – 3 m²
-
garaż – 19,2 m² (jednostanowiskowy)
-
kotłownia / pom. gospodarcze – 6,7 m²
Wyposażenie i elementy, które robią robotę
-
kominek w salonie – centralnie zaplanowany, buduje klimat i „serce domu”
-
salon z wyjściem na taras – duże, wygodne przejście do strefy wypoczynku na zewnątrz
-
strefa dzienna otwarta na komunikację – więcej światła i poczucie przestrzeni
-
kuchnia ze spiżarnią – praktyczne miejsce do przechowywania (zapasy, sprzęty, przetwory – cała logistyka domu)
Stolarka okienna i osłony
-
okna PCV trzyszybowe – lepsza izolacja termiczna i akustyczna
-
rolety zewnętrzne – komfort, prywatność, ochrona przed słońcem i dodatkowa izolacja
Ogrzewanie i instalacje
-
ogrzewanie centralne: piec gazowy dwufunkcyjny (CO + ciepła woda)
-
monitoring + alarm – gotowy pakiet bezpieczeństwa
Lokalizacja i otoczenie
-
zabudowa jednorodzinna wolnostojąca
-
cisza, spokój, dużo zieleni (fauna i flora)
-
dogodny dojazd do Słupska – infrastruktura w zasięgu, bez rezygnacji z prywatności
DODATKOWE INFORMACJE:
- rok budowy – 2019r.,
- powierzchnia działki – 1052m2,
- ogrzewanie centralne – piec dwufunkcyjny gazowy,
- kominek w salonie,
- wszystkie okna PCV trzyszybowe, wyposażone w rolety zewnętrzne,
- dom wyposażony w system monitoringu i alarmu,
- materiał konstrukcyjny – Ytong,
- dachówka ceramiczna,
- garaż jednostanowiskowy,
- możliwość zaadoptowania poddasza
- panele fotowoltaiczne - 2,76 kW
- ogrodzenie domu: od front murowane z elementami żelbetowymi, od boków siatka, tył - do połowy murowane od połowa siatka
- studnia na wodę deszczową - 6000 l
CENA: 1 199 000 PLN
Wynagrodzenie prowizyjne dla biura pokrywa strona Kupująca.
Więcej informacji uzyskasz kontaktując się z nami:
728 111 007 – Przemek Pryzwan
799 799 313 – Marta Rutkowska
728 202 030 – Marta Patyna
503 901 101 – Adrianna Iwanicka
www.gryfnieruchomosci.pl
Serdecznie zapraszam Państwa na prezentację nieruchomości, z przyjemnością odpowiem na wszelkie pytania oraz udzielę dodatkowych informacji.
Zamierzasz kupić nieruchomość i skorzystać z finansowania banku? Pomożemy dokonać Ci dobrego wyboru najlepszej oferty spośród wielu banków. Nasz doradca dostosuje ofertę kredytu hipotecznego do Twoich potrzeb i oczekiwań oraz będzie do Twojej dyspozycji na każdym etapie procesu kredytowego.
Niniejsza oferta nie stanowi oferty w rozumieniu Kodeksu Cywilnego, a dane w niej zawarte mają jedynie charakter informacyjny i mogą ulec zmianie.