Dom na sprzedaż
















Szczegóły ogłoszenia
- Symbol oferty GRS-DS-2774
- Typ oferty dom na sprzedaż
- Cena 680 000 zł
- Charakterystyka mieszkania 418.34 m2, 5 pokoi, do zamieszkania
- Budynek rok budowy: 2016
- Bezpieczeństwo ogrodzenie działki: siatka
- Działka Zagospodarowana, płaska, prostokąt
- Garaż blaszak
- Pokrycie dachu blachodachówka
- Umeblowanie częściowo umeblowane
Lokalizacja
- Adres pomorskie, Słupsk, Bruskowo Wielkie
Opis nieruchomości
PREZENTUJEMY NA SPRZEDAŻ ATRAKCYJNY OBIEKT USŁUGOWO-HANDLOWY Z CZĘŚCIĄ MIESZKALNĄ W BRUSKOWIE WIELKIM! LOKAL USŁUGOWO-HANDLOWY NA PARTERZE O POWIERZCHNI UŻYTKOWEJ 67,20 m2 CZĘŚĆ MIESZKALNA O POWIERZCHNI 176,30 m2
Budynek wolnostojący posadowiony na działce o powierzchni 1000 m2. Budynek wybudowany w latach 80 na potrzeby lokalu handlowo-usługowego. W 2017 r. wykonana została nadbudowa budynku istniejącego sklepu o część mieszkalną.
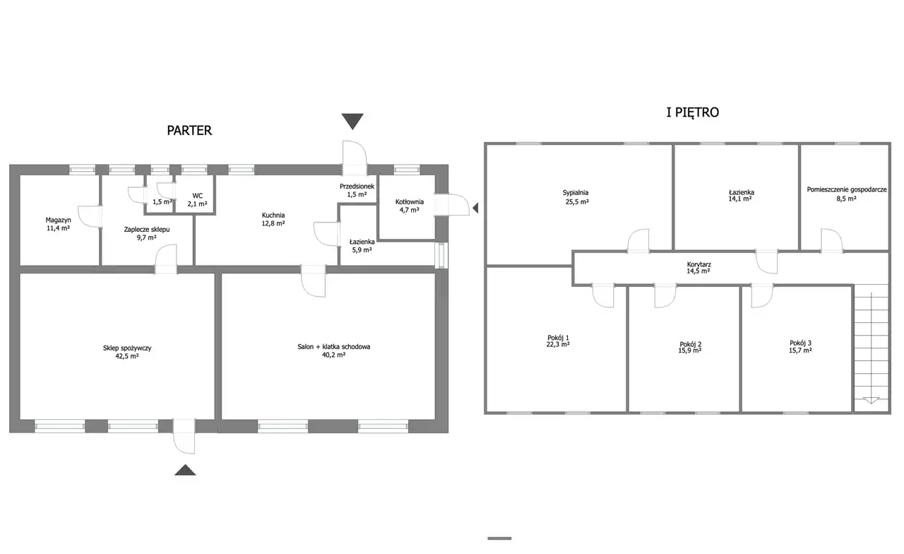
PARTER – 132,30 m2
CZĘŚĆ USŁUGOWA-HANDLOWA – 67,20 m2:
- powierzchnia handlowa – 42,50 m2
- zaplecze socjalne – 9,70 m2
- toaleta – 3,60 m2
- magazyn – 11,40 m2
CZĘŚĆ MIESZKALNA – 65,10 m2
- salon z klatką schodową– 40,20 m2
- kuchnia – 12,80 m2
- łazienka – 5,90 m2
- kotłownia – 4,70 m2
- przedsionek – 1,50 m2
PIĘTRO – CZĘŚĆ MIESZKALNA - 111,20 m2
- sypialnia – 25,50 m2
- pokoje – (22,30 m2; 15,90 m2; 15,70 m2)
- łazienka – 14,10 m2
- pomieszczenie gospodarcze – 8,50 m2
- korytarz – 14,50 m2
Lokal handlowo-usługowy o korzystnym rozkładzie oraz możliwościach aranżacyjnych. Położony na parterze budynku przy głównym ciągu komunikacyjnym o dużym natężeniu ruchu zarówno pieszego, jak i samochodowego.
Ten przestronny lokal składa się z pomieszczenia handlowego, magazynu, zaplecza oraz łazienki z wc. Bezpośrednie wejście z ulicy, co zapewnia wygodny dostęp dla klientów. Dodatkowym udogodnieniem dla potencjalnych klientów są miejsca parkingowe. Dzięki temu klienci mogą bezproblemowo zaparkować swoje samochody i skorzystać z oferowanych usług.
Na chwilę obecna Najemcą lokalu usługowo-handlowego jest sklep Żabka, który zapewnia dodatkowy dochód dla właściciela nieruchomości.
Strefa dzienna
Główny salon to miejsce pełne światła, dzięki dużym oknom. W pokoju znajduje się duży, wygodny narożnik, idealny do relaksu, oraz minimalistyczny stolik kawowy. Telewizor i zestaw kina domowego dopełniają funkcjonalność przestrzeni, tworząc miejsce idealne do spędzania czasu z rodziną i przyjaciółmi. W centralnej części salonu znajdują drewniane schody prowadzące na wyższe piętro. Drewniane elementy nadają wnętrzu ciepły, klasyczny charakter, a otwarta przestrzeń uzupełniona o rośliny wprowadza harmonię. Na parterze znajduje się także stylowy kredens, który stanowi funkcjonalny element dekoracyjny.
Sypialnie
W domu znajdują się przestronne, jasne sypialnie, każda z nich oferująca wyjątkowy klimat.
- Główna sypialnia Wyróżnia się nowoczesnym stylem, pastelowymi ścianami i dużym łóżkiem, które zapewni komfortowy wypoczynek. Dodatkowym atutem są liczne szafy i półki na książki. Pomieszczenie jest doświetlone dzięki oknom dachowym.
- Pozostałe pokoje to pomieszczenia bardzo przestronne i jasne. Dzięki dużej ilości miejsca jest to idealna przestrzeń do zabawy lub pracy. Każdy wyposażony łóżka oraz dodatkowe meble do przechowywania.
Kuchnia
Kuchnia utrzymana jest w jasnej, klasycznej stylistyce. Biel szafek idealnie współgra z podłogą, a przestrzeń robocza została zaprojektowana tak, aby spełniać potrzeby nawet najbardziej wymagających kucharzy. Duże okno zapewnia doskonałe doświetlenie, a miejsce na stół jadalny sprawia, że kuchnia pełni również funkcję rodzinnej jadalni.
Łazienka
Łazienka to nowoczesne i przestronne pomieszczenie. Znajduje się w niej wolnostojąca wanna, umywalka z szafką oraz toaleta. Jasne kafle i duże okno dachowe tworzą wrażenie luksusu oraz komfortu. W pomieszczeniu zaprojektowane zostało również miejsce na saunę.
Dom wyróżnia się funkcjonalnym rozkładem, w którym każdy znajdzie swoją przestrzeń. Drewniane elementy w połączeniu z nowoczesnymi rozwiązaniami zapewniają harmonijną równowagę pomiędzy stylem tradycyjnym a nowoczesnym. Na uwagę zasługuje duża ilość miejsc do przechowywania oraz przestronne korytarze, które zapewniają swobodę przemieszczania się.
Nieruchomość to połączenie przestronności, funkcjonalności i estetyki. Doskonale zaprojektowane wnętrza sprawiają, że dom jest idealnym miejscem dla rodzin szukających komfortu oraz wysokiej jakości życia. Lokalizacja, duża powierzchnia użytkowa oraz unikalne wykończenie stanowią dodatkowe atuty tego wyjątkowego domu.
DODATKOWE INFORMACJE:
- stan prawny – pełna własność
- brak obciążeń w KW
- budynek posadowiony na działce: 35/5 – 1000 m2
- działka drogowa – 35/9 – 189 m2
- działka w całości ogrodzona - siatka
- osobne wejścia do lokalu usługowo-handlowego oraz do części mieszkalnej
- wszystkie instalacje oraz liczniki są podzielone na lokal usługowy oraz lokal mieszkalny
- pompa ciepła – 7,5 kw
- piec na ekogroszek
- panele fotowoltaiczne – 7,5 kw
- pokrycie dachu – blachodachówka
- strych – do zagospodarowania
- parking dla klientów lokal usługowego
- garaż (blaszak) na terenie działki
- dobra lokalizacja – na trasie Słupsk- Darłowo
- nieruchomość sprzedawana w częściowym wyposażeniem
Ta wyjątkowa oferta to doskonała inwestycja zarówno dla osób poszukujących miejsca do zamieszkania, jak i dla tych, którzy chcą prowadzić własną działalność gospodarczą. Budynek ten jest idealnym rozwiązaniem dla osób pragnących połączyć życie prywatne z zawodowym w jednym miejscu. Co więcej, jest to również atrakcyjna propozycja dla inwestorów, którzy chcą czerpać zyski z wynajmu. Możliwość wynajmu lokalu mieszkalnego oraz lokalu handlowo-usługowego gwarantuje stabilne dochody i wysoką rentowność inwestycji.
CENA: 680 000 PLN
Strona Kupująca pokrywa wynagrodzenie prowizyjne dla biura.
Więcej informacji uzyskasz kontaktując się z nami:
503 901 101 - Adrianna Iwanicka (opiekun oferty)
728 202 030 - Marta Patyna
799 799 313 - Marta Rutkowska
728 111 007 - Przemysław Pryzwan
799 799 397 - Dominika Szramiak
669 647 067 - Karolina Jakuczun
Więcej zdjęć znajdziecie Państwo na naszej stronie: www.gryfnieruchomosci.pl
Serdecznie zapraszam Państwa na prezentację nieruchomości, z przyjemnością odpowiem na wszelkie pytania oraz udzielę dodatkowych informacji.
Zamierzasz kupić nieruchomość i skorzystać z finansowania banku? Pomożemy dokonać Ci dobrego wyboru najlepszej oferty spośród wielu banków. Nasz doradca dostosuje ofertę kredytu hipotecznego do Twoich potrzeb i oczekiwań oraz będzie do Twojej dyspozycji na każdym etapie procesu kredytowego.
Niniejsza oferta nie stanowi oferty w rozumieniu Kodeksu Cywilnego, a dane w niej zawarte mają jedynie charakter informacyjny i mogą ulec zmianie.