Dom na sprzedaż

Szczegóły ogłoszenia
- Symbol oferty NET-DS-1876
- Typ oferty dom na sprzedaż
- Cena 1 000 000 zł
- Charakterystyka mieszkania 526.4 m2, 10 pokoi
Lokalizacja
- Adres śląskie, Świętochłowice
Opis nieruchomości
Świętochłowice, dnia 20 stycznia 2026 r.
GN.6840.1.7.2025.BA
Na podstawie § 13 Rozporządzenia Rady Ministrów z dnia 14 września 2004 r. w sprawie sposobu i trybu przeprowadzania przetargów oraz rokowań na zbycie nieruchomości (Dz. U. z 2021 r., poz. 2213), Uchwały Nr IV/24/14 Rady Miejskiej w Świętochłowicach z dnia 19 grudnia 2014 r. w sprawie określenia zasad nabywania, zbywania i obciążania nieruchomości oraz ich wydzierżawiania lub wynajmowania na okres dłuższy niż trzy lata, Zarządzenia Nr 518/2025 Prezydenta Miasta Świętochłowice z 5 listopada 2025 r. w sprawie sprzedaży w drodze przetargu ustnego nieograniczonego nieruchomości zabudowanej, położonej przy ul. Kaliny 38 i Kaliny 40
Prezydent Miasta Świętochłowice
ogłasza I przetarg ustny nieograniczony na sprzedaż
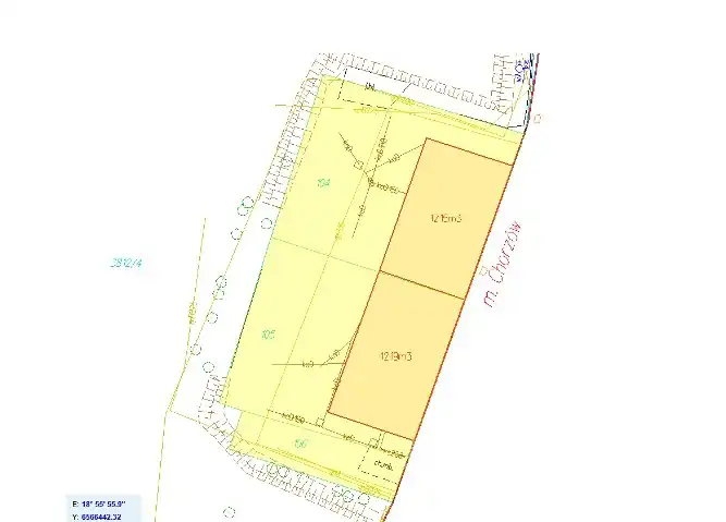
stanowiącej własność Gminy Świętochłowice zabudowanej nieruchomości, obejmującej działki o identyfikatorach:
-
247601_1.0003.104, użytek – B, o powierzchni 581 m2 (0,0581 ha), jednostka rejestrowa G. 127
-
247601_1.0003.105, użytek – B, o powierzchni 552 m2 (0,0552 ha), jednostka rejestrowa G. 128
-
247601_1.0003.106, użytek – B, o powierzchni 121 m2 (0,0121 ha), jednostka rejestrowa G. 293
o łącznej powierzchni 1254 m2 (0,1254 ha).
-
Opis nieruchomości:
Lokalizacja:
Nieruchomość znajduje się we wschodniej części miasta, przy granicy z miastem Chorzów. W sąsiedztwie znajdują się tereny produkcyjne i tereny kolejowe, zabudowa mieszkaniowa, ogródki działkowe. W pobliżu znajdują się przystanki komunikacji autobusowej, a w odległości ok. 1,5 km znajduje się stacja kolejowa.
Kształt i topografia terenu:
Nieruchomość zabudowana jest dwoma kamienicami mieszkalnymi. Część niezabudowaną nieruchomości stanowi podwórze. Na podwórku znajdują się także drewniane obiekty gospodarcze w złym stanie technicznym. Granice działek tworzą zwarty obszar w kształcie regularnym, zbliżonym do prostokąta.
Aktualne zagospodarowanie:
Przedmiotowa nieruchomość (działki 104 i 105) jest zabudowana dwoma budynkami mieszkalnymi, wybudowanymi w technologii tradycyjnej w 1905 r. Budynki są murowane z cegły, podpiwniczone, posiadają trzy kondygnacje naziemne oraz strych. Ściany murowane z cegły, stropy drewniane, dach konstrukcji drewnianej kryty papą. Działka 106 jest niezabudowana.
-
Nr budynku
Powierzchnia użytkowa Pu [m2]
Kubatura [m3]
Ilość mieszkań
38
526,40
2782,30
10
40
525,15
2782,30
11
suma
1 051,55
5564,60
21
Dostępność komunikacyjna:
Nieruchomość posiada bezpośredni dostęp do drogi publicznej – ul. Kaliny.
Uzbrojenie terenu:
Nieruchomość posiada dostęp do sieci i urządzeń infrastruktury technicznej: sieci wodociągowej, sieci kanalizacyjnej, sieci elektroenergetycznej, sieci teletechnicznej, sieci gazociągowej.
-
Przeznaczenie nieruchomości i sposób jej zagospodarowania:
Dla przedmiotowego terenu obowiązuje Uchwała nr XII/93/25 Rady Miejskiej w Świętochłowicach z 27 marca 2025 r. w sprawie uchwalenia miejscowego planu zagospodarowania przestrzennego dla obszaru miasta Świętochłowice w rejonie ulic Śląskiej i Metalowców, torów kolejowych oraz południowo-wschodniej granicy administracyjnej miasta - symbol planu 1PS - tereny składów i magazynów. Przeznaczenie uzupełniające - tereny usług. Przeznaczenie wykluczone: teren usług handlu wielkopowierzchniowego, teren usług zdrowia i pomocy społecznej, teren usług edukacji, teren usług nauki, teren usług kultu religijnego.
-
Obciążenia nieruchomości:
Działy III ksiąg wieczystych prowadzonych dla nieruchomości objętych jednostkami rejestrowymi G. 127 i G. 128 zawierają wpisy dotyczące roszczenia dotychczasowego właściciela gruntu o opłatę przekształceniową. Działy IV tych ksiąg są wolne od wpisów.
Natomiast Działy III i IV księgi wieczystej prowadzonej dla nieruchomości objętej jednostką rejestrowa G. 293 są wolne od wpisów.
Opłata przekształceniowa, płatna jest do końca marca każdego roku, do roku 2038 włącznie, w wysokości 1 126,84 zł. Opłata może podlegać waloryzacji zgodnie z zasadami określonymi w przepisach ustawy o gospodarce nieruchomościami. Waloryzacji opłaty dokonuje z urzędu albo na wniosek właściciela nieruchomości, nie częściej niż raz na 3 lata od dnia dokonania ostatniej waloryzacji. O wysokości zwaloryzowanej opłaty właściwy organ zawiadamia właściciela nieruchomości, doręczając informację na piśmie na adres, o którym mowa w art. 4 ust. 6. Doręczenie na taki adres uważa się za dokonane. Zwaloryzowana opłata obowiązuje od dnia 1 stycznia roku następującego po roku, w którym dokonano waloryzacji.
Budynki mieszkalne obciążone są korzystaniem bez tytułu prawnego; podejmowane są działania w celu opuszczenia tych lokali przez osoby zajmujące je.
W dniu 17.12.2025 r. upłynął termin do złożenia wniosków przez osoby, którym przysługuje pierwszeństwo w nabyciu ww. nieruchomości na podstawie art. 34 ust.1 pkt 1 i pkt 2 ustawy z dnia 21 sierpnia 1997 r. o gospodarce nieruchomościami (Dz. U. z 2024 r. poz. 1145 ze zm.).
-
Terminy, cena, wadium:
-
Pierwszy przetarg odbędzie się w dniu 31 marca 2026 r. o godz. 11.00 w Urzędzie Miejskim w Świętochłowicach, ul. Katowicka 54.
-
Cenę wywoławczą nieruchomości do I (pierwszego) przetargu ustala się na kwotę 1 000 000,00 zł (jeden milion złotych 00/100), przy czym 29,48% ceny stanowi cena za grunt, 70,52 % cena za budynki. Zgodnie z przepisami ustawy z dnia 11 marca 2004 r. o podatku od towarów i usług (Dz. U. z 2025 r. poz. 775 ze zm.), sprzedaż nieruchomości w części zabudowanej budynkami mieszkalnymi jest zwolniona z podatku od towarów i usług, w pozostałym zakresie, tj. sprzedaż działki nr 106 (2,84% wylicytowanej ceny) podlega opodatkowaniu w stawce należnej na dzień sprzedaży.
Wylicytowaną cenę nieruchomości wraz z podatkiem należy uiścić w całości, przed zawarciem umowy notarialnej.
-
Wadium w kwocie 100 000,00 zł (słownie: sto tysięcy złotych 00/100) należy wnieść przelewem na konto prowadzone przez PKO B.P. nr 73 1020 2313 0000 3602 0574 0586 do dnia 26 marca 2026 r. (za datę wpłaty wadium przyjmuje się datę jego wpływu na rachunek bankowy Urzędu Miejskiego) z dopiskiem: „GN/2026/wadium do przetargu ul. Kaliny”.
-
O wysokości postąpienia decydują uczestnicy przetargu, z tym że postąpienie nie może wynosić mniej niż 1% ceny wywoławczej, z zaokrągleniem w górę do pełnych dziesiątek złotych.
-
Warunki udziału w przetargu:
-
W przetargu może brać udział każdy, kto posiada zdolność prawną i zdolność do czynności prawnych, jeżeli:
-
wpłaci wadium w określonej wysokości i w wyznaczonym terminie,
oraz przedłoży komisji przetargowej, najpóźniej w dniu przetargu:
-
pisemne zgłoszenie uczestnictwa w przetargu zawierające dane osobowe: imiona, nazwisko, imiona rodziców, serię i nr dowodu osobistego, PESEL, a w przypadku podmiotów innych, niż osoby fizyczne, zgłoszenie powinno zawierać nazwę firmy, siedzibę, numer KRS lub REGON i dane pełnomocników/osób reprezentujących w przetargu
- wraz z oświadczeniami o treści:
-
„Wyrażam zgodę na przetwarzanie moich danych osobowych, w tym również udostępnienie ich do publicznej wiadomości, w zakresie zbycia w drodze przetargu w/w. nieruchomości”,
-
„Zapoznałem/am się ze stanem prawnym i technicznym nieruchomości”,
-
„W przypadku potrzeby wznowienia granic nieruchomości zobowiązuję się do zlecenia wykonania tej czynności na własny koszt”.
Oświadczenie można pobrać pod poniższym adresem internetowym:
https://www.bip.swietochlowice.pl/bipkod/003/010/003
-
dowód tożsamości, a w przypadku podmiotów innych – aktualny wypis z właściwego rejestru, wydany w ciągu ostatnich trzech miesięcy. W przypadku reprezentowania osoby prawnej przez pełnomocnika oprócz aktualnego wypisu z właściwego rejestru winny przedłożyć pełnomocnictwo w formie aktu notarialnego upoważniające do działania na każdym etapie postępowania przetargowego,
-
w przypadku małżeńskiej wspólności majątkowej wymagana jest obecność małżonków na przetargu lub zwykłe pełnomocnictwo udzielone przez nieobecnego małżonka do uczestnictwa w przetargu w jego imieniu i składania oświadczeń związanych z przetargiem.
-
Cudzoziemcy mogą uczestniczyć w przetargu na zasadach określonych w ustawie z dnia 24 marca 1920 r. o nabywaniu nieruchomości przez cudzoziemców (Dz. U. z 2017 r. poz. 2278).
-
Dodatkowe informacje
-
Wadium wpłacone przez uczestnika przetargu, który przetarg wygrał, zalicza się na poczet ceny nabycia prawa własności nieruchomości, a wadium wpłacone przez pozostałe osoby zwraca się nie później niż przed upływem 3 dni od dnia odwołania lub zamknięcia przetargu.
-
Osoba, która wygrała przetarg jest zobowiązana, przed zawarciem aktu notarialnego, do zapłaty wylicytowanej ceny sprzedaży w całości przelewem na rachunek bankowy Urzędu Miejskiego w Świętochłowicach prowadzony przez PKO BP SA nr 70 1020 2313 0000 3202 0574 0545. Miejsce i termin zawarcia umowy zostaną podane w pisemnym zawiadomieniu najpóźniej w ciągu 21 dni od dnia rozstrzygnięcia przetargu.
-
Wadium nie podlega zwrotowi, jeżeli osoba ustalona jako nabywca prawa własności nieruchomości nie stawi się bez usprawiedliwienia w miejscu i terminie ustalonym do zawarcia umowy nabycia prawa własności nieruchomości, podanym w zawiadomieniu, o którym mowa w pkt poprzedzającym niniejszego ogłoszenia. W takim przypadku organizator przetargu może odstąpić od zawarcia umowy.
-
Koszty sporządzenia umowy notarialnej oraz opłaty sądowe związane z dokonaniem wpisów w księgach wieczystych ponosi nabywca.
-
Nabywca przejmuje nieruchomość w stanie istniejącym, na zasadach określonych w ustawie z dnia 21 sierpnia 1997 r. o gospodarce nieruchomościami (Dz. U. z 2024 r., poz. 1145).
-
Zbywający nie ponosi odpowiedzialności za ewentualne wady ukryte nieruchomości, w tym także za nieujawniony w Ośrodku Dokumentacji Geodezyjnej i Kartograficznej przebieg podziemnych mediów, ani żadne inne wady, które nie są znane sprzedającemu w dniu zbycia nieruchomości.
-
Prezydent Miasta Świętochłowice zastrzega sobie prawo odwołania przetargu z ważnych powodów.
-
Ogłoszenie niniejsze podlega publikacji w Infopublikatorze.pl, w Biuletynie Informacji Publicznej oraz zostało wywieszone na tablicy ogłoszeń w siedzibie Urzędu Miejskiego w Świętochłowicach przy ul. Katowickiej 54.
-
Dodatkowe informacje można uzyskać w Wydziale Gospodarki Nieruchomościami Urzędu Miejskiego w Świętochłowicach, pokój nr 118, tel. 32 3491-934.
Z up. Prezydenta Miasta
Pierwszy Zastępca
Prezydenta Miasta
Sławomir Pośpiech