Dom na sprzedaż





























Szczegóły ogłoszenia
- Symbol oferty GNTL-DS-198
- Typ oferty dom na sprzedaż
- Cena 430 000 zł
- Charakterystyka mieszkania 120 m2, 4 pokoje, do wykończenia
- Bezpieczeństwo ogrodzenie działki: brak
- Działka częściowo zagospodarowana, płaska, prostokąt
- Okna PCV
- Pokrycie dachu blacha
- Rodzaj domu jednorodzinny
- Umeblowanie do uzgodnienia
Lokalizacja
- Adres podkarpackie, rzeszowski, Świlcza
Opis nieruchomości
Biuro Nieruchomości Lord House ma przyjemność przedstawić ofertę sprzedaży domu w Mrowli, niedaleko Rzeszowa o powierzchni użytkowej ok. 120m2.
Nieruchomość usytuowana jest na 9 arowej działce, znajdującej się zaledwie 12km od Rzeszowskiego Rynku.
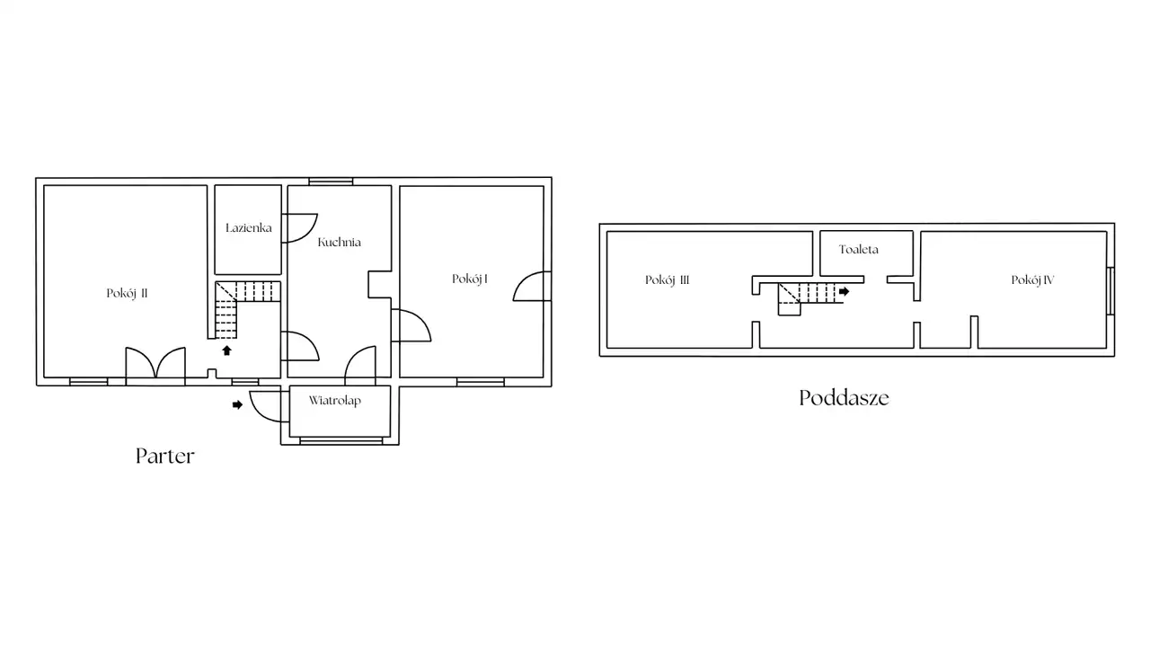
Do domu wchodzimy przez wiatrołap z dużym oknem, z którego jest wejście do kuchni. Po prawej stronie znajduje się duży, ok 20m2 pokój z oknem oraz drzwiami tarasowymi.
Z kuchni jest również przejście do łazienki oraz pomieszczenia ze schodami prowadzącymi na piętro, a dalej znajduje się ogromny ok 25-30 m2 pokój, który posiada duże drzwi tarasowe oraz spore możliwości aranżacyjne. Na parterze jest również łazienka z prysznicem.
Na piętrze znajdują się 2 duże pokoje z miejscem na garderobę, oraz mała toaleta.
Dom przeszedł termomodernizację, zamontowane zostały nowe okna PCV, drzwi oraz wylewki. Stara instalacja elektryczna została wymieniona na nową. Ogrzewanie gazowe.
Woda z sieci, kanalizacja. Na działce jest studnia z wodą lecz nie była badana.
Dodatkowym atutem są dostępne materiały budowlane, które wchodzą w cenę sprzedaży. Są to miedzy innymi nowe grzejniki, płyty karton-gips, panele, podkłady, siatka na ogrodzenie oraz krawężniki i inne.
Kuchnia, łazienka oraz toaleta wymagają remontu, lecz sam dom jest w stanie do zamieszkania.
Niesamowity klimat nieruchomości nadają drewniane belki naścienne oraz piękna drewniana elewacja.
Parter:
- wiatrołap
- kuchnia
- łazienka
- pokój I
- pokój II
Z każdego pokoju jest wyjście na ogród.
Poddasze:
- pokój III
- pokój IV
- toaleta
Piwnica ok. 6m2.
Ściany częściowo murowane, częściowo drewniane ocieplone od wewnątrz wełną mineralną. Strop poddasza drewniany, dach o konstrukcji drewnianej pokryty blachą.
Jeżeli dla kogoś działka 9 arów jest zbyt duża, istnieje możliwość sprzedaży połowy (4,5a) gdyż posiada ona warunki zabudowy na domek jednorodzinny.
Nieruchomość zlokalizowana jest w bardzo spokojnej i cichej okolicy, co czyni ją idealnym miejscem dla rodziny.
Cena: 430 000 PLN
Preferowany klient gotówkowy.
Zapraszamy do obejrzenia domu!
Nasi specjaliści przygotują nieodpłatnie atrakcyjną ofertę kredytową dostosowaną do Państwa potrzeb.
Za sprzedaż nieruchomości pobieramy prowizję.
Opiekun oferty: Anna Wąsacz
➜ 530.-.960.-.096